ΠΡΠΎΠ΅ΠΊΡΡ ΠΎΠ΄Π½ΠΎΡΡΠ°ΠΆΠ½ΡΡ Π΄ΠΎΠΌΠΎΠ² — 120 ΡΠΎΡΠΎ Π΄ΠΈΠ·Π°ΠΉΠ½Π°. ΠΠ±Π·ΠΎΡ Π»ΡΡΡΠΈΡ Π²Π°ΡΠΈΠ°Π½ΡΠΎΠ² Π·Π°Π³ΠΎΡΠΎΠ΄Π½ΡΡ Π΄ΠΎΠΌΠΎΠ²
Π‘ΠΎ Π²ΡΠΎΡΠΎΠΉ ΠΏΠΎΠ»ΠΎΠ²ΠΈΠ½Ρ ΠΏΡΡΠΈΠ΄Π΅ΡΡΡΡΡ Π³ΠΎΠ΄ΠΎΠ² Π΄Π²Π°Π΄ΡΠ°ΡΠΎΠ³ΠΎ Π²Π΅ΠΊΠ° ΡΠΈΠΌΠ²ΠΎΠ»ΠΎΠΌ ΠΊΠΎΠΌΡΠΎΡΡΠ°Π±Π΅Π»ΡΠ½ΠΎΠ³ΠΎ ΠΆΠΈΠ»ΡΡ Π² Π½Π°ΡΠ΅ΠΉ ΡΡΡΠ°Π½Π΅ ΡΡΠΈΡΠ°Π»Π°ΡΡ Π±Π»Π°Π³ΠΎΡΡΡΡΠΎΠ΅Π½Π½Π°Ρ ΠΌΠ°Π»ΠΎΠ³Π°Π±Π°ΡΠΈΡΠ½Π°Ρ ΠΊΠ²Π°ΡΡΠΈΡΠ° Π² ΠΏΡΡΠΈΡΡΠ°ΠΆΠΊΠ΅ Π»ΡΠ±ΠΎΠ³ΠΎ Π³ΠΎΡΠΎΠ΄Π°. ΠΠΏΠΎΡΠ»Π΅Π΄ΡΡΠ²ΠΈΠΈ Π΄ΠΎΠ»Π³ΠΎΠ΅ Π²ΡΠ΅ΠΌΡ Π² ΡΡΠΎΠΌ Π²ΠΎΠΏΡΠΎΡΠ΅ Π½ΠΈΡΠ΅Π³ΠΎ Π½Π΅ ΠΌΠ΅Π½ΡΠ»ΠΎΡΡ Π·Π° ΠΈΡΠΊΠ»ΡΡΠ΅Π½ΠΈΠ΅ΠΌ ΡΡΠ°ΠΆΠ½ΠΎΡΡΠΈ Π΄ΠΎΠΌΠΎΠ². ΠΡΠ°ΠΆΠ΅ΠΉ ΡΡΠ°Π½ΠΎΠ²ΠΈΠ»ΠΎΡΡ Π²ΡΡ Π±ΠΎΠ»ΡΡΠ΅ ΠΈ Π±ΠΎΠ»ΡΡΠ΅, Π° ΠΊΠ²Π°ΡΡΠΈΡΡ ΠΎΡΡΠ°Π²Π°Π»ΠΈΡΡ Π²ΡΡ ΡΠ°ΠΊΠΈΠΌΠΈ ΠΆΠ΅ ΠΌΠ°Π»ΠΎΠ³Π°Π±Π°ΡΠΈΡΠ½ΡΠΌΠΈ.

Π‘Π΅Π³ΠΎΠ΄Π½Ρ ΡΠΈΠΌΠ²ΠΎΠ» ΠΏΡΠ΅ΡΡΠΈΠΆΠ½ΠΎΠ³ΠΎ ΠΆΠΈΠ»ΡΡ β ΡΡΠΎ ΠΎΡΠ΄Π΅Π»ΡΠ½ΡΠ΅ ΠΎΠ΄Π½ΠΎΡΡΠ°ΠΆΠ½ΡΠ΅ Π΄ΠΎΠΌΠ° Ρ ΠΌΠ°Π½ΡΠ°ΡΠ΄ΠΎΠΉ ΡΠ°ΡΠΏΠΎΠ»Π°Π³Π°ΡΡΠΈΠ΅ΡΡ, Π³Π΄Π΅-Π½ΠΈΠ±ΡΠ΄Ρ Π² ΠΏΡΠΈΠ³ΠΎΡΠΎΠ΄Π΅ ΠΌΠ΅Π³Π°ΠΏΠΎΠ»ΠΈΡΠ°.

ΠΡΠ΅ΠΈΠΌΡΡΠ΅ΡΡΠ²Π° ΡΠ°ΠΊΠΎΠ³ΠΎ ΠΆΠΈΠ»ΠΈΡΠ° Π½Π΅ΠΎΡΠΏΠΎΡΠΈΠΌΡ, ΠΏΠΎΡΠΊΠΎΠ»ΡΠΊΡ Π² Π½Π°ΡΠΈ Π΄Π½ΠΈ Π½Π΅Ρ Π½ΠΈΠΊΠ°ΠΊΠΎΠΉ ΠΏΡΠΎΠ±Π»Π΅ΠΌΡ Ρ ΠΏΡΠΎΠΊΠ»Π°Π΄ΠΊΠΎΠΉ ΠΈΠ½ΠΆΠ΅Π½Π΅ΡΠ½ΡΡ ΡΠΈΡΡΠ΅ΠΌ, ΡΠ°ΠΊΠΈΡ ΠΊΠ°ΠΊ: ΠΊΠ°Π½Π°Π»ΠΈΠ·Π°ΡΠΈΡ, Π²ΠΎΠ΄ΠΎΠΏΡΠΎΠ²ΠΎΠ΄ ΠΈ Ρ.ΠΏ. ΠΠ°ΠΆΠ΅ Π΅ΡΠ»ΠΈ Π½Π΅Ρ Π²ΠΎΠ·ΠΌΠΎΠΆΠ½ΠΎΡΡΠΈ ΠΏΠΎΠ΄ΠΊΠ»ΡΡΠΈΡΡΡΡ ΠΊ ΡΠ΅Π½ΡΡΠ°Π»ΠΈΠ·ΠΎΠ²Π°Π½Π½ΡΠΌ ΡΠΈΡΡΠ΅ΠΌΠ°ΠΌ, Π²ΡΡ ΡΡΠΎ ΠΌΠΎΠΆΠ½ΠΎ ΡΠ΄Π΅Π»Π°ΡΡ Π² ΠΈΠ½Π΄ΠΈΠ²ΠΈΠ΄ΡΠ°Π»ΡΠ½ΠΎΠΌ ΠΏΠΎΡΡΠ΄ΠΊΠ΅.
Π₯ΠΎΠ·ΡΠΈΠ½ ΡΠ²ΠΎΠ΅Π³ΠΎ Π΄ΠΎΠΌΠ° ΠΈ ΡΠ²ΠΎΠ΅ΠΉ ΡΡΠ΄ΡΠ±Ρ
ΠΠ΅ΡΡΠΏΠΎΡΠ½ΡΠΌ ΠΏΡΠ΅ΠΈΠΌΡΡΠ΅ΡΡΠ²ΠΎΠΌ ΠΎΡΠ΄Π΅Π»ΡΠ½ΠΎΠ³ΠΎ Π΄ΠΎΠΌΠ° ΡΠ²Π»ΡΠ΅ΡΡΡ Π½Π°Π»ΠΈΡΠΈΠ΅, ΠΏΡΡΡΡ Π½Π΅Π±ΠΎΠ»ΡΡΠΎΠ³ΠΎ, Π½ΠΎ ΡΠ²ΠΎΠ΅Π³ΠΎ Π·Π΅ΠΌΠ΅Π»ΡΠ½ΠΎΠ³ΠΎ ΡΡΠ°ΡΡΠΊΠ°, Π½Π° ΠΊΠΎΡΠΎΡΠΎΠΌ ΡΡΠΎΡ Π΄ΠΎΠΌ ΡΡΠΎΠΈΡ, Π΄Π»Ρ ΡΠΎΠ³ΠΎ, ΡΡΠΎΠ±Ρ Π² ΡΡΠΎΠΌ ΡΠ±Π΅Π΄ΠΈΡΡΡΡ, Π΄ΠΎΡΡΠ°ΡΠΎΡΠ½ΠΎ, Π²ΡΠ΅Π³ΠΎ Π»ΠΈΡΡ, ΠΏΠΎΡΠΌΠΎΡΡΠ΅ΡΡ ΡΠΎΡΠΎ ΠΎΠ΄Π½ΠΎΡΡΠ°ΠΆΠ½ΡΡ Π΄ΠΎΠΌΠΎΠ².

Π£ ΡΠ΅Π»ΠΎΠ²Π΅ΠΊΠ°, ΠΏΡΠΎΠΆΠΈΠ²Π°ΡΡΠ΅Π³ΠΎ Π² ΡΠΎΠ±ΡΡΠ²Π΅Π½Π½ΠΎΠΌ Π·Π°Π³ΠΎΡΠΎΠ΄Π½ΠΎΠΌ Π΄ΠΎΠΌΠ΅, ΡΠΎΠ²ΡΠ΅ΠΌ Π΄ΡΡΠ³ΠΎΠ΅ ΠΌΠΈΡΠΎΠΎΡΡΡΠ΅Π½ΠΈΠ΅, ΡΠ΅ΠΌ Ρ ΠΎΠ±ΠΈΡΠ°ΡΠ΅Π»Ρ ΠΌΠ½ΠΎΠ³ΠΎΡΡΠ°ΠΆΠ½ΠΎΠ³ΠΎ Π΄ΠΎΠΌΠ°, ΠΎΠ½ ΡΡΠ°Π½ΠΎΠ²ΠΈΡΡΡ Π±ΠΎΠ»Π΅Π΅ ΠΎΡΠ½ΠΎΠ²Π°ΡΠ΅Π»ΡΠ½ΡΠΌ, Π² ΠΊΠ°ΠΆΠ΄ΠΎΠΌ Π΅Π³ΠΎ Π΄Π²ΠΈΠΆΠ΅Π½ΠΈΠΈ ΠΏΡΠΎΡΠ»Π΅ΠΆΠΈΠ²Π°Π΅ΡΡΡ ΠΊΡΠ΅ΠΏΠΊΠΎ ΡΡΠΎΡΡΠΈΠΉ Π½Π° Π½ΠΎΠ³Π°Ρ Π±ΡΡΠΆΡΠ°.

ΠΠ°Π²Π΅ΡΠ½ΠΎΠ΅ ΠΏΠΎΡΡΠΎΠΌΡ Π½Π°ΡΠ°Π»Π° ΠΏΡΠΎΡΠ²Π»ΡΡΡΡΡ ΡΠ΅Π½Π΄Π΅Π½ΡΠΈΡ Π½Π° ΠΏΠ΅ΡΠ΅ΡΠ΅Π»Π΅Π½ΠΈΠ΅ Π»ΡΠ΄Π΅ΠΉ ΠΈΠ· ΡΠ΅ΡΠ½ΡΡ Π³ΠΎΡΠΎΠ΄ΡΠΊΠΈΡ ΠΊΠ²Π°ΡΡΠΈΡ Π² Π·Π°Π³ΠΎΡΠΎΠ΄Π½ΡΠ΅ Π΄ΠΎΠΌΠ°, Π³Π΄Π΅ ΠΈΡ ΠΎΠ±ΠΈΡΠ°ΡΠ΅Π»ΠΈ ΡΡΠ²ΡΡΠ²ΡΡΡ ΡΠ΅Π±Ρ ΠΈΡΡΠΈΠ½Π½ΡΠΌΠΈ Ρ ΠΎΠ·ΡΠ΅Π²Π°ΠΌΠΈ ΡΠ²ΠΎΠ΅ΠΉ ΡΡΠ΄ΡΠ±Ρ. ΠΠ½Π°ΡΠ΅ ΠΈ Π±ΡΡΡ Π½Π΅ ΠΌΠΎΠΆΠ΅Ρ Π²Π΅Π΄Ρ, ΠΏΡΠ°ΠΊΡΠΈΡΠ΅ΡΠΊΠΈ, ΠΊΠ°ΠΆΠ΄ΡΠΉ ΡΠ°ΠΊΠΎΠΉ Π΄ΠΎΠΌ ΡΡΡΠΎΠΈΡΡΡ Ρ ΡΡΡΡΠΎΠΌ ΠΏΠΎΠΆΠ΅Π»Π°Π½ΠΈΠΉ Π±ΡΠ΄ΡΡΠ΅Π³ΠΎ Ρ ΠΎΠ·ΡΠΈΠ½Π°, ΡΠΎ Π΅ΡΡΡ ΠΎΠ½ Π·Π°ΡΠ΅Π»ΡΠ΅ΡΡΡ ΠΈΠΌΠ΅Π½Π½ΠΎ Π² ΡΠ°ΠΊΠΎΠΉ Π΄ΠΎΠΌ, ΠΎ ΠΊΠ°ΠΊΠΎΠΌ ΠΌΠ΅ΡΡΠ°Π».

Π‘ΠΎΠ±ΡΡΠ²Π΅Π½Π½ΠΈΠΊ Π³ΠΎΡΠΎΠ΄ΡΠΊΠΎΠΉ ΠΊΠ²Π°ΡΡΠΈΡΡ ΠΆΠΈΠ²ΡΡ Π² ΡΠΎΠΉ ΡΡΠ΅Π΄Π΅ ΠΎΠ±ΠΈΡΠ°Π½ΠΈΡ, ΠΊΠΎΡΠΎΡΠ°Ρ Π±ΡΠ»Π° ΡΠΎΠ·Π΄Π°Π½Π° Π΄Π»Ρ Π½Π΅Π³ΠΎ ΠΏΠΎ ΡΠΈΠΏΠΎΠ²ΠΎΠΌΡ ΠΏΡΠΎΠ΅ΠΊΡΡ, ΡΡΠΈΡΡΠ²Π°ΡΡΠ΅ΠΌΡ Π΄Π°Π»Π΅ΠΊΠΎ Π½Π΅ Π²ΡΠ΅ Π΅Π³ΠΎ ΠΏΠΎΠΆΠ΅Π»Π°Π½ΠΈΡ.
ΠΠ΅ΡΠ΅Π²ΠΎ, ΠΊΠΈΡΠΏΠΈΡ ΠΈ ΠΏΠ΅Π½Π½ΠΎ-Π³Π°Π·ΠΎΠ±Π΅ΡΠΎΠ½Π½ΡΠ΅ Π±Π»ΠΎΠΊΠΈ
ΠΠ½ΠΎΠ΅ Π΄Π΅Π»ΠΎ ΡΠΎΠ±ΡΡΠ²Π΅Π½Π½ΡΠΉ Π΄ΠΎΠΌ. Π ΡΠ½ΠΎΠΊ ΠΎΠ΄Π½ΠΎΡΡΠ°ΠΆΠ½ΠΎΠ³ΠΎ ΡΡΡΠΎΠΈΡΠ΅Π»ΡΡΡΠ²Π° ΡΠ΅Π³ΠΎΠ΄Π½Ρ ΠΏΡΠ΅Π΄Π»Π°Π³Π°Π΅Ρ ΠΌΠ½ΠΎΠΆΠ΅ΡΡΠ²Π΅Π½Π½ΡΠ΅ Π²Π°ΡΠΈΠ°Π½ΡΡ ΠΏΠ»Π°Π½ΠΈΡΠΎΠ²ΠΊΠΈ ΠΎΠ΄Π½ΠΎΡΡΠ°ΠΆΠ½ΠΎΠ³ΠΎ Π΄ΠΎΠΌΠ°, ΠΊΠ°ΠΊ Π²Π½ΡΡΡΠ΅Π½Π½Π΅ΠΉ, ΡΠ°ΠΊ ΠΈ Π²Π½Π΅ΡΠ½Π΅ΠΉ.

ΠΠΎ-ΠΏΠ΅ΡΠ²ΡΡ , ΠΏΡΠ΅Π΄Π»Π°Π³Π°Π΅ΡΡΡ ΠΎΠΏΡΠ΅Π΄Π΅Π»ΠΈΡΡΡΡ ΡΠΎ ΡΡΡΠΎΠΈΡΠ΅Π»ΡΠ½ΡΠΌ ΠΌΠ°ΡΠ΅ΡΠΈΠ°Π»ΠΎΠΌ, Π² ΠΊΠ°ΡΠ΅ΡΡΠ²Π΅ ΠΊΠΎΡΠΎΡΠΎΠ³ΠΎ ΠΌΠΎΠ³ΡΡ Π²ΡΡΡΡΠΏΠ°ΡΡ ΠΈ ΡΡΠ°Π΄ΠΈΡΠΈΠΎΠ½Π½Π°Ρ Π΄Π»Ρ Π ΠΎΡΡΠΈΠΈ Π΄ΡΠ΅Π²Π΅ΡΠΈΠ½Π°, ΠΈ, ΡΡΠ°Π²ΡΠΈΠΉ ΡΠΆΠ΅ ΠΏΡΠΈΠ²ΡΡΠ½ΡΠΌ, ΠΊΠΈΡΠΏΠΈΡ, ΠΈ, ΡΡΠ°Π²Π½ΠΈΡΠ΅Π»ΡΠ½ΠΎ Π½ΠΎΠ²ΡΠ΅ Π΄Π»Ρ Π½Π°Ρ, ΠΏΠ΅Π½Π½ΠΎ-Π³Π°Π·ΠΎΠ±Π΅ΡΠΎΠ½Π½ΡΠ΅ Π±Π»ΠΎΠΊΠΈ.

ΠΠΎ-Π²ΡΠΎΡΡΡ , ΡΠΎΠ±ΠΈΡΠ°ΡΡΡ ΡΡΡΠΎΠΈΡΡ ΡΠΎΠ²ΡΠ΅ΠΌΠ΅Π½Π½ΡΠΉ ΠΎΠ΄Π½ΠΎΡΡΠ°ΠΆΠ½ΡΠΉ Π΄ΠΎΠΌ, Π·Π°ΡΡΡΠΎΠΉΡΠΈΠΊΡ Π½ΡΠΆΠ½ΠΎ ΠΎΠΏΡΠ΅Π΄Π΅Π»ΠΈΡΡΡΡ Ρ ΡΠ΅ΠΌ, ΡΠΊΠΎΠ»ΡΠΊΠΎ Π΄Π΅Π½Π΅Π³ ΠΎΠ½ Π³ΠΎΡΠΎΠ² Π½Π° ΡΡΠΎ ΠΏΠΎΡΡΠ°ΡΠΈΡΡ.

Π‘Π°ΠΌΡΠΌΠΈ ΡΠΊΠΎΠ½ΠΎΠΌΠΈΡΠ½ΡΠΌΠΈ Π²Π°ΡΠΈΠ°Π½ΡΠ°ΠΌΠΈ, ΠΈΠ· Π²ΡΠ΅Ρ Π²ΠΎΠ·ΠΌΠΎΠΆΠ½ΡΡ , Π±ΡΠ΄ΡΡ ΡΠ΅, ΠΊΠΎΡΠΎΡΡΠ΅ ΠΏΡΠ΅Π΄Π»Π°Π³Π°ΡΡ ΠΎΡΡΠ°Π½ΠΎΠ²ΠΈΡΡ ΡΠ²ΠΎΠΉ Π²ΡΠ±ΠΎΡ Π½Π° Π΄Π΅ΡΠ΅Π²ΡΠ½Π½ΡΡ Π΄ΠΎΠΌΠ°Ρ . ΠΠ΅ΡΠΊΠΎΠ»ΡΠΊΠΎ Π΄ΠΎΡΠΎΠΆΠ΅ ΠΎΠ±ΠΎΠΉΠ΄ΡΡΡΡ ΠΊΠΈΡΠΏΠΈΡ. Π‘Π°ΠΌΡΠΌ Π΄ΠΎΡΠΎΠ³ΠΈΠΌ ΠΈΠ· ΡΡΠΈΡ ΡΡΡΠΎΠΈΡΠ΅Π»ΡΠ½ΡΡ ΠΌΠ°ΡΠ΅ΡΠΈΠ°Π»ΠΎΠ² ΡΠ²Π»ΡΡΡΡΡ ΠΏΠ΅Π½Π½ΠΎ-Π³Π°Π·ΠΎΠ±Π΅ΡΠΎΠ½Π½ΡΠ΅ Π±Π»ΠΎΠΊΠΈ.

ΠΠ΅ΡΠ΅Π²ΡΠ½Π½ΡΠΉ Π΄ΠΎΠΌ
ΠΠ΄Π½Π°ΠΊΠΎ ΡΠΎ, ΡΡΠΎ ΡΠ΅Π³ΠΎΠ΄Π½Ρ ΠΊΠ°ΠΆΠ΅ΡΡΡ Π΄ΠΎΡΠΎΠ³ΠΈΠΌ, ΡΠΎ Π²ΡΠ΅ΠΌΠ΅Π½Π΅ΠΌ ΠΎΠ±Π΅ΡΠ½ΡΡΡΡ ΡΠΊΠΎΠ½ΠΎΠΌΠΈΠ΅ΠΉ ΠΈ Π²Π΅ΡΡΠΌΠ° Π·Π½Π°ΡΠΈΡΠ΅Π»ΡΠ½ΠΎΠΉ. ΠΡΠ΅Π²Π΅Π½ΡΠ°ΡΡΠΉ Π΄ΠΎΠΌ ΡΠ°ΠΌΡΠΉ Π΄Π΅ΡΡΠ²ΡΠΉ, ΠΈ ΠΆΠΈΡΡ Π² Π½ΡΠΌ ΠΏΡΠΈΡΡΠ½ΠΎ.

ΠΡΠ΅Π²Π΅ΡΠΈΠ½Π° β ΡΠΊΠΎΠ»ΠΎΠ³ΠΈΡΠ΅ΡΠΊΠΈ ΡΠΈΡΡΡΠΉ ΠΌΠ°ΡΠ΅ΡΠΈΠ°Π», Π±Π»Π°Π³ΠΎΠΏΡΠΈΡΡΠ½ΠΎ Π²Π»ΠΈΡΡΡΠΈΠΉ Π½Π° Π·Π΄ΠΎΡΠΎΠ²ΡΠ΅ ΡΠ΅Π»ΠΎΠ²Π΅ΠΊΠ°, Π½ΠΎ, ΠΊ ΡΠΎΠΆΠ°Π»Π΅Π½ΠΈΡ, Π½Π΅Π΄ΠΎΠ»Π³ΠΎΠ²Π΅ΡΠ½ΡΠΉ. ΠΠ½ ΠΏΠΎΠ΄Π²Π΅ΡΠΆΠ΅Π½ Π°Π±ΡΠΎΠ»ΡΡΠ½ΠΎ Π²ΡΠ΅ΠΌ ΡΡΠΈΡ ΠΈΠΉΠ½ΡΠΌ Π±Π΅Π΄ΡΡΠ²ΠΈΡΠΌ, Π² ΡΠΎΠΌ ΡΠΈΡΠ»Π΅ ΠΈ ΡΠ°ΠΊΠΈΠΌ ΡΠ°ΡΡΠΎ Π²ΡΡΡΠ΅ΡΠ°ΡΡΠΈΠΌΡΡ, ΠΊΠ°ΠΊ ΠΏΠΎΠΆΠ°Ρ.

Π ΡΠ»ΡΡΠ°Π΅ ΠΏΠΎΠΆΠ°ΡΠ°, ΡΠΏΠ°ΡΡΠΈ Π΄ΠΎΠΌ ΠΌΠΎΠΆΠ½ΠΎ ΡΠΎΠ»ΡΠΊΠΎ Π² Π½Π°ΡΠ°Π»ΡΠ½ΠΎΠΉ Π΅Π³ΠΎ ΡΡΠ°Π΄ΠΈΠΈ. ΠΠ°ΠΊ ΡΠΎΠ»ΡΠΊΠΎ ΠΏΠ»Π°ΠΌΡ Π²ΠΎΠ·ΡΠΌΡΡΡΡ Π·Π° Π±ΡΡΠ²Π½Π°, ΠΏΠΎΡΡΡΠΈΡΡ Π΅Π³ΠΎ Π½Π΅ ΡΠΌΠΎΠΆΠ΅Ρ Π½ΠΈ ΠΎΠ΄Π½Π° ΠΏΠΎΠΆΠ°ΡΠ½Π°Ρ ΠΊΠΎΠΌΠ°Π½Π΄Π°. ΠΠ±Π³ΠΎΡΠ΅Π»ΡΠΉ ΡΡΡΠ± Π±ΡΠ΄Π΅Ρ ΡΡΠΎΡΡΡ ΡΠ°ΠΌ, Π³Π΄Π΅ Π΅Π³ΠΎ ΠΏΠΎΡΡΠ°Π²ΠΈΠ»ΠΈ, Π½ΠΎ ΠΆΠΈΡΡ ΡΡΠ΅Π΄ΠΈ Π³ΠΎΠ»ΠΎΠ²Π΅ΡΠ΅ΠΊ Π±ΡΠ΄Π΅Ρ ΡΠΆΠ΅ Π½Π΅Π²ΠΎΠ·ΠΌΠΎΠΆΠ½ΠΎ.

ΠΠ°ΠΆΠ΅, Π΅ΡΠ»ΠΈ ΠΏΠΎΠΆΠ°Ρ Π½Π΅ ΡΠ»ΡΡΠΈΡΡΡ, ΡΠΎ Π²ΡΠ΅ΠΌΠ΅Π½Π΅ΠΌ Π±ΡΡΠ²Π½Π° Π½Π°ΡΠ½ΡΡ ΠΏΠΎΠ΄Π³Π½ΠΈΠ²Π°ΡΡ, ΠΊΠ°ΠΊ ΡΠΎΠ»ΡΠΊΠΎ ΠΏΡΠΎΡΠ΅ΡΡ Π³Π½ΠΈΠ΅Π½ΠΈΡ ΠΏΠΎΠΉΠ΄ΡΡ, ΠΎΡΡΠ°Π½ΠΎΠ²ΠΈΡΡ Π΅Π³ΠΎ, Π±Π΅Π· ΠΊΠ°ΠΏΠΈΡΠ°Π»ΡΠ½ΠΎΠ³ΠΎ ΡΠ΅ΠΌΠΎΠ½ΡΠ°, Π±ΡΠ΄Π΅Ρ ΡΠΆΠ΅ Π½Π΅Π²ΠΎΠ·ΠΌΠΎΠΆΠ½ΠΎ. ΠΠ΄Π½Π°ΠΊΠΎ Π΅ΡΠ»ΠΈ Π½Π΅ ΡΠ»ΡΡΠΈΡΡΡ ΠΏΠΎΠΆΠ°ΡΠ°, ΠΆΠΈΠ·Π½Ρ Π² ΡΠ°ΠΊΠΎΠΌ Π΄ΠΎΠΌΠ΅ Π±ΡΠ΄Π΅Ρ ΠΎΡΠ΅Π½Ρ ΠΊΠΎΠΌΡΠΎΡΡΠ½ΠΎΠΉ, ΠΏΠΎ ΠΊΡΠ°ΠΉΠ½Π΅ΠΉ ΠΌΠ΅ΡΠ΅, Π΄Π»Ρ ΠΎΠ΄Π½ΠΎΠ³ΠΎ β Π΄Π²ΡΡ ΠΏΠΎΠΊΠΎΠ»Π΅Π½ΠΈΠΉ.
ΠΠΎΠΌ ΠΈΠ· ΠΊΠΈΡΠΏΠΈΡΠ°
ΠΠΈΡΠΏΠΈΡΠ½ΡΠΌ Π΄ΠΎΠΌΠ°ΠΌ Π½Π΅ ΡΠ°ΠΊ ΡΡΡΠ°ΡΠ½Ρ ΠΏΠΎΠΆΠ°ΡΡ ΠΈ ΠΎΠ½ΠΈ Π²ΠΎΠΎΠ±ΡΠ΅ Π½Π΅ Π³Π½ΠΈΡΡ, ΠΏΠΎΡΡΠΎΠΌΡ ΠΏΡΠΎΡΡΠΎΡΡ Π½Π΅ ΠΎΠ΄Π½Ρ ΡΠΎΡΠ½Ρ Π»Π΅Ρ, Ρ ΠΎΡΡ, ΠΏΠ΅ΡΠΈΠΎΠ΄ΠΈΡΠ΅ΡΠΊΠΈ ΠΈΡ Π²ΡΡ ΠΆΠ΅ ΠΏΡΠΈΠ΄ΡΡΡΡ ΡΠ΅ΠΌΠΎΠ½ΡΠΈΡΠΎΠ²Π°ΡΡ.

Π‘ΡΡΠ΅ΡΡΠ²Π΅Π½Π½ΡΠΌ Π½Π΅Π΄ΠΎΡΡΠ°ΡΠΊΠΎΠΌ ΡΡΠΎΠ³ΠΎ ΠΌΠ°ΡΠ΅ΡΠΈΠ°Π»Π° ΡΠ²Π»ΡΠ΅ΡΡΡ Π΅Π³ΠΎ ΠΎΡΠ½ΠΎΡΠΈΡΠ΅Π»ΡΠ½ΠΎ Π²ΡΡΠΎΠΊΠ°Ρ ΡΠ΅ΠΏΠ»ΠΎΠΏΡΠΎΠ²ΠΎΠ΄Π½ΠΎΡΡΡ, ΠΏΠΎΡΡΠΎΠΌΡ Ρ Π½Π°Ρ Π² Π ΠΎΡΡΠΈΠΈ ΡΡΠ΅Π½Ρ ΠΊΠΈΡΠΏΠΈΡΠ½ΡΡ Π΄ΠΎΠΌΠΎΠ² Π½ΠΈΠΊΠΎΠ³Π΄Π° Π½Π΅ Π²ΡΠΊΠ»Π°Π΄ΡΠ²Π°ΡΡ Π² ΠΎΠ΄ΠΈΠ½ ΠΊΠΈΡΠΏΠΈΡ, Π° ΠΊΠ°ΠΊ ΠΌΠΈΠ½ΠΈΠΌΡΠΌ Π² Π΄Π²Π°, Π² Π΄Π²Π° Ρ ΠΏΠΎΠ»ΠΎΠ²ΠΈΠ½ΠΎΠΉ. ΠΡΠΎ ΠΏΠΎΠ·Π²ΠΎΠ»ΡΠ΅Ρ ΠΎΠ±Π΅ΡΠΏΠ΅ΡΠΈΡΡ ΡΠΎΡ ΡΠ°Π½Π½ΠΎΡΡΡ ΡΠ΅ΠΏΠ»Π° Π²Π½ΡΡΡΠΈ ΠΏΠΎΠΌΠ΅ΡΠ΅Π½ΠΈΡ Π² Π·ΠΈΠΌΠ½ΠΈΠΉ ΠΏΠ΅ΡΠΈΠΎΠ΄ ΠΈ Π½Π΅ ΡΠ»ΠΈΡΠΊΠΎΠΌ ΡΡΡΠ°Π΄Π°ΡΡ ΠΎΡ ΠΆΠ°ΡΡ Π»Π΅ΡΠΎΠΌ.

ΠΠ΅ΠΎΠ±Ρ ΠΎΠ΄ΠΈΠΌΠΎΡΡΡ ΡΡΡΠΎΠΈΡΡ Π±ΠΎΠ»Π΅Π΅ ΡΠΎΠ»ΡΡΡΠ΅ ΡΡΠ΅Π½Ρ ΠΈΠ· ΠΊΠΈΡΠΏΠΈΡΠ° Π΄Π΅Π»Π°Π΅Ρ ΠΏΡΠΎΡΠ΅ΡΡ Π΄ΠΎΡΡΠ°ΡΠΎΡΠ½ΠΎ ΡΡΡΠ΄ΠΎΡΠΌΠΊΠΈΠΌ ΠΈ, ΠΏΠΎΠΆΠ°Π»ΡΠΉ, ΡΡΠΎ ΡΠ°ΠΌΡΠΌ Π΄Π»ΠΈΡΠ΅Π»ΡΠ½ΡΠΌ.

ΠΠ»ΠΎΡΠ½ΡΠΉ Π΄ΠΎΠΌ
ΠΠ΅Π½Π½ΠΎ-Π³Π°Π·ΠΎΠ±Π΅ΡΠΎΠ½Π½ΡΠ΅ Π±Π»ΠΎΠΊΠΈ β ΠΏΠΎΠΆΠ°Π»ΡΠΉ, ΡΠ°ΠΌΡΠΉ Π΄ΠΎΡΠΎΠ³ΠΎΠΉ ΡΡΡΠΎΠΈΡΠ΅Π»ΡΠ½ΡΠΉ ΠΌΠ°ΡΠ΅ΡΠΈΠ°Π» Π½Π° Π½Π°ΡΠ΅ΠΌ ΡΡΠ½ΠΊΠ΅, Π½ΠΎ Π΄ΠΎΡΠΎΠ³ΠΎΠΉ, Π΄Π°Π»Π΅ΠΊΠΎ Π½Π΅ Π²ΡΠ΅Π³Π΄Π°, Π·Π½Π°ΡΠΈΡ Π½Π΅Π²ΡΠ³ΠΎΠ΄Π½ΡΠΉ. ΠΠ΅Π½Π½ΠΎ-Π³Π°Π·ΠΎΠ±Π΅ΡΠΎΠ½Π½ΡΠ΅ Π±Π»ΠΎΠΊΠΈ ΠΏΠΎ ΡΠΎΡΠΌΠ΅ Π½Π°ΠΏΠΎΠΌΠΈΠ½Π°ΡΡ ΠΊΠΈΡΠΏΠΈΡΠΈ ΡΠΎΠ»ΡΠΊΠΎ ΠΈΡ ΡΠ°Π·ΠΌΠ΅ΡΡ Π½Π΅ΡΠΊΠΎΠ»ΡΠΊΠΎ Π±ΠΎΠ»ΡΡΠ΅, ΠΏΠΎΡΡΠΎΠΌΡ Π΄Π»Ρ ΠΏΠΎΡΡΡΠΎΠΉΠΊΠΈ Π΄ΠΎΠΌΠ° ΡΡΠ΅Π±ΡΠ΅ΡΡΡ ΠΌΠ΅Π½ΡΡΠ΅Π΅ ΠΈΡ ΠΊΠΎΠ»ΠΈΡΠ΅ΡΡΠ²ΠΎ, ΠΎΠ½ΠΈ ΠΈΠΌΠ΅ΡΡ ΠΌΠ΅Π½ΡΡΡΡ, ΡΠ΅ΠΌ ΠΊΠΈΡΠΏΠΈΡΠΈ ΡΠ΅ΠΏΠ»ΠΎΠΏΡΠΎΠ²ΠΎΠ΄Π½ΠΎΡΡΡ, ΡΡΠΎ ΡΠ°ΠΊ ΠΆΠ΅ ΡΠΏΠΎΡΠΎΠ±ΡΡΠ²ΡΠ΅Ρ Π±ΠΎΠ»ΡΡΠ΅ΠΉ ΡΠΊΠΎΠ½ΠΎΠΌΠΈΡΠ½ΠΎΡΡΠΈ ΠΈΡ ΠΈΡΠΏΠΎΠ»ΡΠ·ΠΎΠ²Π°Π½ΠΈΡ Π² ΡΡΡΠΎΠΈΡΠ΅Π»ΡΡΡΠ²Π΅ ΠΆΠΈΠ»ΡΡ Π΄ΠΎΠΌΠΎΠ².

Π’Π°ΠΊ ΠΆΠ΅, ΠΊΠ°ΠΊ ΠΈ ΠΏΡΠΈ ΠΊΠΈΡΠΏΠΈΡΠ½ΠΎΠΉ ΠΊΠ»Π°Π΄ΠΊΠ΅, ΡΠ²ΡΠ·ΡΡΡΠΈΠΌ ΡΠ°ΡΡΠ²ΠΎΡΠΎΠΌ, ΡΠΎΠ΅Π΄ΠΈΠ½ΡΡΡΠΈΠΌ Π±Π»ΠΎΠΊΠΈ ΠΌΠ΅ΠΆΠ΄Ρ ΡΠΎΠ±ΠΎΠΉ, ΡΠ²Π»ΡΠ΅ΡΡΡ ΠΏΠ΅ΡΠΎΡΠ½ΠΎ-Π±Π΅ΡΠΎΠ½Π½Π°Ρ ΡΠΌΠ΅ΡΡ. ΠΠ°ΠΆΠ½Π΅ΠΉΡΠΈΠΌ ΡΠ»Π΅ΠΌΠ΅Π½ΡΠΎΠΌ Π»ΡΠ±ΠΎΠ³ΠΎ Π·Π΄Π°Π½ΠΈΡ, Π² ΡΠΎΠΌ ΡΠΈΡΠ»Π΅ ΠΈ ΠΎΠ΄Π½ΠΎΡΡΠ°ΠΆΠ½ΠΎΠ³ΠΎ, ΡΠ²Π»ΡΠ΅ΡΡΡ ΡΡΠ½Π΄Π°ΠΌΠ΅Π½Ρ.

Π€ΡΠ½Π΄Π°ΠΌΠ΅Π½Ρ
Π§Π΅ΠΌ ΡΡΠΆΠ΅Π»Π΅Π΅ Π΄ΠΎΠΌ, ΡΠ΅ΠΌ ΠΌΠΎΡΠ½Π΅Π΅ Π΄ΠΎΠ»ΠΆΠ½Π° Π±ΡΡΡ Π±Π°Π·Π°, Π½Π° ΠΊΠΎΡΠΎΡΠΎΠΉ Π΅ΠΌΡ ΠΏΡΠ΅Π΄ΡΡΠΎΠΈΡ ΡΡΠΎΡΡΡ. Π‘ΡΡΠΎΠΈΡΠ΅Π»ΡΡΡΠ²ΠΎ ΡΡΠ½Π΄Π°ΠΌΠ΅Π½ΡΠ°, ΠΏΠΎΠΆΠ°Π»ΡΠΉ, ΡΠ°ΠΌΡΠΉ ΠΎΡΠ²Π΅ΡΡΡΠ²Π΅Π½Π½ΡΠΉ ΠΌΠΎΠΌΠ΅Π½Ρ Π²ΡΠ΅Π³ΠΎ ΠΏΡΠΎΡΠ΅ΡΡΠ°. ΠΡΠ»ΠΈ Π²ΠΎΠ·Π²Π΅Π΄Π΅Π½ΠΈΠ΅ ΡΡΠ½Π΄Π°ΠΌΠ΅Π½ΡΠ° Π±ΡΠ΄Π΅Ρ ΠΏΡΠΎΠΈΠ·Π²Π΅Π΄Π΅Π½ΠΎ Ρ ΠΎΡΠΈΠ±ΠΊΠ°ΠΌΠΈ, Π΄ΠΎΠΌ Π½Π° Π½ΡΠΌ Π΄ΠΎΠ»Π³ΠΎ Π½Π΅ ΠΏΡΠΎΡΡΠΎΠΈΡ.

ΠΠΎΡΠΊΠΎΠ»ΡΠΊΡ Π΄Π°ΠΆΠ΅ Π±ΡΠ΅Π²Π΅Π½ΡΠ°ΡΡΠΉ Π΄ΠΎΠΌ β Π΄ΠΎΡΡΠ°ΡΠΎΡΠ½ΠΎ ΡΡΠΆΡΠ»ΠΎΠ΅ ΡΡΡΠΎΠ΅Π½ΠΈΠ΅, ΡΠΎ Π·Π°Π³Π»ΡΠ±Π»Π΅Π½ΠΈΠ΅ ΡΡΠ½Π΄Π°ΠΌΠ΅Π½ΡΠ° Π΄ΠΎΠ»ΠΆΠ½ΠΎ Π±ΡΡΡ Π½ΠΈΠΆΠ΅ ΡΡΠΎΠ²Π½Ρ ΠΏΡΠΎΠΌΠ΅ΡΠ·Π°Π½ΠΈΡ. ΠΡΠ»ΠΈ ΡΡΠΎ ΠΏΡΠ°Π²ΠΈΠ»ΠΎ Π½Π΅ Π±ΡΠ΄Π΅Ρ ΡΠΎΠ±Π»ΡΠ΄Π΅Π½ΠΎ, ΠΏΡΠΎΠΌΠ΅ΡΠ·Π°Π½ΠΈΠ΅ Π³ΡΡΠ½ΡΠ° ΠΌΠΎΠΆΠ΅Ρ ΠΏΡΠΈΠ²Π΅ΡΡΠΈ ΠΊ Π΅Π³ΠΎ ΠΏΠΎΠ΄ΡΡΠΌΡ Π² Π·ΠΈΠΌΠ½ΠΈΠΉ ΠΏΠ΅ΡΠΈΠΎΠ΄ ΠΈ ΠΎΠΏΡΡΠΊΠ°Π½ΠΈΡ Π»Π΅ΡΠΎΠΌ. ΠΡΠΈ ΡΡΠΎΠΌ ΠΏΠΎΠ΄ ΡΡΠΆΠ΅ΡΡΡΡ Π΄ΠΎΠΌΠ°, Π½Π΅Π΄ΠΎΡΡΠ°ΡΠΎΡΠ½ΠΎ Π·Π°Π³Π»ΡΠ±Π»ΡΠ½Π½ΡΠΉ, ΡΠ»Π°Π±ΡΠΉ ΡΡΠ½Π΄Π°ΠΌΠ΅Π½Ρ Π±ΡΠ΄Π΅Ρ ΠΏΠΎΡΡΠ΅ΠΏΠ΅Π½Π½ΠΎ ΡΠ°Π·ΡΡΡΠ°ΡΡΡΡ.

ΠΠ½Π΅ΡΠ½ΠΈΠΉ Π²ΠΈΠ΄ Π΄ΠΎΠΌΠ°
ΠΠΏΡΠ΅Π΄Π΅Π»ΠΈΠ²ΡΠΈΡΡ Ρ Π·Π°ΡΡΠ°ΡΠ°ΠΌΠΈ Π½Π° ΠΌΠ°ΡΠ΅ΡΠΈΠ°Π»Ρ ΠΈ ΡΡΡΠΎΠΈΡΠ΅Π»ΡΠ½ΡΠ΅ ΡΠ°Π±ΠΎΡΡ, Π½ΡΠΆΠ½ΠΎ ΠΏΠΎΠ΄ΡΠΌΠ°ΡΡ ΠΈ ΠΎ Π²Π½Π΅ΡΠ½Π΅ΠΌ Π²ΠΈΠ΄Π΅ Π΄ΠΎΠΌΠ°. ΠΠ΄Π΅ ΠΈ ΠΊΠ°ΠΊ Π±ΡΠ΄ΡΡ ΡΠ°ΡΠΏΠΎΠ»Π°Π³Π°ΡΡΡΡ ΠΎΠΊΠ½Π°, ΠΊΠ°ΠΊΠΎΠ²Π° Π±ΡΠ΄Π΅Ρ ΠΈΡ Π²Π΅Π»ΠΈΡΠΈΠ½Π°, Π±ΡΠ΄Π΅Ρ Π»ΠΈ ΠΊ Π½Π΅ΠΌΡ ΠΏΡΠΈΡΡΡΠΎΠ΅Π½Π° Π²Π΅ΡΠ°Π½Π΄Π° ΠΈ ΠΊΠ°ΠΊΠΎΠ²Π° Π±ΡΠ΄Π΅Ρ ΠΊΡΡΡΠ° Π΄ΠΎΠΌΠ°.
ΠΡΡΡΠ° ΠΎΠ΄Π½ΠΎΡΡΠ°ΠΆΠ½ΠΎΠ³ΠΎ Π΄ΠΎΠΌΠ° β Π½Π΅ ΠΌΠ΅Π½Π΅Π΅ Π²Π°ΠΆΠ½ΡΠΉ ΡΠ»Π΅ΠΌΠ΅Π½Ρ ΡΡΡΠΎΠ΅Π½ΠΈΡ, ΡΠ΅ΠΌ ΡΡΠ½Π΄Π°ΠΌΠ΅Π½Ρ. ΠΠΎΠΎΠ±ΡΠ΅ Ρ Π½Π΅Ρ ΠΈΠΌΠ΅Π΅ΡΡΡ Π½Π΅ΡΠΊΠΎΠ»ΡΠΊΠΎ ΡΡΠ½ΠΊΡΠΈΠΉ. ΠΡ Π³Π»Π°Π²Π½Π°Ρ ΡΡΠ½ΠΊΡΠΈΡ β Π±ΡΡΡ, ΡΠΎΠ±ΡΡΠ²Π΅Π½Π½ΠΎ, ΠΊΡΡΡΠ΅ΠΉ, ΡΠΎΠ»ΡΠΊΠΎ ΠΎΠ΄Π½Π° ΠΈΠ· Π½ΠΈΡ . ΠΡΠΎΡΠ°Ρ ΠΏΠΎ Π²Π°ΠΆΠ½ΠΎΡΡΠΈ Π΄Π΅ΠΊΠΎΡΠ°ΡΠΈΠ²Π½Π°Ρ ΡΡΠ½ΠΊΡΠΈΡ, ΡΠ°ΠΊΠΆΠ΅, ΠΈΠΌΠ΅Π΅Ρ Π±ΠΎΠ»ΡΡΠΎΠ΅ Π·Π½Π°ΡΠ΅Π½ΠΈΠ΅.

ΠΠ»Ρ ΡΠΎΠ³ΠΎ ΡΡΠΎΠ±Ρ ΠΊΡΡΡΠ° ΠΌΠΎΠ³Π»Π° ΠΈΡΠΏΠΎΠ»Π½ΡΡΡ ΠΎΠ±Π΅ ΡΡΠΈΡ ΡΡΠ½ΠΊΡΠΈΠΈ, ΠΎΠ½Π°, ΠΊΠ°ΠΊ ΠΌΠΈΠ½ΠΈΠΌΡΠΌ, Π΄ΠΎΠ»ΠΆΠ½Π° Π±ΡΡΡ Π΄Π²ΡΡΠΊΠ°ΡΠ½ΠΎΠΉ, ΠΈ Π² ΡΡΠΎΠΌ Π½Π΅ Π±ΡΠ΄Π΅Ρ Π½ΠΈΠΊΠ°ΠΊΠΎΠ³ΠΎ ΠΎΡΠΎΠ±Π΅Π½Π½ΠΎΠ³ΠΎ Π΄ΠΎΡΡΠΈΠΆΠ΅Π½ΠΈΡ.

ΠΡΠ΄Π°Π²Π°Ρ Π΄Π°Π½Ρ ΠΌΠΎΠ΄Π΅, ΡΠ΅Π³ΠΎΠ΄Π½Ρ ΠΌΠ½ΠΎΠ³ΠΈΠ΅ Π·Π°ΡΡΡΠΎΠΉΡΠΈΠΊΠΈ, ΡΠ°Π·ΡΠ°Π±Π°ΡΡΠ²Π°Ρ Π΄ΠΈΠ·Π°ΠΉΠ½ ΠΎΠ΄Π½ΠΎΡΡΠ°ΠΆΠ½ΡΡ Π΄ΠΎΠΌΠΎΠ², ΠΏΡΠ΅Π΄ΠΏΠΎΡΠΈΡΠ°ΡΡ Π΄ΠΎΠΌΠ° Ρ ΡΠ΅ΡΡΡΡΡ ΡΠΊΠ°ΡΠ½ΠΎΠΉ ΠΊΡΡΡΠ΅ΠΉ. ΠΠΎΠΌ ΠΏΠΎΠ΄ ΡΠ°ΠΊΠΎΠΉ ΠΊΡΠΎΠ²Π»Π΅ΠΉ Π±ΡΠ΄Π΅Ρ Π²ΡΠ³Π»ΡΠ΄Π΅ΡΡ Π½Π°ΠΌΠ½ΠΎΠ³ΠΎ Π±ΠΎΠ»Π΅Π΅ ΠΏΡΠ΅Π·Π΅Π½ΡΠ°Π±Π΅Π»ΡΠ½ΠΎ.

ΠΡΠΈΡΡΡΠΎΠΉΠΊΠΈ
ΠΠ°Π»Π΅Π΅ Π½Π°Π΄ΠΎ ΠΎΠΏΡΠ΅Π΄Π΅Π»ΠΈΡΡΡΡ Ρ ΠΎΠ±ΡΠΈΠΌ ΠΏΠ»Π°Π½ΠΎΠΌ Π΄ΠΎΠΌΠ°, Π² ΡΠΎΠΌ ΡΠΈΡΠ»Π΅ ΠΈ ΠΎΠΏΡΠ΅Π΄Π΅Π»ΠΈΡΡ ΠΊΠ°ΠΊΠΈΠ΅ ΠΏΡΠΈΡΡΡΠΎΠΉΠΊΠΈ Π±ΡΠ΄ΡΡ ΡΡΠΎΡΡΡ Π²ΠΎΠ·Π»Π΅ Π½Π΅Π³ΠΎ. ΠΠ°ΠΆΠ½Π΅ΠΉΡΠ°Ρ ΠΏΡΠΈΡΡΡΠΎΠΉΠΊΠ° Ρ ΠΊΠ°ΠΆΠ΄ΠΎΠ³ΠΎ ΡΠΎΠ²ΡΠ΅ΠΌΠ΅Π½Π½ΠΎΠ³ΠΎ Π΄ΠΎΠΌΠ° β ΡΡΠΎ, Π½Π΅ΡΠΎΠΌΠ½Π΅Π½Π½ΠΎ, Π³Π°ΡΠ°ΠΆ.

ΠΠ»Π°Π½ ΠΎΠ΄Π½ΠΎΡΡΠ°ΠΆΠ½ΠΎΠ³ΠΎ Π΄ΠΎΠΌΠ° Ρ Π³Π°ΡΠ°ΠΆΠΎΠΌ ΠΌΠΎΠΆΠ½ΠΎ ΡΠ°Π·ΡΠ°Π±ΠΎΡΠ°ΡΡ ΡΠ°ΠΌΠΎΡΡΠΎΡΡΠ΅Π»ΡΠ½ΠΎ. ΠΡΠ»ΠΈ ΠΆΠ΅ Π·Π°Π΄Π°ΡΠ° ΡΡΠ° Π²Π°ΠΌ Π½Π΅ ΠΏΠΎ Π·ΡΠ±Π°ΠΌ ΠΈΠ»ΠΈ, ΠΏΡΠΎΡΡΠΎ, Π½Π΅Ρ Π½Π° ΡΡΠΎ Π²ΡΠ΅ΠΌΠ΅Π½ΠΈ, ΡΠΎ ΡΠ΅Π»Π΅ΡΠΎΠΎΠ±ΡΠ°Π·Π½ΠΎ Π±ΡΠ΄Π΅Ρ ΠΏΠΎΠΈΡΠΊΠ°ΡΡ ΡΡΠΎ-Π½ΠΈΠ±ΡΠ΄Ρ Π² ΠΠ½ΡΠ΅ΡΠ½Π΅ΡΠ΅, ΡΠ°ΠΌ Π²Π΅Π»ΠΈΠΊΠΎΠ΅ ΠΌΠ½ΠΎΠΆΠ΅ΡΡΠ²ΠΎ ΡΠ°Π·Π½ΠΎΠΎΠ±ΡΠ°Π·Π½Π΅ΠΉΡΠΈΡ ΠΏΠ»Π°Π½ΠΎΠ².

ΠΠΎΠΎΠ±ΡΠ΅ Π³Π°ΡΠ°ΠΆ β ΡΡΠΎ Π½Π΅ ΠΏΡΠΎΡΡΠΎ ΠΏΡΠΈΡΡΡΠΎΠΉΠΊΠ° ΠΊ Π΄ΠΎΠΌΡ, Π³Π΄Π΅ ΡΡΠΎΠΈΡ ΠΌΠ°ΡΠΈΠ½Π°. Π Π³Π°ΡΠ°ΠΆΠ΅ ΠΏΡΠΎΡ ΠΎΠ΄ΠΈΡ Π·Π½Π°ΡΠΈΡΠ΅Π»ΡΠ½Π°Ρ ΡΠ°ΡΡΡ ΠΆΠΈΠ·Π½ΠΈ ΡΠΎΠ²ΡΠ΅ΠΌΠ΅Π½Π½ΠΎΠ³ΠΎ ΠΌΡΠΆΡΠΈΠ½Ρ, Ρ ΠΎΡΡ, ΠΊΠΎΠ½Π΅ΡΠ½ΠΎ, Π΅ΡΠ»ΠΈ Π³Π°ΡΠ°ΠΆ ΡΡΠΎΠΈΡ ΡΡΠ΄ΠΎΠΌ Ρ Π΄ΠΎΠΌΠΎΠΌ, Π½Π΅Ρ Π½ΠΈΠΊΠ°ΠΊΠΎΠ³ΠΎ ΡΠΌΡΡΠ»Π° Π΄Π΅Π»Π°ΡΡ ΠΈΠ· Π½Π΅Π³ΠΎ Π½Π΅ΠΊΠΎΠ΅ ΠΏΠΎΠ΄ΠΎΠ±ΠΈΠ΅ Π΄ΠΎΠΌΠ° 2, ΠΊΡΠ΄Π° ΡΠ΅Π»ΠΎΠ²Π΅ΠΊ ΠΏΡΠΈΡ ΠΎΠ΄ΠΈΡ ΠΎΡΠ΄ΠΎΡ Π½ΡΡΡ ΠΎΡ ΡΠ΅ΠΌΡΠΈ ΠΈ Π²ΡΡΡΠ΅ΡΠΈΡΡΡΡ Ρ Π΄ΡΡΠ·ΡΡΠΌΠΈ.

ΠΡΠ½ΠΎΠ²Π½Π°Ρ ΡΡΠ½ΠΊΡΠΈΡ Π³Π°ΡΠ°ΠΆΠ°, ΡΡΠΎΡΡΠ΅Π³ΠΎ Ρ Π΄ΠΎΠΌΠ°, ΡΠΎΡΡΠΎΠΈΡ Π² ΡΠΎΠΌ, ΡΡΠΎΠ±Ρ Π±ΡΡΡ Ρ ΡΠ°Π½ΠΈΠ»ΠΈΡΠ΅ΠΌ Π΄Π»Ρ Π°Π²ΡΠΎΠΌΠΎΠ±ΠΈΠ»Ρ. Π‘Π»Π΅Π΄ΠΎΠ²Π°ΡΠ΅Π»ΡΠ½ΠΎ, Π½Π΅Ρ Π½ΠΈΡΠ΅Π³ΠΎ ΠΏΡΠ΅Π΄ΠΎΡΡΠ΄ΠΈΡΠ΅Π»ΡΠ½ΠΎΠ³ΠΎ Π² ΡΠΎΠΌ, ΡΡΠΎ ΠΈ Π²ΡΠ³Π»ΡΠ΄Π΅ΡΡ ΠΎΠ½ Π±ΡΠ΄Π΅Ρ ΡΠΎΠΎΡΠ²Π΅ΡΡΡΠ²Π΅Π½Π½ΠΎ, ΠΊΠ°ΠΊ ΠΏΡΠΈΠ·Π΅ΠΌΠΈΡΡΡΠΉ Π°Π½Π³Π°Ρ Ρ ΠΎΠ΄Π½ΠΎΡΠΊΠ°ΡΠ½ΠΎΠΉ ΠΊΡΡΡΠ΅ΠΉ, ΠΊΡΡΡΠΎΠΉ ΡΠΈΡΠ΅ΡΠΎΠΌ ΠΈΠ»ΠΈ ΠΊΡΠΎΠ²Π΅Π»ΡΠ½ΡΠΌ ΠΆΠ΅Π»Π΅Π·ΠΎΠΌ.

ΠΡΠ»ΠΈ ΡΠΆ ΡΡΡΠΎΠΈΡΡ Π·Π°Π³ΠΎΡΠΎΠ΄Π½ΡΠΉ Π΄ΠΎΠΌ, ΡΠΎ Π±ΡΠ»ΠΎ Π±Ρ Π½Π΅ ΠΏΡΠ°Π²ΠΈΠ»ΡΠ½ΠΎ Π½Π΅ ΠΏΠΎΡΡΠ°Π²ΠΈΡΡ Π²ΠΎΠ·Π»Π΅ Π½Π΅Π³ΠΎ ΡΡΠ°Π΄ΠΈΡΠΈΠΎΠ½Π½ΡΡ ΡΡΡΡΠΊΡΡ Π±Π°Π½ΡΠΊΡ, Π½Π°Π»ΠΈΡΠΈΠ΅ ΠΊΠΎΡΠΎΡΠΎΠΉ Π²ΠΎΠ²ΡΠ΅ Π½Π΅ ΠΎΡΠΌΠ΅Π½ΡΠ΅Ρ Π½Π΅ΠΎΠ±Ρ ΠΎΠ΄ΠΈΠΌΠΎΡΡΡ ΠΏΡΠΈΡΡΡΡΡΠ²ΠΈΡ Π² Π΄ΠΎΠΌΠ΅ ΠΎΠ±ΡΡΠ½ΠΎΠΉ Π²Π°Π½Π½Ρ ΠΈΠ»ΠΈ Ρ ΠΎΡΡ Π±Ρ Π΄ΡΡΠ΅Π²ΠΎΠΉ. ΠΡΠΈΡΠΌ Π²Π°Π½Π½Ρ ΠΈΠ»ΠΈ Π΄ΡΡΠ° β ΡΡΠΎ ΠΎΠ±ΡΡΠ½Π°Ρ Π΅ΠΆΠ΅Π΄Π½Π΅Π²Π½Π°Ρ ΠΏΡΠΎΡΠ΅Π΄ΡΡΠ° ΡΠΌΡΠ²Π°Π½ΠΈΡ Π³ΡΡΠ·ΠΈ Ρ ΡΠ΅Π»Π°, ΡΠΎΠ³Π΄Π° ΠΊΠ°ΠΊ Π±Π°Π½ΡΠΊΠ° Ρ ΠΏΠ°ΡΠΎΠΌ ΠΈ Π²Π΅Π½ΠΈΠΊΠΎΠΌ β ΡΡΠΎ ΠΎΡΠ΄ΡΡ ΡΠ΅Π»Π° ΠΈ Π΄ΡΡΠΈ, ΡΡΡΡΠ°ΠΈΠ²Π°Π΅ΠΌΡΠΉ Π½Π΅ ΡΠ°ΡΡΠΎ: ΠΎΠ΄ΠΈΠ½ ΡΠ°Π· Π² Π½Π΅Π΄Π΅Π»Ρ Π½Π΅ Π±ΠΎΠ»Π΅Π΅.

Π€ΠΎΡΠΎ ΠΎΠ΄Π½ΠΎΡΡΠ°ΠΆΠ½ΡΡ Π΄ΠΎΠΌΠΎΠ²









































ΠΠΎΡΡ ΠΎΠΏΡΠ±Π»ΠΈΠΊΠΎΠ²Π°Π½: 02.12
ΠΡΠΈΡΠΎΠ΅Π΄ΠΈΠ½ΡΠΉΡΠ΅ΡΡ ΠΊ ΠΎΠ±ΡΡΠΆΠ΄Π΅Π½ΠΈΡ: Copyright Β© 2019 LandshaftDizajn.Ru — ΠΏΠΎΡΡΠ°Π» ΠΎ Π»Π°Π½Π΄ΡΠ°ΡΡΠ½ΠΎΠΌ Π΄ΠΈΠ·Π°ΠΉΠ½Π΅ β1landshaftdizajn.ru
Π³ΠΎΡΠΎΠ²ΡΠ΅ ΠΈ ΡΠΈΠΏΠΎΠ²ΡΠ΅. ΠΠ°ΡΠ°Π»ΠΎΠ³ ΡΠΎΠ΄Π΅ΡΠΆΠΈΡ ΠΏΠ»Π°Π½ΠΈΡΠΎΠ²ΠΊΠΈ, ΠΏΠ»Π°Π½Ρ ΠΈ ΡΠ΅ΡΡΠ΅ΠΆΠΈ
ΠΡΠ°ΡΠΈΠ²ΡΠ΅ ΠΏΡΠΎΠ΅ΠΊΡΡ ΡΠΎΠ²ΡΠ΅ΠΌΠ΅Π½Π½ΡΡ Π΄ΠΎΠΌΠΎΠ²: ΡΠΎΡΠΎ, ΠΊΠ°ΡΠ°Π»ΠΎΠ³
ΠΡΠΎΠ΅ΠΊΡΡ ΡΠΎΠ²ΡΠ΅ΠΌΠ΅Π½Π½ΡΡ
Π΄ΠΎΠΌΠΎΠ² ΡΡΠ°Π½ΠΎΠ²ΡΡΡΡ Π²ΡΠ΅ Π±ΠΎΠ»Π΅Π΅ ΠΏΠΎΠΏΡΠ»ΡΡΠ½ΡΠΌΠΈ. ΠΠΎΡΡΠΎΠΌΡ Π² ΡΡΠΎΠΌ ΡΠ°Π·Π΄Π΅Π»Π΅ ΠΊΠ°ΡΠ°Π»ΠΎΠ³Π° ΠΌΡ ΡΠΎΠ±ΡΠ°Π»ΠΈ Π»ΡΡΡΠΈΠ΅ ΠΏΡΠΎΠ΅ΠΊΡΡ ΡΠΎΠ²ΡΠ΅ΠΌΠ΅Π½Π½ΡΡ
Π΄ΠΎΠΌΠΎΠ²: ΡΡΡΠ½ΡΠ΅ ΠΈ ΠΏΡΠ°ΠΊΡΠΈΡΠ½ΡΠ΅ ΠΏΠ»Π°Π½ΠΈΡΠΎΠ²ΠΊΠΈ ΡΠΎΠ²ΡΠ΅ΠΌΠ΅Π½Π½ΡΡ
Π΄ΠΎΠΌΠΎΠ², ΡΠ΅ΡΠ΅Π½ΠΈΡ, ΠΊΠΎΡΠΎΡΡΠ΅ ΡΠΎΠΊΡΠ°ΡΡΡ Π·Π°ΡΡΠ°ΡΡ Π½Π° ΡΡΡΠΎΠΈΡΠ΅Π»ΡΡΡΠ²ΠΎ, ΠΏΠΎΡΠ°Π΄ΡΡΡ Π²Π°Ρ!
Π‘ΠΎΠ²ΡΠ΅ΠΌΠ΅Π½Π½ΡΠ΅ Π΄ΠΎΠΌΠ° ΡΡΠΎ ΡΠΎΠ²ΡΠ΅ΠΌ Π½Π΅ ΡΠ΅ Π΄ΠΎΠΌΠ°, ΠΊ ΠΊΠΎΡΠΎΡΡΠΌ ΠΌΡ ΠΏΡΠΈΠ²ΡΠΊΠ»ΠΈ Ρ Π΄Π΅ΡΡΡΠ²Π°. ΠΠ½ΠΈ Π½Π΅ΠΏΡΠΈΠ²ΡΡΠ½Ρ Π½Π°ΡΠ΅ΠΌΡ Π²Π·Π³Π»ΡΠ΄Ρ, Π½Π°Π²Π΅ΡΠ½ΠΎΠ΅, ΠΈΠΌΠ΅Π½Π½ΠΎ ΠΏΠΎΡΡΠΎΠΌΡ ΠΈ ΠΏΡΠΈΠ²Π»Π΅ΠΊΠ°ΡΠ΅Π»ΡΠ½Ρ: ΡΠ²ΠΎΠ΅ΠΉ Π½ΠΎΠ²ΠΈΠ·Π½ΠΎΠΉ, ΡΠΊΡΡΡΠ°Π²Π°Π³Π°Π½ΡΠ½ΠΎΡΡΡΡ ΠΈ ΡΠΌΠ΅Π»ΠΎΡΡΡΡ. Π‘ΡΠΈΠ»Ρ Ρ Π°ΠΉ-ΡΠ΅ΠΊ Π² Π°ΡΡ ΠΈΡΠ΅ΠΊΡΡΡΠ΅ ΠΏΡΠΎΡΡ ΡΠΎΠ»ΡΠΊΠΎ Π½Π° ΠΏΠ΅ΡΠ²ΡΠΉ Π²Π·Π³Π»ΡΠ΄. ΠΡΠΆΠ½ΠΎ ΠΈΠΌΠ΅ΡΡ Π²ΡΡΠΎΠΊΠΈΠΉ ΡΡΠΎΠ²Π΅Π½Ρ ΠΏΡΠΎΡΠ΅ΡΡΠΈΠΎΠ½Π°Π»ΠΈΠ·ΠΌΠ°, ΡΡΠΎΠ±Ρ ΠΏΡΠ΅Π²ΡΠ°ΡΠΈΡΡ Π½Π°Π³ΡΠΎΠΌΠΎΠΆΠ΄Π΅Π½ΠΈΠ΅ ΠΏΡΡΠΌΠΎΡΠ³ΠΎΠ»ΡΠ½ΡΡ ΡΠΎΡΠΌ ΠΈ ΠΊΠΎΠ½ΡΡΡΡΠΊΡΠΈΠΉ Π² Β ΠΈΠ·ΡΡΠ½ΠΎΠ΅, ΠΎΡΠΈΠ³ΠΈΠ½Π°Π»ΡΠ½ΠΎΠ΅, Β Π³ΡΠ°ΡΠΈΠΎΠ·Π½ΠΎΠ΅, ΡΡΠΈΠ»ΡΠ½ΠΎΠ΅ ΡΡΡΠΎΠ΅Π½ΠΈΠ΅, ΠΊΠΎΡΠΎΡΠΎΠ΅ ΠΊ ΡΠΎΠΌΡ ΠΆΠ΅ Π±ΡΠ΄Π΅Ρ ΡΠ½Π΅ΡΠ³ΠΎΡΡΡΠ΅ΠΊΡΠΈΠ²Π½ΡΠΌ, ΡΡΠ½ΠΊΡΠΈΠΎΠ½Π°Π»ΡΠ½ΡΠΌ ΠΈ ΡΡΡΠ½ΡΠΌ. ΠΠΌΠ΅Π½Π½ΠΎ ΡΠ°ΠΊΠΈΠ΅ ΠΏΡΠΎΠ΅ΠΊΡΡ ΡΠΎΠ²ΡΠ΅ΠΌΠ΅Π½Π½ΡΡ Π΄ΠΎΠΌΠΎΠ², ΡΠΎΡΠΎ, Π²ΠΈΠ΄Π΅ΠΎ, ΡΠ΅ΡΡΠ΅ΠΆΠΈ, ΡΡ Π΅ΠΌΡ ΠΈ ΡΡΠΊΠΈΠ·Ρ ΠΊΠΎΡΠΎΡΡΡ Β ΠΌΡ Β ΠΏΡΠ΅Π΄Π»Π°Π³Π°Π΅ΠΌ ΠΏΠΎΡΠΌΠΎΡΡΠ΅ΡΡ Π²Π°ΠΌ Π² ΡΡΠΎΠΌ ΡΠ°Π·Π΄Π΅Π»Π΅, ΡΠ²Π»ΡΡΡΡΡ ΠΏΠΎΠΏΡΠ»ΡΡΠ½ΡΠΌΠΈ ΡΡΠ΅Π΄ΠΈ Π·Π°ΠΊΠ°Π·ΡΠΈΠΊΠΎΠ² Π² 2018 Π³ΠΎΠ΄Ρ.Β
ΠΠ΄Π΅ΡΡ ΡΠ°Π·ΠΌΠ΅ΡΠ΅Π½Ρ ΠΏΠ»Π°Π½Ρ ΡΠΎΠ²ΡΠ΅ΠΌΠ΅Π½Π½ΡΡ Π΄ΠΎΠΌΠΎΠ² Π² ΡΡΠΈΠ»Π΅ Ρ Π°ΠΉ-ΡΠ΅ΠΊ ΡΠ°Π·Π»ΠΈΡΠ½ΡΡ ΠΏΠ»ΠΎΡΠ°Π΄Π΅ΠΉ ΠΈ ΠΏΠ»Π°Π½ΠΈΡΠΎΠ²ΠΎΠΊ, ΠΎΠ΄Π½ΠΎΡΡΠ°ΠΆΠ½ΡΡ , ΠΏΡΠΎΠ΅ΠΊΡΡ Π΄ΠΎΠΌΠΎΠ² Ρ ΠΏΠ»ΠΎΡΠΊΠΎΠΉ ΠΊΡΡΡΠ΅ΠΉ ΠΈ Ρ ΠΌΠ°Π½ΡΠ°ΡΠ΄ΠΎΠΉ, ΠΈ Π²ΡΠ΅ ΠΎΠ½ΠΈ ΡΠ½ΠΈΠΊΠ°Π»ΡΠ½Ρ Π² ΡΠ²ΠΎΠ΅ΠΌ ΡΠΎΠ΄Π΅. ΠΠΎΠ»Π΅Π΅ ΡΠΎΠ³ΠΎ, Π½ΠΎΠ²ΡΠ΅ ΡΠΈΠΏΠΎΠ²ΡΠ΅ ΠΏΡΠΎΠ΅ΠΊΡΡ ΡΠΎΠ²ΡΠ΅ΠΌΠ΅Π½Π½ΡΡ ΠΊΠΎΡΡΠ΅Π΄ΠΆΠ΅ΠΉ ΠΏΠΎΡΡΠΎΡΠ½Π½ΠΎ ΠΏΠΎΠΏΠΎΠ»Π½ΡΡΡ Π½Π°Ρ ΠΊΠ°ΡΠ°Π»ΠΎΠ³. ΠΠ°ΡΠ»Π°ΠΆΠ΄Π°ΠΉΡΠ΅ΡΡ ΠΏΡΠΎΡΠΌΠΎΡΡΠΎΠΌ ΠΈ Π²ΡΠ±ΠΈΡΠ°ΠΉΡΠ΅ ΡΠ²ΠΎΠΉ ΠΏΡΠΎΠ΅ΠΊΡ Π΄ΠΎΠΌΠ° Π² ΡΠΎΠ²ΡΠ΅ΠΌΠ΅Π½Π½ΠΎΠΌ ΡΡΠΈΠ»Π΅!
ΠΠ»Π°Π½Ρ ΠΏΡΠΎΠ΅ΠΊΡΠΎΠ² ΡΠΎΠ²ΡΠ΅ΠΌΠ΅Π½Π½ΡΡ Π΄ΠΎΠΌΠΎΠ²: ΡΠΈΠ»ΡΡΡΡ Π΄Π»Ρ ΡΠ΄ΠΎΠ±ΡΡΠ²Π° Π²ΡΠ±ΠΎΡΠ°
Π€ΠΈΠ»ΡΡΡΡ Π½Π° Π½Π°ΡΠ΅ΠΌ ΡΠ°ΠΉΡΠ΅ ΠΏΠΎΠΌΠΎΠ³ΡΡ Π³ΠΎΡΠ°Π·Π΄ΠΎ Π±ΡΡΡΡΠ΅Π΅ ΠΏΠΎΠ΄ΠΎΠ±ΡΠ°ΡΡ ΡΠΎΠ²ΡΠ΅ΠΌΠ΅Π½Π½ΡΠ΅ ΠΏΡΠΎΠ΅ΠΊΡΡ Π΄ΠΎΠΌΠΎΠ², Π»ΡΡΡΠΈΠΌ ΠΎΠ±ΡΠ°Π·ΠΎΠΌ ΡΠΎΠΎΡΠ²Π΅ΡΡΡΠ²ΡΡΡΠΈΡ Π²Π°ΡΠΈΠΌ Π»ΠΈΡΠ½ΡΠΌ ΠΏΡΠ΅Π΄ΠΏΠΎΡΡΠ΅Π½ΠΈΡΠΌ ΠΈ ΡΡΠΈΠ»Ρ ΠΆΠΈΠ·Π½ΠΈ, Β ΠΎΡΠΎΠ±Π΅Π½Π½ΠΎΡΡΡΠΌ Π²Π°ΡΠ΅Π³ΠΎ ΡΡΠ°ΡΡΠΊΠ°, Π΄ΡΡΠ³ΠΈΠΌ ΠΎΡΠΎΠ±Π΅Π½Π½ΠΎΡΡΡΠΌ. Π€ΠΈΠ»ΡΡΡΡ Π² ΠΏΡΠ°Π²ΠΎΠΉ ΡΠ°ΡΡΠΈ ΡΡΡΠ°Π½ΠΈΡΡ ΠΈ Π² Π²Π΅ΡΡ Π½Π΅ΠΉ ΡΠ°ΡΡΠΈ ΡΡΡΠ°Π½ΠΈΡΡ Π½Π΅ Π·Π°Π²ΠΈΡΡΡ Π΄ΡΡΠ³ ΠΎΡ Π΄ΡΡΠ³Π°. ΠΡ ΠΌΠΎΠΆΠ΅ΡΠ΅ ΠΎΡΡΠΈΠ»ΡΡΡΠΎΠ²Π°ΡΡ, Π½Π°ΠΏΡΠΈΠΌΠ΅Ρ, ΡΠΎΠ²ΡΠ΅ΠΌΠ΅Π½Π½ΡΠ΅ Π΄ΠΎΠΌΠ° ΠΏΠ»ΠΎΡΠ°Π΄ΡΡ 100-150 ΠΌ2 Ρ ΡΠΆΠ½ΡΠΌ Π²Ρ ΠΎΠ΄ΠΎΠΌ, ΠΏΠΎΡΠΎΠΌ ΠΏΠΎΡΠΌΠΎΡΡΠ΅ΡΡ ΠΊΠ°ΠΊΠΎΠΉ ΠΈΠ· Π½ΠΈΡ ΡΠ°ΠΌΡΠΉ Π΄Π΅ΡΠ΅Π²ΡΠΉ, ΠΎΡΡΠΈΠ»ΡΡΡΠΎΠ²Π°Π² ΠΏΠΎ ΡΡΠΎΠΈΠΌΠΎΡΡΠΈ ΠΈ Π²ΡΠ±ΡΠ°Π² ΠΎΡΠΎΠ±ΡΠ°ΠΆΠ΅Π½ΠΈΠ΅ ΠΎΡ ΡΠ°ΠΌΡΡ Π΄Π΅ΡΠ΅Π²ΡΡ ΠΊ Π΄ΠΎΡΠΎΠ³ΠΈΠΌ. ΠΠΎΡΠΎΠΌ ΠΌΠΎΠΆΠ½ΠΎ ΠΏΠΎΡΠΌΠΎΡΡΠ΅ΡΡ ΠΊΠ°ΠΊΠΈΠ΅ ΠΈΠ· ΠΏΠΎΠ΄ΠΎΠ±ΡΠ°Π½Π½ΡΡ ΡΠΎΠ²ΡΠ΅ΠΌΠ΅Π½Π½ΡΡ Π΄ΠΎΠΌΠΎΠ² ΡΠ°ΠΌΡΠ΅ ΡΠ·ΠΊΠΈΠ΅, ΠΎΡΡΠΈΠ»ΡΡΡΠΎΠ²Π°Π² ΠΏΠΎ ΡΠΈΡΠΈΠ½Π΅ ΠΈ Π²ΡΠ±ΡΠ°Π² ΠΎΡΠΎΠ±ΡΠ°ΠΆΠ΅Π½ΠΈΠ΅ ΠΎΡ Π½Π°ΠΈΠΌΠ΅Π½ΡΡΠ΅ΠΉ. ΠΡΠΈ ΡΡΠΎΠΌ Π½Π°ΡΡΡΠΎΠΉΠΊΠΈ ΠΏΡΠ°Π²ΠΎΠ³ΠΎ ΡΠΈΠ»ΡΡΡΠ° ΡΠΎΡ ΡΠ°Π½ΡΡΡΡΡ.
ΠΠ»Π°Π½ΠΈΡΠΎΠ²ΠΊΠ° ΠΏΡΠΎΠ΅ΠΊΡΠΎΠ² ΡΠΎΠ²ΡΠ΅ΠΌΠ΅Π½Π½ΡΡ Π΄ΠΎΠΌΠΎΠ²: Π΄ΠΎΠΏΠΎΠ»Π½ΠΈΡΠ΅Π»ΡΠ½ΡΠ΅ ΡΡΠ»ΡΠ³ΠΈ
ΠΠΌΠ΅ΡΡΠ΅ Ρ ΠΏΡΠΎΠ΅ΠΊΡΠΎΠΌ ΠΌΡ ΠΏΡΠ΅Π΄Π»Π°Π³Π°Π΅ΠΌ ΠΊΠ»ΠΈΠ΅Π½ΡΠ°ΠΌ ΡΡΠ΄ Π΄ΠΎΠΏΠΎΠ»Π½ΠΈΡΠ΅Π»ΡΠ½ΡΡ ΡΡΠ»ΡΠ³. ΠΠ½ΠΈ ΠΏΠΎΠΌΠΎΠ³ΡΡ ΠΏΠΎΡΡΡΠΎΠΈΡΡ ΡΠΎΠ²ΡΠ΅ΠΌΠ΅Π½Π½ΡΠΉ Π΄ΠΎΠΌ ΠΊΠΎΠΌΡΠΎΡΡΠ½Π΅Π΅.Β
ΠΠ»Π°Π½ΠΈΡΠΎΠ²ΠΊΠ° ΡΠΎΠ²ΡΠ΅ΠΌΠ΅Π½Π½ΡΡ Π΄ΠΎΠΌΠΎΠ² ΠΌΠΎΠΆΠ΅Ρ Π±ΡΡΡ ΠΎΡΠΊΠΎΡΡΠ΅ΠΊΡΠΈΡΠΎΠ²Π°Π½Π° ΠΏΡΠΈ ΠΏΠΎΠΌΠΎΡΠΈ ΡΡΠ»ΡΠ³ΠΈ Β«ΠΠΠΠ‘ΠΠΠΠ― ΠΠΠΠΠΠΠΠΠ Π ΠΠ ΠΠΠΠ’Β», ΠΊΠΎΡΠΎΡΠ°Ρ ΡΠ΄Π΅Π»Π°Π΅Ρ Π²ΡΠ±ΡΠ°Π½Π½ΡΠΉ ΠΏΡΠΎΠ΅ΠΊΡ ΠΈΠ΄Π΅Π°Π»ΡΠ½ΠΎ ΠΏΠΎΠ΄Ρ ΠΎΠ΄ΡΡΠΈΠΌ Π΄Π»Ρ Π²Π°Ρ,Β Β«Π’ΠΠΠΠΠ ΠΠΠ ΠΠ ΠΠΠΠΠΠΠΠΠΒ» ΠΏΠΎΠΌΠΎΠΆΠ΅Ρ ΡΠ΅Π°Π»ΠΈΠ·ΠΎΠ²Π°ΡΡ ΠΏΡΠΎΠ΅ΠΊΡ Π±Π΅Π· Π»ΠΈΡΠ½ΠΈΡ Π·Π°ΡΡΠ°Ρ ΠΈ ΡΠΎΡΡΠ°Π²ΠΈΡΡ ΡΠΎΡΠ½ΡΡ ΡΠΌΠ΅ΡΡ ΡΠ΅Π°Π»ΠΈΠ·Π°ΡΠΈΠΈ ΠΏΡΠΎΠ΅ΠΊΡΠ° ΠΏΠΎΠ΄ ΠΊΠ»ΡΡ,ΒΠ Π΅ΡΠΈΠ² ΠΊΡΠΏΠΈΡΡ Π² Π½Π°ΡΠ΅ΠΉ ΠΊΠΎΠΌΠΏΠ°Π½ΠΈΠΈ Π³ΠΎΡΠΎΠ²ΡΠ΅ ΠΈΠ»ΠΈ ΠΈΠ½Π΄ΠΈΠ²ΠΈΠ΄ΡΠ°Π»ΡΠ½ΡΠ΅ Π°ΡΡ ΠΈΡΠ΅ΠΊΡΡΡΠ½ΡΠ΅ ΠΏΡΠΎΠ΅ΠΊΡΡ ΡΠΎΠ²ΡΠ΅ΠΌΠ΅Π½Π½ΡΡ ΠΆΠΈΠ»ΡΡ Π΄ΠΎΠΌΠΎΠ² ΠΏΠΎ ΡΡΠ΅Π΄Π½Π΅ΡΡΠ½ΠΎΡΠ½ΡΠΌ ΡΠ΅Π½Π°ΠΌ, Π·Π°ΠΊΠ°Π·ΡΠΈΠΊ ΠΌΠΎΠΆΠ΅Ρ Π±ΡΡΡ ΡΠ²Π΅ΡΠ΅Π½, ΡΡΠΎ ΠΏΠΎΠ»ΡΡΠΈΡ ΠΏΠΎΠ΄ΡΠΎΠ±Π½ΡΡ Π΄ΠΎΠΊΡΠΌΠ΅Π½ΡΠ°ΡΠΈΡ ΠΏΠΎ ΠΏΡΠΎΠ΅ΠΊΡΡ, ΠΊΠΎΡΠΎΡΠ°Ρ Π²ΠΊΠ»ΡΡΠ°Π΅Ρ 5 ΡΠ°Π·Π΄Π΅Π»ΠΎΠ²: ΡΠΎΡΡΠΎΡΡΠΈΠΉ ΠΈΠ· 3 ΡΠ°ΡΡΠ΅ΠΉ ΠΈΠ½ΠΆΠ΅Π½Π΅ΡΠ½ΡΠΉ ΡΠ°Π·Π΄Π΅Π» (ΡΠ»Π΅ΠΊΡΡΠΎΡΠ½Π°Π±ΠΆΠ΅Π½ΠΈΠ΅, Π²Π΅Π½ΡΠΈΠ»ΡΡΠΈΡ ΠΈ ΠΎΡΠΎΠΏΠ»Π΅Π½ΠΈΠ΅, Π²ΠΎΠ΄ΠΎΡΠ½Π°Π±ΠΆΠ΅Π½ΠΈΠ΅), ΠΊΠΎΠ½ΡΡΡΡΠΊΡΠΈΠ²Π½ΡΠΉ ΠΈ Π°ΡΡ ΠΈΡΠ΅ΠΊΡΡΡΠ½ΡΠΉ. ΠΠ½ΠΆΠ΅Π½Π΅ΡΠ½ΡΠΉ ΡΠ°Π·Π΄Π΅Π» ΠΌΠΎΠΆΠ½ΠΎ ΠΏΡΠΈΠΎΠ±ΡΠ΅ΡΡΠΈ Π·Π° Π΄ΠΎΠΏΠΎΠ»Π½ΠΈΡΠ΅Π»ΡΠ½ΡΡ ΠΎΠΏΠ»Π°ΡΡ.
Π‘ΠΌΠΎΡΡΠ΅ΡΡ ΠΏΡΠΈΠΌΠ΅Ρ ΠΏΡΠΎΠ΅ΠΊΡΠ½ΠΎΠΉ Π΄ΠΎΠΊΡΠΌΠ΅Π½ΡΠ°ΡΠΈΠΈ ΠΊΠΎΠΌΠΏΠ°Π½ΠΈΠΈ Z500 ΠΌΠΎΠΆΠ½ΠΎ Π·Π΄Π΅ΡΡ.ΠΡΠ΅ ΠΏΡΠΎΠ΅ΠΊΡΡ ΡΠ°ΡΡΠ½ΡΡ ΠΊΠΎΡΡΠ΅Π΄ΠΆΠ΅ΠΉ ΠΊΠΎΠΌΠΏΠ°Π½ΠΈΠΈ Z500 Π·Π°ΡΠΈΡΠ°ΡΡΡΡ Π°Π²ΡΠΎΡΡΠΊΠΈΠΌ ΠΏΡΠ°Π²ΠΎΠΌ ΠΈ Π³Π°ΡΠ°Π½ΡΠΈΡΡΡΡ Π·Π°ΡΡΡΠΎΠΉΡΠΈΠΊΠ°ΠΌ ΠΏΡΠ°Π²ΠΎΠ²ΡΡ Π±Π΅Π·ΠΎΠΏΠ°ΡΠ½ΠΎΡΡΡ ΠΏΡΠΈ Π²ΠΎΠ·Π²Π΅Π΄Π΅Π½ΠΈΠΈ Π΄ΠΎΠΌΠΎΠ² ΠΏΠΎ ΠΏΡΠΎΠ΅ΠΊΡΠ°ΠΌ Π½Π°ΡΠ΅ΠΉ ΠΊΠΎΠΌΠΏΠ°Π½ΠΈΠΈ. ΠΠ° ΡΠ°ΠΉΡ ΠΌΡ ΡΠ°ΠΊΠΆΠ΅ ΠΏΠΎΠΌΠ΅ΡΡΠΈΠ»ΠΈ ΡΠ΅ΡΡΠΈΡΠΈΠΊΠ°Ρ, ΠΊΠΎΡΠΎΡΡΠΉ ΡΠ²Π»ΡΠ΅ΡΡΡ ΠΏΠΎΠ΄ΡΠ²Π΅ΡΠΆΠ΄Π΅Π½ΠΈΠ΅ΠΌ ΡΠΎΠ³ΠΎ, ΡΡΠΎ Π½Π°ΡΠ° ΠΊΠΎΠΌΠΏΠ°Π½ΠΈΡ ΡΡΠΎ ΠΎΡΠΈΡΠΈΠ°Π»ΡΠ½ΡΠΉ ΠΏΡΠ΅Π΄ΡΡΠ°Π²ΠΈΡΠ΅Π»Ρ Π°ΡΡ ΠΈΡΠ΅ΠΊΡΡΡΠ½ΠΎΠ³ΠΎ ΠΌΠ΅ΠΆΠ΄ΡΠ½Π°ΡΠΎΠ΄Π½ΠΎΠ³ΠΎ Π±ΡΡΠΎ Z500 Ltd Π² Π½Π°ΡΠ΅ΠΉ ΡΡΡΠ°Π½Π΅.
z500proekty.ru
ΠΠ΄Π½ΠΎΡΡΠ°ΠΆΠ½ΡΠ΅ Π΄ΠΎΠΌΠ° (90 ΡΠΎΡΠΎ): ΠΏΡΠΎΠ΅ΠΊΡΡ ΠΈ ΠΈΠ΄Π΅ΠΈ Π΄ΠΈΠ·Π°ΠΉΠ½Π°
ΠΠ°Π»ΠΈΡΠΈΠ΅ Π·Π΅ΠΌΠ΅Π»ΡΠ½ΠΎΠ³ΠΎ ΡΡΠ°ΡΡΠΊΠ° Π·Π° Π³ΠΎΡΠΎΠ΄ΠΎΠΌ β ΠΎΡΠ»ΠΈΡΠ½Π°Ρ Π²ΠΎΠ·ΠΌΠΎΠΆΠ½ΠΎΡΡΡ Π²ΠΎΠ·Π²Π΅ΡΡΠΈ ΠΏΠΎΠ»Π½ΠΎΡΠ΅Π½Π½ΠΎΠ΅ ΠΆΠΈΠ»ΠΎΠ΅ ΡΡΡΠΎΠ΅Π½ΠΈΠ΅, Π³Π΄Π΅ ΠΌΠΎΠΆΠ½ΠΎ ΡΠΏΠ°ΡΡΠΈΡΡ ΠΎΡ Π³ΠΎΡΠΎΠ΄ΡΠΊΠΎΠΉ ΡΡΠ΅ΡΡ ΠΈ ΠΎΠ³ΡΠ°Π½ΠΈΡΠ΅Π½Π½ΠΎΡΡΠΈ ΠΏΡΠΎΡΡΡΠ°Π½ΡΡΠ²Π°. ΠΠ΅ΡΠΌΠΎΡΡΡ Π½Π° ΡΠΎ, ΡΡΠΎ Π΄Π²ΡΡ -, ΡΡΠ΅Ρ ΡΡΠ°ΠΆΠ½ΡΠ΅ ΠΏΠΎΡΡΡΠΎΠΉΠΊΠΈ Π²ΡΡΡΠ΅ΡΠ°ΡΡΡΡ Π² ΠΏΠΎΡΠ»Π΅Π΄Π½Π΅Π΅ Π²ΡΠ΅ΠΌΡ Π²ΡΠ΅ ΡΠ°ΡΠ΅, ΠΎΠ΄Π½ΠΎΡΡΠ°ΠΆΠ½ΡΠ΅ Π΄ΠΎΠΌΠ° Π½Π΅ ΡΠ΅ΡΡΡΡ ΡΠ²ΠΎΠ΅ΠΉ ΠΏΠΎΠΏΡΠ»ΡΡΠ½ΠΎΡΡΠΈ. ΠΠ±ΡΡΡΠ½ΡΠ΅ΡΡΡ ΡΡΠΎ ΡΠ΅ΠΌ, ΡΡΠΎ ΠΎΠ½ΠΈ ΠΈΠΌΠ΅ΡΡ ΡΠ²ΠΎΠΈ ΠΏΡΠ΅ΠΈΠΌΡΡΠ΅ΡΡΠ²Π°, ΠΊΠΎΡΠΎΡΡΠ΅ ΡΡΠ°Π½ΠΎΠ²ΡΡΡΡ Π½Π°ΠΈΠ±ΠΎΠ»Π΅Π΅ Π°ΠΊΡΡΠ°Π»ΡΠ½ΡΠΌΠΈ Π΄Π»Ρ ΡΠΎΠΉ ΠΈΠ»ΠΈ ΠΈΠ½ΠΎΠΉ ΡΠ΅ΠΌΡΠΈ, Π° ΠΌΠ½ΠΎΠΆΠ΅ΡΡΠ²ΠΎ ΡΠΏΠΎΡΠΎΠ±ΠΎΠ² ΠΏΠ»Π°Π½ΠΈΡΠΎΠ²ΠΊΠΈ ΠΈ Π΄ΠΈΠ·Π°ΠΉΠ½Π° ΠΏΠΎΠ·Π²ΠΎΠ»ΡΡΡ ΠΏΠΎΠ»ΡΡΠΈΡΡ Π² ΠΈΡΠΎΠ³Π΅ ΠΊΠΎΠΌΡΠΎΡΡΠ½ΠΎΠ΅ ΠΆΠΈΠ»ΡΠ΅ Ρ Π²ΡΡΠΎΠΊΠΈΠΌΠΈ ΡΡΡΠ΅ΡΠΈΡΠ΅ΡΠΊΠΈΠΌΠΈ Π΄Π°Π½Π½ΡΠΌΠΈ.
ΠΡΠ΅ΠΈΠΌΡΡΠ΅ΡΡΠ²Π° ΠΎΠ΄Π½ΠΎΡΡΠ°ΠΆΠ½ΡΡ Π΄ΠΎΠΌΠΎΠ²
ΠΠΎΡΡΡΠΎΠΉΠΊΠ° ΠΎΠ΄Π½ΠΎΡΡΠ°ΠΆΠ½ΠΎΠ³ΠΎ Π΄ΠΎΠΌΠ° ΠΈΠΌΠ΅Π΅Ρ ΠΌΠ°ΡΡΡ ΠΏΡΠ΅ΠΈΠΌΡΡΠ΅ΡΡΠ². Π ΠΏΠ΅ΡΠ²ΡΡ ΠΎΡΠ΅ΡΠ΅Π΄Ρ ΡΡΠΎ ΠΊΠ°ΡΠ°Π΅ΡΡΡ ΡΠ΅ΠΌΠ΅ΠΉ, Π³Π΄Π΅ Π΅ΡΡΡ Π΄Π΅ΡΠΈ ΠΈ ΠΏΡΠ΅ΡΡΠ°ΡΠ΅Π»ΡΠ΅ ΡΠ»Π΅Π½Ρ ΡΠ΅ΠΌΡΠΈ, ΠΊΠΎΡΠΎΡΡΠΌ Π΄ΠΎΠ²ΠΎΠ»ΡΠ½ΠΎ ΡΡΡΠ΄Π½ΠΎ ΡΠΏΡΠ°Π²Π»ΡΡΡΡΡ Ρ ΠΏΠΎΠ΄ΡΠ΅ΠΌΠ°ΠΌΠΈ Π½Π° Π²Π΅ΡΡ Π½ΠΈΠ΅ ΡΡΠ°ΠΆΠΈ.
ΠΡΠ»ΠΈ ΠΏΠ»ΠΎΡΠ°Π΄Ρ ΡΡΠ°ΡΡΠΊΠ° Π±ΠΎΠ»ΡΡΠ°Ρ ΠΈ Ρ ΠΎΠ·ΡΠ΅Π²Π° Π½Π΅ ΡΠΎΠ±ΠΈΡΠ°ΡΡΡΡ Π²ΠΎΠ·Π²ΠΎΠ΄ΠΈΡΡ Π½Π° Π½Π΅ΠΉ ΡΠΏΠΎΡΡΠΈΠ²Π½ΡΡ ΠΏΠ»ΠΎΡΠ°Π΄ΠΊΡ ΠΈΠ»ΠΈ ΠΏΡΠ΅Π²ΡΠ°ΡΠ°ΡΡΡΡ Π² Π°Π³ΡΠ°ΡΠΈΠ΅Π², ΠΌΠΎΠΆΠ½ΠΎ ΠΏΠΎΡΡΡΠΎΠΈΡΡ Π΄ΠΎΠ²ΠΎΠ»ΡΠ½ΠΎ Π±ΠΎΠ»ΡΡΠΎΠΉ ΠΎΠ΄Π½ΠΎΡΡΠ°ΠΆΠ½ΡΠΉ Π΄ΠΎΠΌ Ρ Π΄ΠΎΠΏΠΎΠ»Π½ΠΈΡΠ΅Π»ΡΠ½ΡΠΌΠΈ ΠΏΠΎΡΡΡΠΎΠΉΠΊΠ°ΠΌΠΈ, ΠΊΠΎΡΠΎΡΡΠΉ Π·Π°ΠΉΠΌΠ΅Ρ ΠΎΠ±ΡΠΈΡΠ½ΡΡ ΠΏΠ»ΠΎΡΠ°Π΄Ρ.
ΠΠ΅Π±ΠΎΠ»ΡΡΠΎΠΉ ΠΎΠ΄Π½ΠΎΡΡΠ°ΠΆΠ½ΡΠΉ Π΄ΠΎΠΌΠΈΠΊ ΡΡΠ°Π½Π΅Ρ Ρ ΠΎΡΠΎΡΠΈΠΌ ΠΏΠΎΠ΄ΡΠΏΠΎΡΡΠ΅ΠΌ Π΄Π»Ρ ΠΌΠ°Π»Π΅Π½ΡΠΊΠΎΠΉ ΡΠ΅ΠΌΡΠΈ Ρ Π½Π΅Π±ΠΎΠ»ΡΡΠΈΠΌ Π΄ΠΎΡΡΠ°ΡΠΊΠΎΠΌ, ΡΠ°ΠΊ ΠΊΠ°ΠΊ Π΅Π³ΠΎ Π²ΠΎΠ·Π²Π΅Π΄Π΅Π½ΠΈΠ΅ ΠΎΠ±ΠΎΠΉΠ΄Π΅ΡΡΡ Π½Π°ΠΌΠ½ΠΎΠ³ΠΎ Π΄Π΅ΡΠ΅Π²Π»Π΅, ΠΈ ΠΎΠΏΠ»Π°ΡΠ° Π·Π° ΠΊΠΎΠΌΠΌΡΠ½Π°Π»ΡΠ½ΡΠ΅ ΡΡΠ»ΡΠ³ΠΈ Π±ΡΠ΄Π΅Ρ Π·Π½Π°ΡΠΈΡΠ΅Π»ΡΠ½ΠΎ ΠΌΠ΅Π½ΡΡΠ΅. Π§ΡΠΎΠ±Ρ ΡΠ°ΡΡΠΈΡΠΈΡΡ ΠΏΠ»ΠΎΡΠ°Π΄Ρ Π² ΡΠ°ΠΊΠΎΠΌ Π²Π°ΡΠΈΠ°Π½ΡΠ΅, ΠΌΠΎΠΆΠ½ΠΎ ΠΈΡΠΏΠΎΠ»ΡΠ·ΠΎΠ²Π°ΡΡ ΠΏΡΠΎΡΡΡΠ°Π½ΡΡΠ²ΠΎ ΠΊΡΡΡΠΈ, Π½Π° ΠΊΠΎΡΠΎΡΠΎΠΉ ΠΎΡΠ³Π°Π½ΠΈΠ·ΠΎΠ²ΡΠ²Π°ΡΡ ΠΏΡΠΎΡΡΠΎΡΠ½ΡΠ΅ ΠΌΠ°Π½ΡΠ°ΡΠ΄Π½ΡΠ΅ ΠΏΠΎΠΌΠ΅ΡΠ΅Π½ΠΈΡ ΠΈΠ»ΠΈ ΠΏΠ»ΠΎΡΠ°Π΄ΠΊΠΈ Π΄Π»Ρ ΠΎΡΠ΄ΡΡ Π°.
ΠΠ΄Π½ΠΎΡΡΠ°ΠΆΠ½ΡΠ΅ ΠΏΠΎΡΡΡΠΎΠΉΠΊΠΈ ΠΎΡΠ»ΠΈΡΠ°ΡΡΡΡ ΠΏΡΠΎΡΡΠΎΡΠΎΠΉ ΡΡΡΠΎΠΈΡΠ΅Π»ΡΡΡΠ²Π°, ΠΌΠ΅Π½ΡΡΠΈΠΌΠΈ Π·Π°ΡΡΠ°ΡΠ°ΠΌΠΈ Π½Π° ΠΌΠ°ΡΠ΅ΡΠΈΠ°Π»Ρ, ΡΠ°Π±ΠΎΡΡ ΠΈ ΠΊΠΎΡΠΎΡΠΊΠΈΠΌΠΈ ΡΡΠΎΠΊΠ°ΠΌΠΈ Π²ΠΎΠ·Π²Π΅Π΄Π΅Π½ΠΈΡ. Π’Π°ΠΊΠΈΠ΅ Π·Π΄Π°Π½ΠΈΡ ΠΌΠΎΠΆΠ½ΠΎ Π²ΠΎΠ·Π²ΠΎΠ΄ΠΈΡΡ Π½Π° Π³ΡΡΠ½ΡΠ°Ρ Ρ Π»ΡΠ±ΠΎΠΉ Π½Π΅ΡΡΡΠ΅ΠΉ ΡΠΏΠΎΡΠΎΠ±Π½ΠΎΡΡΡΡ, ΠΏΡΠΈ ΡΡΠΎΠΌ Π½Π΅ ΠΏΠΎΡΡΠ΅Π±ΡΠ΅ΡΡΡ ΠΌΠΎΡΠ½Π°Ρ ΡΡΠ½Π΄Π°ΠΌΠ΅Π½ΡΠ½Π°Ρ ΠΎΡΠ½ΠΎΠ²Π°.

ΠΠ· ΡΠ΅Π³ΠΎ ΠΏΠΎΡΡΡΠΎΠΈΡΡ Π΄ΠΎΠΌ
Π Π΅ΡΠΈΠ² ΠΏΠΎΡΡΡΠΎΠΈΡΡ ΡΠ²ΠΎΠΉ ΡΠΎΠ±ΡΡΠ²Π΅Π½Π½ΡΠΉ Π΄ΠΎΠΌ, ΠΌΠ½ΠΎΠ³ΠΈΠ΅ Π·Π°Π΄ΡΠΌΡΠ²Π°ΡΡΡΡ Π½Π°Π΄ ΡΠ΅ΠΌ, ΠΊΠ°ΠΊΠΎΠΉ Π²ΡΠ±ΡΠ°ΡΡ ΠΌΠ°ΡΠ΅ΡΠΈΠ°Π», Π²Π΅Π΄Ρ ΠΎΡ Π½Π΅Π³ΠΎ Π·Π°Π²ΠΈΡΠΈΡ ΠΊΠ°ΠΊ ΡΡΠΎΠΈΠΌΠΎΡΡΡ ΡΡΡΠΎΠΈΡΠ΅Π»ΡΡΡΠ²Π°, ΡΠ°ΠΊ ΠΈ Π΄ΠΎΠ»Π³ΠΎΠ²Π΅ΡΠ½ΠΎΡΡΡ, Π½Π°Π΄Π΅ΠΆΠ½ΠΎΡΡΡ ΠΏΠΎΡΡΡΠΎΠΉΠΊΠΈ, Π΅Π΅ ΡΠΏΠΎΡΠΎΠ±Π½ΠΎΡΡΡ ΡΠΎΡ ΡΠ°Π½ΡΡΡ ΡΠ΅ΠΏΠ»ΠΎ ΠΈ Π±ΡΡΡ ΠΊΠΎΠΌΡΠΎΡΡΠ½ΡΠΌ ΠΆΠΈΠ»ΠΈΡΠ΅ΠΌ. Π‘ΡΡΠΎΠΈΡΠ΅Π»ΡΠ½ΡΠΉ ΡΡΠ½ΠΎΠΊ ΠΏΡΠ΅Π΄Π»Π°Π³Π°Π΅Ρ Π±ΠΎΠ»ΡΡΠΎΠΉ Π²ΡΠ±ΠΎΡ ΡΡΡΡΡ Π΄Π»Ρ ΡΡΡΠΎΠΈΡΠ΅Π»ΡΡΡΠ²Π°, ΡΡΠ΅Π΄ΠΈ ΠΊΠΎΡΠΎΡΡΡ Π½Π°ΠΈΠ±ΠΎΠ»Π΅Π΅ Π°ΠΊΡΡΠ°Π»ΡΠ½ΡΠΌΠΈ ΡΠ²Π»ΡΡΡΡΡ:
ΠΠ΅Π½ΠΎ- ΠΈ Π³Π°Π·ΠΎΠ±Π΅ΡΠΎΠ½ β ΠΌΠ°ΡΠ΅ΡΠΈΠ°Π»Ρ, ΠΎΠ±Π»Π°Π΄Π°ΡΡΠΈΠ΅ Π²ΡΡΠΎΠΊΠΎΠΉ ΡΡΠ΅ΠΏΠ΅Π½ΡΡ ΡΠΊΠΎΠ»ΠΎΠ³ΠΈΡΠ½ΠΎΡΡΠΈ, ΡΠ°ΠΊ ΠΊΠ°ΠΊ ΠΈΠ·Π³ΠΎΡΠ°Π²Π»ΠΈΠ²Π°ΡΡ ΠΈΡ ΠΈΠ· ΡΠΌΠ΅ΡΠΈ ΡΠ΅ΠΌΠ΅Π½ΡΠ°, ΠΏΠ΅ΡΠΊΠ° ΠΈ Π²ΠΎΠ΄Ρ. Π ΠΏΡΠΎΡΠ΅ΡΡΠ΅ ΠΏΡΠΎΠΈΠ·Π²ΠΎΠ΄ΡΡΠ²Π° Π²Π½ΡΡΡΠΈ Π±Π»ΠΎΠΊΠΎΠ² ΠΎΠ±ΡΠ°Π·ΡΡΡΡΡ Π²ΠΎΠ·Π΄ΡΡΠ½ΡΠ΅ ΠΏΡΠΎΡΡΡΠ°Π½ΡΡΠ²Π°, Π·Π° ΡΡΠ΅Ρ ΠΊΠΎΡΠΎΡΡΡ ΠΌΠ°ΡΠ΅ΡΠΈΠ°Π»Ρ ΠΎΠ±ΡΠ΅ΡΠ°ΡΡ Π»Π΅Π³ΠΊΠΎΡΡΡ ΠΈ ΠΎΡΠ»ΠΈΡΠ½ΠΎ ΠΏΡΠΎΠΏΡΡΠΊΠ°ΡΡ Π²ΠΎΠ·Π΄ΡΡ . ΠΠ½ΠΈ ΠΏΠΎΠΆΠ°ΡΠΎΠ±Π΅Π·ΠΎΠΏΠ°ΡΠ½Ρ, ΡΡΡΠΎΠΉΡΠΈΠ²Ρ ΠΊ Π²ΠΎΠ·Π΄Π΅ΠΉΡΡΠ²ΠΈΡ ΡΠ΅ΠΌΠΏΠ΅ΡΠ°ΡΡΡ ΠΈ ΠΈΠΌΠ΅ΡΡ Π²ΡΡΠΎΠΊΠΈΠ΅ ΡΠ΅ΠΏΠ»ΠΎΠΈΠ·ΠΎΠ»ΡΡΠΈΠΎΠ½Π½ΡΠ΅ Ρ Π°ΡΠ°ΠΊΡΠ΅ΡΠΈΡΡΠΈΠΊΠΈ. ΠΠΎΠΌΠ° ΠΈΠ· Π΄Π°Π½Π½ΠΎΠ³ΠΎ ΠΌΠ°ΡΠ΅ΡΠΈΠ°Π»Π° ΠΏΠΎΠ·Π²ΠΎΠ»ΡΡΡ Π·Π½Π°ΡΠΈΡΠ΅Π»ΡΠ½ΠΎ ΡΡΠΊΠΎΠ½ΠΎΠΌΠΈΡΡ Π½Π° ΡΡΠ½Π΄Π°ΠΌΠ΅Π½ΡΠ΅, Π½ΠΎ ΡΡΠ΅Π±ΡΡΡ Π΄ΠΎΠΏΠΎΠ»Π½ΠΈΡΠ΅Π»ΡΠ½ΠΎΠΉ ΠΎΡΠ΄Π΅Π»ΠΊΠΈ;
ΠΠΈΡΠΏΠΈΡ β ΠΌΠΎΠΆΠ½ΠΎ Π½Π°Π·Π²Π°ΡΡ Π½Π°ΠΈΠ±ΠΎΠ»Π΅Π΅ Β«Π΄ΡΠ΅Π²Π½ΠΈΠΌΒ» ΠΌΠ°ΡΠ΅ΡΠΈΠ°Π»ΠΎΠΌ. ΠΠ½ ΡΠ»ΡΠΆΠΈΡ ΡΡΡΡΠ΅ΠΌ Π΄Π»Ρ ΡΡΡΠΎΠΈΡΠ΅Π»ΡΡΡΠ²Π° Π΄ΠΎΠΌΠΎΠ² Π½Π° ΠΏΡΠΎΡΡΠΆΠ΅Π½ΠΈΠΈ ΠΌΠ½ΠΎΠ³ΠΈΡ Π»Π΅Ρ, ΠΎΠ΄Π½Π°ΠΊΠΎ Π½Π° ΡΠ΅Π³ΠΎΠ΄Π½ΡΡΠ½ΠΈΠΉ Π΄Π΅Π½Ρ ΡΡΡΡΠΏΠ°Π΅Ρ ΠΏΠΎ ΡΠ²ΠΎΠ΅ΠΉ ΡΠ΅ΠΏΠ»ΠΎΠΏΡΠΎΠ²ΠΎΠ΄Π½ΠΎΡΡΠΈ Π½ΠΎΠ²ΡΠΌ ΡΡΠ°Π½Π΄Π°ΡΡΠ°ΠΌ, ΠΏΠΎΡΡΠΎΠΌΡ ΡΠ°ΡΠ΅ ΠΈΡΠΏΠΎΠ»ΡΠ·ΡΠ΅ΡΡΡ Π² ΠΊΠ°ΡΠ΅ΡΡΠ²Π΅ ΠΎΠ±Π»ΠΈΡΠΎΠ²ΠΊΠΈ;
ΠΠ΅ΡΠ°ΠΌΠΈΡΠ΅ΡΠΊΠΈΠ΅ Π±Π»ΠΎΠΊΠΈ β ΠΏΡΠ΅ΠΊΡΠ°ΡΠ½Π°Ρ Π°Π»ΡΡΠ΅ΡΠ½Π°ΡΠΈΠ²Π° ΠΊΠΈΡΠΏΠΈΡΡ. ΠΠ°ΡΠ΅ΡΠΈΠ°Π» ΠΈΠΌΠ΅Π΅Ρ Π²ΡΡΠΎΠΊΡΡ ΠΏΡΠΎΡΠ½ΠΎΡΡΡ, ΠΌΠΎΡΠΎΠ·ΠΎΡΡΠΎΠΉΠΊΠΎΡΡΡ, Π½ΠΎ ΡΡΠΎΠΈΡ Π³ΠΎΡΠ°Π·Π΄ΠΎ Π΄ΠΎΡΠΎΠΆΠ΅. Π‘ΡΠΎΠΈΡ ΠΎΡΠΌΠ΅ΡΠΈΡΡ, ΡΡΠΎ ΡΡΡΠΎΠΈΡΡ Π·Π΄Π°Π½ΠΈΡ ΠΈΠ· Π±Π»ΠΎΠΊΠΎΠ² Π½Π°ΠΌΠ½ΠΎΠ³ΠΎ Π±ΡΡΡΡΠ΅Π΅, ΡΠ°ΠΊ ΠΊΠ°ΠΊ ΠΎΠ΄Π½Π° Π΅Π΄ΠΈΠ½ΠΈΡΠ° Π·Π°ΠΌΠ΅Π½ΡΠ΅Ρ ΠΏΠΎ ΡΠ°Π·ΠΌΠ΅ΡΠ°ΠΌ ΠΎΠΊΠΎΠ»ΠΎ 7 ΠΊΠΈΡΠΏΠΈΡΠ΅ΠΉ;
ΠΠΎΠ½ΠΎΠ»ΠΈΡ β Π΄Π°Π΅Ρ Π²ΠΎΠ·ΠΌΠΎΠΆΠ½ΠΎΡΡΡ Π²ΠΎΠ·Π²ΠΎΠ΄ΠΈΡΡ ΠΏΠΎΡΡΡΠΎΠΉΠΊΡ Π² ΠΌΠ°ΠΊΡΠΈΠΌΠ°Π»ΡΠ½ΠΎ ΠΊΠΎΡΠΎΡΠΊΠΈΠ΅ ΡΡΠΎΠΊΠΈ, ΠΏΡΠΈ ΡΡΠΎΠΌ ΡΡΠ΅Π½Ρ ΠΎΠ±Π»Π°Π΄Π°ΡΡ Π²ΡΡΠΎΠΊΠΈΠΌΠΈ ΠΏΡΠΎΡΠ½ΠΎΡΡΠ½ΡΠΌΠΈ ΠΈ ΡΠ΅ΠΏΠ»ΠΎΠΈΠ·ΠΎΠ»ΡΡΠΈΠΎΠ½Π½ΡΠΌΠΈ ΠΊΠ°ΡΠ΅ΡΡΠ²Π°ΠΌΠΈ;
ΠΠ°ΠΌΠ΅Π½Ρ β Π΄Π°Π΅Ρ Π²ΠΎΠ·ΠΌΠΎΠΆΠ½ΠΎΡΡΡ ΠΏΠΎΡΡΡΠΎΠΉΠΊΠΈ Π΄ΠΎΠΌΠΎΠ² Ρ ΠΎΠΏΡΠΈΠΌΠ°Π»ΡΠ½ΡΠΌ ΠΌΠΈΠΊΡΠΎΠΊΠ»ΠΈΠΌΠ°ΡΠΎΠΌ, Π² ΠΊΠΎΡΠΎΡΡΡ ΡΠ΅ΠΏΠ»ΠΎ Π·ΠΈΠΌΠΎΠΉ ΠΈ ΠΏΡΠΎΡ Π»Π°Π΄Π½ΠΎ Π»Π΅ΡΠΎΠΌ. ΠΠΎΠ½ΡΡΡΡΠΊΡΠΈΠΈ ΠΈΠ· ΠΊΠ°ΠΌΠ½Ρ ΠΎΠ±Π»Π°Π΄Π°ΡΡ ΡΠ°ΠΌΡΠΌ Π²ΡΡΠΎΠΊΠΈΠΌ ΡΡΠΎΠΊΠΎΠΌ Π΄ΠΎΠ»Π³ΠΎΠ²Π΅ΡΠ½ΠΎΡΡΠΈ, ΠΎΠ΄Π½Π°ΠΊΠΎ ΠΈ ΠΏΠΎ ΡΡΠΎΠΈΠΌΠΎΡΡΠΈ Π³ΠΎΡΠ°Π·Π΄ΠΎ ΠΏΡΠ΅Π²ΠΎΡΡ ΠΎΠ΄ΡΡ Π²ΡΠ΅ ΠΏΡΠ΅Π΄ΡΠ΄ΡΡΠΈΠ΅ Π²Π°ΡΠΈΠ°Π½ΡΡ;
ΠΠ΅ΡΠ΅Π²ΠΎ β ΡΠ΅ΠΏΠ»ΡΠΉ, ΡΠΊΠΎΠ»ΠΎΠ³ΠΈΡΠ½ΡΠΉ ΠΌΠ°ΡΠ΅ΡΠΈΠ°Π» Π΄Π»Ρ ΡΡΡΠΎΠΈΡΠ΅Π»ΡΡΡΠ²Π°. Π§Π°ΡΠ΅ Π²ΡΠ΅Π³ΠΎ Π΄Π»Ρ ΠΎΠ΄Π½ΠΎΡΡΠ°ΠΆΠ½ΡΡ Π΄ΠΎΠΌΠΎΠ² ΠΈΡΠΏΠΎΠ»ΡΠ·ΡΠ΅ΡΡΡ ΠΏΡΠΎΡΠΈΠ»ΠΈΡΠΎΠ²Π°Π½Π½ΡΠΉ Π±ΡΡΡ, ΠΊΠΎΡΠΎΡΡΠΉ, ΠΏΠΎΠΌΠΈΠΌΠΎ Π²ΡΡΠΎΠΊΠΎΠ³ΠΎ ΠΊΠ°ΡΠ΅ΡΡΠ²Π°, ΠΈΠΌΠ΅Π΅Ρ ΠΏΡΠ΅Π²ΠΎΡΡ ΠΎΠ΄Π½ΡΠ΅ Π²Π½Π΅ΡΠ½ΠΈΠ΅ Π΄Π°Π½Π½ΡΠ΅. ΠΡΡΡΠ΅ΡΠ°ΡΡΡΡ ΡΠ°ΠΊΠΆΠ΅ ΠΊΡΠ°ΡΠΈΠ²ΡΠ΅ Β«ΡΠΊΠ°Π·ΠΎΡΠ½ΡΠ΅Β» Π΄ΠΎΠΌΠ° ΠΈΠ· ΠΎΡΠΈΠ»ΠΈΠ½Π΄ΡΠΎΠ²Π°Π½Π½ΠΎΠ³ΠΎ Π±ΡΠ΅Π²Π½Π°;
ΠΠ΅ΡΠ΅Π²ΡΠ½Π½ΡΠΉ ΠΊΠ°ΡΠΊΠ°Ρ β ΠΎΠ±Π΅ΡΠΏΠ΅ΡΠΈΠ²Π°Π΅Ρ Π±ΡΡΡΡΠΎΠ΅ Π²ΠΎΠ·Π²Π΅Π΄Π΅Π½ΠΈΠ΅ Π΄ΠΎΠΌΠ°, Π½ΠΎ Π²ΠΎΠΏΡΠΎΡ ΠΎ Π΅Π³ΠΎ Π΄ΠΎΠ»Π³ΠΎΠ²Π΅ΡΠ½ΠΎΡΡΠΈ Π΄ΠΎΠ²ΠΎΠ»ΡΠ½ΠΎ ΡΠΏΠΎΡΠ½ΡΠΉ. Π’Π°ΠΊΠΈΠ΅ ΠΏΠΎΡΡΡΠΎΠΉΠΊΠΈ ΠΎΠ±Ρ ΠΎΠ΄ΡΡΡΡ ΠΎΡΠ½ΠΎΡΠΈΡΠ΅Π»ΡΠ½ΠΎ Π΄Π΅ΡΠ΅Π²ΠΎ, Π° Π½Π΅Π΄ΠΎΡΡΠ°ΡΠΊΠ°ΠΌΠΈ Π²ΡΡΡΡΠΏΠ°ΡΡ Π½ΠΈΠ·ΠΊΠ°Ρ ΠΏΠ°ΡΠΎΠΏΡΠΎΠ½ΠΈΡΠ°Π΅ΠΌΠΎΡΡΡ ΠΈ ΡΡΠΌΠΎΠΈΠ·ΠΎΠ»ΡΡΠΈΡ. ΠΠ΄Π½Π°ΠΊΠΎ Π΄ΠΎΠΏΠΎΠ»Π½ΠΈΡΠ΅Π»ΡΠ½ΡΠ΅ ΡΡΡΠΎΠΉΠΌΠ°ΡΠ΅ΡΠΈΠ°Π»Ρ ΠΌΠΎΠ³ΡΡ ΠΏΠΎΠΌΠΎΡΡ ΡΡΡΡΠ°Π½ΠΈΡΡ ΡΡΠΈ ΠΌΠΈΠ½ΡΡΡ ΠΊΠΎΠ½ΡΡΡΡΠΊΡΠΈΠΉ.

Π‘ΠΎΠ²ΡΠ΅ΠΌΠ΅Π½Π½ΡΠ΅ ΠΏΡΠΎΠ΅ΠΊΡΡ ΠΎΠ΄Π½ΠΎΡΡΠ°ΠΆΠ½ΡΡ Π΄ΠΎΠΌΠΎΠ²
ΠΠ° ΡΠ΅Π³ΠΎΠ΄Π½ΡΡΠ½ΠΈΠΉ Π΄Π΅Π½Ρ ΡΡΡΠ΅ΡΡΠ²ΡΠ΅Ρ ΠΌΠ½ΠΎΠΆΠ΅ΡΡΠ²ΠΎ ΡΡΡΠΎΠΈΡΠ΅Π»ΡΠ½ΡΡ ΠΊΠΎΠΌΠΏΠ°Π½ΠΈΠΉ, ΠΏΡΠ΅Π΄Π»Π°Π³Π°ΡΡΠΈΡ Π³ΠΎΡΠΎΠ²ΡΠ΅ ΠΏΡΠΎΠ΅ΠΊΡΡ ΠΎΠ΄Π½ΠΎΡΡΠ°ΠΆΠ½ΡΡ Π΄ΠΎΠΌΠΎΠ². ΠΡΠ»ΠΈ ΠΆΠ΅ ΠΡ ΡΠ΅ΡΠΈΠ»ΠΈ ΡΠΎΡΡΠ°Π²ΠΈΡΡ ΡΠ²ΠΎΠΉ ΠΈΠ½Π΄ΠΈΠ²ΠΈΠ΄ΡΠ°Π»ΡΠ½ΡΠΉ ΠΏΡΠ΅Π΄Π²Π°ΡΠΈΡΠ΅Π»ΡΠ½ΡΠΉ ΠΏΠ»Π°Π½, ΡΡΠΎΠΈΡ ΠΎΠ±ΡΠ°ΡΠΈΡΡ Π²Π½ΠΈΠΌΠ°Π½ΠΈΠ΅ Π½Π° Π½Π΅ΠΊΠΎΡΠΎΡΡΠ΅ Π½Π°ΠΈΠ±ΠΎΠ»Π΅Π΅ ΡΠ΄Π°ΡΠ½ΡΠ΅ Π²Π°ΡΠΈΠ°Π½ΡΡ ΠΏΠ»Π°Π½ΠΈΡΠΎΠ²ΠΎΠΊ, ΠΈΠ· ΠΊΠΎΡΠΎΡΡΡ ΠΌΠΎΠΆΠ½ΠΎ ΠΏΠΎΡΠ΅ΡΠΏΠ½ΡΡΡ ΡΠΎ, ΡΡΠΎ Π½ΡΠΆΠ½ΠΎ Π΄Π»Ρ ΠΠ°ΡΠ΅ΠΉ ΡΠ΅ΠΌΡΠΈ.
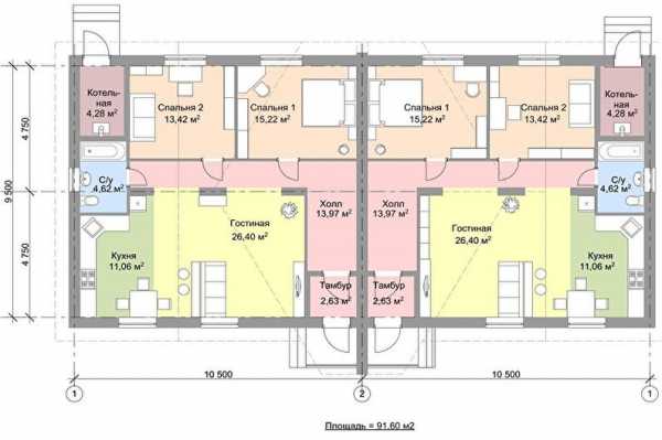
ΠΠ΄Π½ΠΎΡΡΠ°ΠΆΠ½ΡΠΉ Π΄ΠΎΠΌ Ρ Π΄Π²ΡΠΌΡ Π²Ρ ΠΎΠ΄Π°ΠΌΠΈ
ΠΡΠ»ΠΈ ΠΏΡΠ΅Π΄ΠΏΠΎΠ»Π°Π³Π°Π΅ΡΡΡ Π² Π±ΡΠ΄ΡΡΠ΅ΠΌ ΡΠ°ΡΡΠΈΡΠ΅Π½ΠΈΠ΅ ΡΠ΅ΠΌΡΠΈ, Π½Π°ΠΏΡΠΈΠΌΠ΅Ρ, ΠΊΠΎΠ³Π΄Π° ΠΊΡΠΎ-ΡΠΎ ΠΈΠ· Π΄Π΅ΡΠ΅ΠΉ Π²ΡΡ ΠΎΠ΄ΠΈΡ Π·Π°ΠΌΡΠΆ ΠΈΠ»ΠΈ ΠΆΠ΅Π½ΠΈΡΡΡ, ΡΠ΄Π°ΡΠ½ΡΠΌ Π²Π°ΡΠΈΠ°Π½ΡΠΎΠΌ ΡΡΠ°Π½Π΅Ρ ΠΏΠΎΡΡΡΠΎΠΉΠΊΠ° ΠΎΠ΄Π½ΠΎΡΡΠ°ΠΆΠ½ΠΎΠ³ΠΎ Π΄ΠΎΠΌΠ° Ρ Π΄Π²ΡΠΌΡ Π²Ρ ΠΎΠ΄Π°ΠΌΠΈ. Π’Π°ΠΊΡΡ ΠΏΠ»Π°Π½ΠΈΡΠΎΠ²ΠΊΡ (Π΄ΡΠΏΠ»Π΅ΠΊΡ) Π»ΡΡΡΠ΅ ΠΏΡΠΎΠ΄ΡΠΌΡΠ²Π°ΡΡ Π·Π°ΡΠ°Π½Π΅Π΅, ΡΡΠΎΠ±Ρ Π½Π΅ ΡΡΠΎΠ»ΠΊΠ½ΡΡΡΡΡ Ρ Π½Π΅ΠΎΠ±Ρ ΠΎΠ΄ΠΈΠΌΠΎΡΡΡΡ ΡΠ΅ΠΊΠΎΠ½ΡΡΡΡΠΊΡΠΈΠΈ. ΠΠ°ΠΊ ΠΏΡΠ°Π²ΠΈΠ»ΠΎ, ΡΠ°ΠΊΠΈΠ΅ ΠΏΠΎΡΡΡΠΎΠΉΠΊΠΈ ΠΈΠΌΠ΅ΡΡ ΡΠΈΠΌΠΌΠ΅ΡΡΠΈΡΠ½ΡΠΉ Π²ΠΈΠ΄, ΠΏΡΠΈ ΡΡΠΎΠΌ Π½Π° ΠΎΠ±ΡΠ΅ΠΉ ΡΠ΅ΡΡΠΈΡΠΎΡΠΈΠΈ ΠΌΠΎΠΆΠ½ΠΎ ΡΠ°Π·ΠΌΠ΅ΡΡΠΈΡΡ Π΄Π²Π° Π³Π°ΡΠ°ΠΆΠ°, ΠΎΠ±ΡΠΈΠΉ Π±Π°ΡΡΠ΅ΠΉΠ½ ΠΈΠ»ΠΈ ΠΏΡΠΎΡΡΠΎΡΠ½ΡΠΉ ΡΠΎΠ²ΠΌΠ΅ΡΡΠ½ΡΠΉ Ρ ΠΎΠ»Π», Π³Π΄Π΅ Π·Π° ΡΠ΅ΠΌΠ΅ΠΉΠ½ΡΠΌ ΡΠΆΠΈΠ½ΠΎΠΌ Π±ΡΠ΄ΡΡ Π²ΡΡΡΠ΅ΡΠ°ΡΡΡΡ Π½Π΅ΡΠΊΠΎΠ»ΡΠΊΠΎ ΠΏΠΎΠΊΠΎΠ»Π΅Π½ΠΈΠΉ. Π Π΄Π°Π½Π½ΠΎΠΌ ΡΠ»ΡΡΠ°Π΅ Π½ΡΠΆΠ½ΠΎ Ρ ΠΎΡΠΎΡΠ΅Π½ΡΠΊΠΎ ΠΏΡΠΎΠ΄ΡΠΌΠ°ΡΡ ΠΈ ΡΠ°ΡΡΡΠΈΡΠ°ΡΡ ΠΊΠΎΠ»ΠΈΡΠ΅ΡΡΠ²ΠΎ ΠΏΠΎΠΌΠ΅ΡΠ΅Π½ΠΈΠΉ ΠΈ ΠΈΡ ΡΡΠ½ΠΊΡΠΈΠΎΠ½Π°Π»ΡΠ½ΡΡ Π½Π°Π³ΡΡΠ·ΠΊΡ, Ρ ΡΡΠ΅ΡΠΎΠΌ ΡΠΎΠ³ΠΎ, ΡΡΠΎ ΠΏΠ»ΠΎΡΠ°Π΄Ρ, Π² Π±ΠΎΠ»ΡΡΠΈΠ½ΡΡΠ²Π΅ ΡΠ»ΡΡΠ°Π΅Π², Π½Π΅ ΠΏΡΠ΅Π΄ΠΏΠΎΠ»Π°Π³Π°Π΅Ρ ΠΈΠ·Π»ΠΈΡΠΊΠΎΠ² ΠΏΡΠΎΡΡΡΠ°Π½ΡΡΠ²Π°. ΠΡΠΈ ΠΆΠ΅Π»Π°Π½ΠΈΠΈ ΠΌΠΎΠΆΠ½ΠΎ ΠΈ Π²ΠΎΠ²ΡΠ΅ ΡΠ°Π·Π³ΡΠ°Π½ΠΈΡΠΈΡΡ ΠΏΠ»ΠΎΡΠ°Π΄ΠΈ, Π½Π΅ ΠΏΠ»Π°Π½ΠΈΡΡΡ ΠΎΠ±ΡΠΈΡ ΠΏΠΎΠΌΠ΅ΡΠ΅Π½ΠΈΠΉ.

ΠΠ΄Π½ΠΎΡΡΠ°ΠΆΠ½ΡΠΉ Π΄ΠΎΠΌ Ρ Π»Π΅ΡΠ½Π΅ΠΉ ΠΊΡΡ Π½Π΅ΠΉ
ΠΠ΅ΡΠ½ΡΡ ΠΊΡΡ Π½Ρ, Π±Π΅Π·ΡΡΠ»ΠΎΠ²Π½ΠΎ, ΡΡΠ°Π½Π΅Ρ Ρ ΠΎΡΠΎΡΠΈΠΌ ΠΏΠΎΠ΄ΡΠΏΠΎΡΡΠ΅ΠΌ Π² ΠΆΠ°ΡΠΊΡΡ ΠΏΠΎΡΡ, Π° Π±ΡΠ΄ΡΡΠΈ ΡΡΠ΅ΠΏΠ»Π΅Π½Π½ΠΎΠΉ, ΠΌΠΎΠΆΠ΅Ρ ΡΠΊΡΠΏΠ»ΡΠ°ΡΠΈΡΠΎΠ²Π°ΡΡΡΡ ΠΈ Π² Π·ΠΈΠΌΠ½Π΅Π΅ Π²ΡΠ΅ΠΌΡ. ΠΠ½Π° ΠΏΠΎΠΌΠΎΠ³Π°Π΅Ρ ΠΈΠ·Π±Π΅ΠΆΠ°ΡΡ ΠΏΠΎΠΏΠ°Π΄Π°Π½ΠΈΡ Π² ΠΆΠΈΠ»ΡΠ΅ ΠΊΠΎΠΌΠ½Π°ΡΡ ΠΈΠ·Π»ΠΈΡΠ½ΠΈΡ Π°ΡΠΎΠΌΠ°ΡΠΎΠ² ΠΏΠΈΡΠΈ, ΠΏΠ°ΡΠ° ΠΈ Π²Π»Π°Π³ΠΈ, ΡΡΠΎ ΠΎΡΠΎΠ±Π΅Π½Π½ΠΎ Π°ΠΊΡΡΠ°Π»ΡΠ½ΠΎ Π² ΠΏΠ΅ΡΠΈΠΎΠ΄ ΠΊΠΎΠ½ΡΠ΅ΡΠ²Π°ΡΠΈΠΈ. ΠΠ΅ΡΠ½ΡΡ ΠΊΡΡ Π½Ρ ΠΌΠΎΠΆΠ΅Ρ Π±ΡΡΡ ΠΎΡΠΊΡΡΡΠΎΠΉ ΠΈΠ»ΠΈ Π·Π°ΠΊΡΡΡΠΎΠΉ, ΠΈΠΌΠ΅ΡΡ ΡΠΏΠ»ΠΎΡΠ½ΡΠ΅ ΠΈΠ»ΠΈ ΠΎΡΡΠ΅ΠΊΠ»Π΅Π½Π½ΡΠ΅ ΡΡΠ΅Π½Ρ. ΠΡΠ΅Π½Ρ ΡΠ΄ΠΎΠ±Π½ΠΎ ΡΠ°Π·ΠΌΠ΅ΡΡΠΈΡΡ ΠΏΠΎΠ΄ Π½Π΅ΠΉ ΠΏΠΎΠ΄Π²Π°Π» Π΄Π»Ρ Ρ ΡΠ°Π½Π΅Π½ΠΈΡ ΠΏΡΠΎΠ΄ΡΠΊΡΠΎΠ². Π ΠΎΡΠΊΡΡΡΠΎΠΌ Π²Π°ΡΠΈΠ°Π½ΡΠ΅, ΠΊΠΎΠ³Π΄Π° ΡΠ΅ΡΡΠΈΡΠΎΡΠΈΡ Π·Π°ΡΠΈΡΠ°Π΅ΡΡΡ Π»ΠΈΡΡ Π½Π°Π²Π΅ΡΠΎΠΌ ΠΈ, Π²ΠΎΠ·ΠΌΠΎΠΆΠ½ΠΎ, Π±ΠΎΠΊΠΎΠ²ΡΠΌΠΈ ΡΡΠ΅Π½Π°ΠΌΠΈ, Π·Π΄Π΅ΡΡ ΠΌΠΎΠΆΠ½ΠΎ ΡΡΡΠ°Π½ΠΎΠ²ΠΈΡΡ Π³ΡΠΈΠ»Ρ-ΠΏΠ΅ΡΡ, ΠΎΠ±Π΅Π΄Π΅Π½Π½ΡΠΉ ΡΡΠΎΠ», Π΄ΠΈΠ²Π°Π½, ΡΠΎΠ·Π΄Π°Π² ΡΠ²ΠΎΠ΅Π³ΠΎ ΡΠΎΠ΄Π° ΡΠ΅ΡΡΠ°ΡΡ.

ΠΠ΄Π½ΠΎΡΡΠ°ΠΆΠ½ΡΠΉ Π΄ΠΎΠΌ Ρ ΠΌΠ°Π½ΡΠ°ΡΠ΄ΠΎΠΉ
ΠΠ°Π»ΠΈΡΠΈΠ΅ ΠΌΠ°Π½ΡΠ°ΡΠ΄Ρ β ΡΡΠΎ ΠΎΠ³ΡΠΎΠΌΠ½ΡΠΉ ΠΏΠ»ΡΡ ΠΊ ΠΎΠ±ΡΠ΅ΠΉ ΠΏΠ»ΠΎΡΠ°Π΄ΠΈ ΠΎΠ΄Π½ΠΎΡΡΠ°ΠΆΠ½ΠΎΠΉ ΠΏΠΎΡΡΡΠΎΠΉΠΊΠΈ. ΠΡΠ»ΠΈ ΠΏΡΠΎΠ²Π΅ΡΡΠΈ ΠΎΡΠΎΠΏΠ»Π΅Π½ΠΈΠ΅, Π·Π΄Π΅ΡΡ Π²ΠΏΠΎΠ»Π½Π΅ Π½Π°ΠΉΠ΄Π΅ΡΡΡ ΠΌΠ΅ΡΡΠΎ Π΄Π»Ρ ΡΠΏΠ°Π»ΡΠ½ΡΡ ΠΈ Π΄Π΅ΡΡΠΊΠΈΡ ΠΊΠΎΠΌΠ½Π°Ρ. ΠΠ°Π½ΡΠ°ΡΠ΄Π½ΡΠ΅ ΠΏΠΎΠΌΠ΅ΡΠ΅Π½ΠΈΡ Π½Π΅ΡΠ΅Π΄ΠΊΠΎ ΠΈΡΠΏΠΎΠ»ΡΠ·ΡΡΡΡΡ Π² ΠΊΠ°ΡΠ΅ΡΡΠ²Π΅ ΡΠΏΠΎΡΡΠ·Π°Π»ΠΎΠ², Π·Π΄Π΅ΡΡ ΡΡΡΠ°Π½Π°Π²Π»ΠΈΠ²Π°ΡΡ Π±ΠΈΠ»ΡΡΡΠ΄Π½ΡΠ΅, ΡΠ΅Π½Π½ΠΈΡΠ½ΡΠ΅ ΡΡΠΎΠ»Ρ ΠΈΠ»ΠΈ ΠΆΠ΅ ΠΏΠΎΠΏΡΠΎΡΡΡ ΠΎΡΠ³Π°Π½ΠΈΠ·ΠΎΠ²ΡΠ²Π°ΡΡ ΠΏΡΠΎΡΡΠΎΡΠ½ΡΠ΅ Π³Π°ΡΠ΄Π΅ΡΠΎΠ±Π½ΡΠ΅. Π‘ΡΠΎΠΈΡ ΠΎΡΠΌΠ΅ΡΠΈΡΡ ΠΈ ΡΠΎΡ ΡΠ°ΠΊΡ, ΡΡΠΎ Π²Π½Π΅ΡΠ½ΠΈΠΉ Π²ΠΈΠ΄ ΠΎΠ΄Π½ΠΎΡΡΠ°ΠΆΠ½ΠΎΠ³ΠΎ Π΄ΠΎΠΌΠ° Ρ ΠΌΠ°Π½ΡΠ°ΡΠ΄ΠΎΠΉ ΠΈΠΌΠ΅Π΅Ρ Π΄ΠΎΠ²ΠΎΠ»ΡΠ½ΠΎ ΡΠΎΡΠΊΠΎΡΠ½ΡΠΉ Π²ΠΈΠ΄.

ΠΠ΄Π½ΠΎΡΡΠ°ΠΆΠ½ΡΠΉ Π΄ΠΎΠΌ Ρ ΠΏΠ°Π½ΠΎΡΠ°ΠΌΠ½ΡΠΌΠΈ ΠΎΠΊΠ½Π°ΠΌΠΈ
Π‘ΠΎΠ²ΡΠ΅ΠΌΠ΅Π½Π½ΠΎΠΉ ΡΠ΅Π½Π΄Π΅Π½ΡΠΈΠ΅ΠΉ Π² ΡΡΡΠΎΠΈΡΠ΅Π»ΡΡΡΠ²Π΅ Π·Π°Π³ΠΎΡΠΎΠ΄Π½ΡΡ ΠΆΠΈΠ»ΡΡ Π΄ΠΎΠΌΠΎΠ² ΡΡΠ°Π»Π° ΠΌΠΎΠ΄Π° Π½Π° ΠΏΠΎΡΡΡΠΎΠΉΠΊΠΈ Ρ Π±ΠΎΠ»ΡΡΠΈΠΌΠΈ ΠΏΠ°Π½ΠΎΡΠ°ΠΌΠ½ΡΠΌΠΈ ΠΎΠΊΠ½Π°ΠΌΠΈ. ΠΠ°Π΄ΡΠΌΠ°Π²ΡΠΈΡΡ ΠΎ ΡΠ°ΠΊΠΎΠΌ ΠΏΡΠΎΠ΅ΠΊΡΠ΅, Π½Π΅ΠΎΠ±Ρ ΠΎΠ΄ΠΈΠΌΠΎ ΡΡΠ΅ΡΡΡ ΠΎΠ΄Π½Ρ Π²Π°ΠΆΠ½ΡΡ Π΄Π΅ΡΠ°Π»Ρ β ΠΎΡΠΊΡΡΡΠΎΡΡΡ ΠΏΡΠΎΡΡΡΠ°Π½ΡΡΠ²Π° Π²Π½ΡΡΡΠΈ. ΠΠΎΡΡΠΎΠΌΡ, Π΅ΡΠ»ΠΈ ΡΡΠ΄ΠΎΠΌ Π΅ΡΡΡ ΡΠΎΡΠ΅Π΄ΡΡΠ²ΡΡΡΠΈΠ΅ ΡΡΡΠΎΠ΅Π½ΠΈΡ, ΠΏΠΎΡΠ²ΠΈΡΡΡ Π½Π΅ΠΎΠ±Ρ ΠΎΠ΄ΠΈΠΌΠΎΡΡΡ Π²ΠΎΠ·Π²Π΅Π΄Π΅Π½ΠΈΡ Π²ΡΡΠΎΠΊΠΎΠ³ΠΎ Π·Π°Π±ΠΎΡΠ° Π»ΠΈΠ±ΠΎ ΠΎΡΠΎΡΠΌΠ»Π΅Π½ΠΈΡ ΠΎΠΊΠΎΠ½ ΡΡΠΎΡΠ°ΠΌΠΈ. Π’Π°ΠΊΠΆΠ΅ ΡΡΠΎΠΈΡ ΡΡΠ΅ΡΡΡ ΠΈ ΡΠΎ, ΡΡΠΎ ΡΡΠ΅ΠΊΠ»ΠΎ Π½Π΅ ΡΠΏΠΎΡΠΎΠ±Π½ΠΎ ΡΡΡΠ΅ΠΊΡΠΈΠ²Π½ΠΎ ΡΠ±Π΅ΡΠ΅Π³Π°ΡΡ ΡΠ΅ΠΏΠ»ΠΎ, ΡΠ°ΠΊ ΡΡΠΎ Π·Π°ΡΡΠ°ΡΡ Π½Π° ΠΎΡΠΎΠΏΠ»Π΅Π½ΠΈΠ΅ Π² Ρ ΠΎΠ»ΠΎΠ΄Π½ΡΠ΅ ΠΏΠ΅ΡΠΈΠΎΠ΄Ρ Π³ΠΎΠ΄Π° ΡΠ²Π΅Π»ΠΈΡΠ°ΡΡΡ. Π ΠΎΡΡΠ°Π»ΡΠ½ΠΎΠΌ ΠΆΠ΅ ΠΌΠΎΠΆΠ½ΠΎ ΡΠΊΠ°Π·Π°ΡΡ, ΡΡΠΎ ΡΠ°ΠΊΠΈΠ΅ ΠΊΠΎΠ½ΡΡΡΡΠΊΡΠΈΠΈ Π²ΡΠ³Π»ΡΠ΄ΡΡ ΠΎΡΠ΅Π½Ρ ΠΊΡΠ°ΡΠΈΠ²ΠΎ, Π»Π΅Π³ΠΊΠΎ ΠΈ ΠΏΠΎ-Π½Π°ΡΡΠΎΡΡΠ΅ΠΌΡ ΡΠΎΠ²ΡΠ΅ΠΌΠ΅Π½Π½ΠΎ.

ΠΠ΄Π½ΠΎΡΡΠ°ΠΆΠ½ΡΠΉ Π΄ΠΎΠΌ Ρ ΠΏΠ»ΠΎΡΠΊΠΎΠΉ ΠΊΡΡΡΠ΅ΠΉ
ΠΠ΅ ΠΌΠ΅Π½Π΅Π΅ Π°ΠΊΡΡΠ°Π»ΡΠ½Ρ Π½Π° ΡΠ΅Π³ΠΎΠ΄Π½ΡΡΠ½ΠΈΠΉ Π΄Π΅Π½Ρ ΠΈ Π΄ΠΎΠΌΠ° Ρ ΠΏΠ»ΠΎΡΠΊΠΎΠΉ ΠΊΡΡΡΠ΅ΠΉ, ΠΊΠΎΡΠΎΡΡΠ΅ ΠΈΡΠΏΠΎΠ»ΡΠ·ΡΡΡΡΡ Π² ΠΌΠΈΠ½ΠΈΠΌΠ°Π»ΠΈΡΡΠΈΡΠ΅ΡΠΊΠΈΡ Π΄ΠΈΠ·Π°ΠΉΠ½Π°Ρ . ΠΡΠΊΡΡΡΠΎΡΡΡ ΡΠ΅ΡΡΠΈΡΠΎΡΠΈΠΈ Π½Π΅ ΠΏΠΎΠ·Π²ΠΎΠ»ΡΠ΅Ρ ΠΎΡΠ³Π°Π½ΠΈΠ·ΠΎΠ²Π°ΡΡ Π΄ΠΎΠΏΠΎΠ»Π½ΠΈΡΠ΅Π»ΡΠ½ΠΎΠ΅ ΠΏΠΎΠΌΠ΅ΡΠ΅Π½ΠΈΠ΅, Π·Π°ΡΠΎ Π·Π΄Π΅ΡΡ ΠΌΠΎΠΆΠ½ΠΎ ΡΠ°Π·ΠΌΠ΅ΡΡΠΈΡΡ ΠΏΠΎΠ»Π½ΠΎΡΠ΅Π½Π½ΡΡ ΡΠ΅ΡΡΠ°ΡΡ, ΡΠ°Π΄ ΠΈΠ»ΠΈ ΡΠΏΠΎΡΡΠΈΠ²Π½ΡΡ ΠΏΠ»ΠΎΡΠ°Π΄ΠΊΡ. Π’Π°ΠΊΠΎΠΉ Π²Π°ΡΠΈΠ°Π½Ρ Π½Π°ΠΈΠ±ΠΎΠ»Π΅Π΅ ΠΏΡΠΈΠ΅ΠΌΠ»Π΅ΠΌ, ΠΊΠΎΠ³Π΄Π° ΠΏΠ»ΠΎΡΠ°Π΄Ρ Π·Π΅ΠΌΠ΅Π»ΡΠ½ΠΎΠ³ΠΎ ΡΡΠ°ΡΡΠΊΠ° Π½Π°ΡΡΠΎΠ»ΡΠΊΠΎ ΠΌΠ°Π»Π°, ΡΡΠΎ Π½Π° Π½Π΅ΠΉ ΡΡΡΠ΄Π½ΠΎ Π²ΡΠΊΡΠΎΠΈΡΡ Π»ΠΈΡΠ½ΠΈΠ΅ ΠΊΠ²Π°Π΄ΡΠ°ΡΠ½ΡΠ΅ ΠΌΠ΅ΡΡΡ Π΄Π»Ρ Β«Π²ΡΡΠΊΠΈΡ ΡΠ΄ΠΎΠ²ΠΎΠ»ΡΡΡΠ²ΠΈΠΉΒ». ΠΠ»ΠΎΡΠΊΠ°Ρ ΡΠΎΡΠΌΠ° ΠΊΡΡΡΠΈ ΠΏΠΎΠ·Π²ΠΎΠ»ΡΠ΅Ρ ΡΠΎ Π²ΡΠ΅ΠΌΠ΅Π½Π΅ΠΌ Π²ΠΎΠ·Π²Π΅ΡΡΠΈ Π²ΡΠΎΡΠΎΠΉ ΡΡΠ°ΠΆ, ΠΈ ΡΡΡΠΎΠΈΡΠ΅Π»ΡΠ½ΡΠ΅ ΡΠ°Π±ΠΎΡΡ Π½Π°ΠΌΠ½ΠΎΠ³ΠΎ ΡΠΏΡΠΎΡΡΡΡΡΡ. ΠΠ°ΠΆΡΡΠ°ΡΡΡ Π°Π±ΡΠΎΠ»ΡΡΠ½ΠΎ ΡΠΎΠ²Π½ΠΎΠΉ, ΠΊΡΡΡΠ° ΠΈΠΌΠ΅Π΅Ρ Π½Π΅Π·Π½Π°ΡΠΈΡΠ΅Π»ΡΠ½ΡΠΉ Π½Π°ΠΊΠ»ΠΎΠ½, ΠΊΠΎΡΠΎΡΡΠΉ Π½Π΅ΠΎΠ±Ρ ΠΎΠ΄ΠΈΠΌ Π΄Π»Ρ ΡΡΡΡΠ°Π½Π΅Π½ΠΈΡ ΠΎΡΠ°Π΄ΠΊΠΎΠ².

ΠΠ΄Π½ΠΎΡΡΠ°ΠΆΠ½ΡΠΉ Π΄ΠΎΠΌ Ρ Π³Π°ΡΠ°ΠΆΠΎΠΌ
Π§Π°ΡΠ΅ Π²ΡΠ΅Π³ΠΎ Π·Π°Π³ΠΎΡΠΎΠ΄Π½ΡΠ΅ Π΄ΠΎΠΌΠ° ΠΈΠΌΠ΅ΡΡ Π³Π°ΡΠ°ΠΆ Π΄Π»Ρ Π°Π²ΡΠΎΠΌΠΎΠ±ΠΈΠ»Ρ, ΡΡΠΎ Π²ΠΏΠΎΠ»Π½Π΅ ΠΎΠΏΡΠ°Π²Π΄ΡΠ²Π°Π΅ΡΡΡ ΡΠ°ΡΡΠΎΠΉ Π½Π΅ΠΎΠ±Ρ ΠΎΠ΄ΠΈΠΌΠΎΡΡΡΡ ΠΏΠ΅ΡΠ΅Π΅Π·Π΄Π°. ΠΠ°ΠΊΡΡΡΠΎΠ΅ ΠΏΠΎΠΌΠ΅ΡΠ΅Π½ΠΈΠ΅ ΠΎΠ±Π»Π°Π΄Π°Π΅Ρ ΡΡΠ΄ΠΎΠΌ ΠΏΡΠ΅ΠΈΠΌΡΡΠ΅ΡΡΠ², Π΅ΡΠ»ΠΈ ΡΡΠ°Π²Π½ΠΈΠ²Π°ΡΡ Π΅Π³ΠΎ Ρ ΠΎΡΠΊΡΡΡΡΠΌΠΈ Π½Π°Π²Π΅ΡΠ°ΠΌΠΈ: Π·Π΄Π΅ΡΡ ΠΌΠ°ΡΠΈΠ½Π° Π½Π°Ρ ΠΎΠ΄ΠΈΡΡΡ Π² ΠΏΠΎΠ»Π½ΠΎΠΉ Π±Π΅Π·ΠΎΠΏΠ°ΡΠ½ΠΎΡΡΠΈ, ΠΏΡΠΈ ΡΡΠΎΠΌ ΠΌΠΎΠΆΠ½ΠΎ ΠΎΡΠ³Π°Π½ΠΈΠ·ΠΎΠ²Π°ΡΡ ΡΠ΅ΠΌΠΎΠ½ΡΠ½ΡΠ΅ ΡΠ°Π±ΠΎΡΡ, Π½Π΅ΡΠΌΠΎΡΡΡ Π½Π° ΠΏΠΎΠ³ΠΎΠ΄Π½ΡΠ΅ ΡΡΠ»ΠΎΠ²ΠΈΡ. ΠΠ΅ΡΠ΅Π΄ΠΊΠΎ ΠΏΡΠΎΡΡΠΎΡΠ½ΡΠ΅ ΠΏΠΎΠΌΠ΅ΡΠ΅Π½ΠΈΡ Π³Π°ΡΠ°ΠΆΠ΅ΠΉ ΠΈΡΠΏΠΎΠ»ΡΠ·ΡΡΡ ΠΏΠΎΠ΄ ΠΌΠ°ΡΡΠ΅ΡΡΠΊΠΈΠ΅ ΠΈΠ»ΠΈ ΠΊΠ»Π°Π΄ΠΎΠ²ΠΊΠΈ. ΠΡΠ½ΠΎΠ²Π½ΠΎΠ΅ ΠΆΠ΅ ΠΏΡΠ΅ΠΈΠΌΡΡΠ΅ΡΡΠ²ΠΎ Π³Π°ΡΠ°ΠΆΠ°, ΡΠ°ΡΠΏΠΎΠ»ΠΎΠΆΠ΅Π½Π½ΠΎΠ³ΠΎ Π½Π΅ΠΏΠΎΡΡΠ΅Π΄ΡΡΠ²Π΅Π½Π½ΠΎ Π² Π΄ΠΎΠΌΠ΅, Π·Π°ΠΊΠ»ΡΡΠ°Π΅ΡΡΡ Π² ΡΠΎΠΌ, ΡΡΠΎ ΠΏΠΎΠΏΠ°ΡΡΡ Π² Π½Π΅Π³ΠΎ ΠΌΠΎΠΆΠ½ΠΎ, Π½Π΅ Π²ΡΡ ΠΎΠ΄Ρ Π½Π° ΡΠ»ΠΈΡΡ, ΠΈ ΡΠ°ΠΊΠΈΠΌ ΠΆΠ΅ ΠΎΠ±ΡΠ°Π·ΠΎΠΌ Π²Π΅ΡΠ½ΡΡΡΡΡ.

ΠΠ΄Π½ΠΎΡΡΠ°ΠΆΠ½ΡΠΉ Π΄ΠΎΠΌ Ρ ΡΠ΅ΡΡΠ°ΡΠΎΠΉ
Π Π·Π°Π³ΠΎΡΠΎΠ΄Π½ΠΎΠΌ ΡΡΡΠΎΠΈΡΠ΅Π»ΡΡΡΠ²Π΅ Π½Π΅ΡΠ΅Π΄ΠΊΠΎ ΠΌΠΎΠΆΠ½ΠΎ Π²ΡΡΡΠ΅ΡΠΈΡΡ Π΄ΠΎΠΌΠ° Ρ ΡΠ΅ΡΡΠ°ΡΠΎΠΉ, ΠΊΠΎΡΠΎΡΡΠ΅ ΠΏΠΎΠ»ΡΠ·ΡΡΡΡΡ Π±ΠΎΠ»ΡΡΠΈΠΌ ΡΠΏΡΠΎΡΠΎΠΌ. Π’Π°ΠΊΠ°Ρ ΠΏΠ»Π°Π½ΠΈΡΠΎΠ²ΠΊΠ° ΠΏΠΎΠ·Π²ΠΎΠ»ΡΠ΅Ρ ΠΎΡΠ΄ΠΎΡ Π½ΡΡΡ Ρ ΠΌΠ°ΠΊΡΠΈΠΌΠ°Π»ΡΠ½ΡΠΌ ΠΊΠΎΠΌΡΠΎΡΡΠΎΠΌ, ΠΏΡΠΈΠ±Π»ΠΈΠΆΠ΅Π½Π½ΡΠΌ ΠΊ ΠΏΡΠΈΡΠΎΠ΄Π΅. Π§Π°ΡΠ΅ Π²ΡΠ΅Π³ΠΎ ΡΠ΅ΡΡΠ°ΡΡ Π²ΠΎΠ·Π²ΠΎΠ΄ΡΡ ΡΠΎ ΡΡΠΎΡΠΎΠ½Ρ ΠΊΡΡ Π½ΠΈ ΠΈΠ»ΠΈ Π³ΠΎΡΡΠΈΠ½ΠΎΠΉ, Π³Π΄Π΅ ΡΠ΄ΠΎΠ±Π½ΠΎ ΡΠΎΠ±ΠΈΡΠ°ΡΡΡΡ Π² ΠΊΡΡΠ³Ρ ΡΠ΅ΠΌΡΠΈ ΠΈΠ»ΠΈ ΠΎΡΠΌΠ΅ΡΠ°ΡΡ ΡΠΎΡΠΆΠ΅ΡΡΠ²Π°. ΠΡΠΈ ΠΏΠ»Π°Π½ΠΈΡΠΎΠ²Π°Π½ΠΈΠΈ ΡΡΠΎΠΈΡ ΡΡΠ΅ΡΡΡ ΡΠ°Π·ΠΌΠ΅ΡΠ΅Π½ΠΈΠ΅ ΠΎΡΠ½ΠΎΡΠΈΡΠ΅Π»ΡΠ½ΠΎ ΡΡΠΎΡΠΎΠ½ ΡΠ²Π΅ΡΠ°: Π»ΡΡΡΠΈΠΉ Π²Π°ΡΠΈΠ°Π½Ρ β ΡΠΆΠ½Π°Ρ ΡΡΠΎΡΠΎΠ½Π°, ΠΊΠΎΠ³Π΄Π° Π² ΠΏΠΎΠΌΠ΅ΡΠ΅Π½ΠΈΠ΅, ΠΏΡΠΈΠΌΡΠΊΠ°ΡΡΠ΅Π΅ ΠΊ ΡΠ΅ΡΡΠ°ΡΠ΅, Π±ΡΠ΄Π΅Ρ ΠΏΠΎΡΡΡΠΏΠ°ΡΡ Π±ΠΎΠ»ΡΡΠΎΠ΅ ΠΊΠΎΠ»ΠΈΡΠ΅ΡΡΠ²ΠΎ ΡΠ²Π΅ΡΠ°. ΠΡΠ»ΠΈ ΡΠ°ΡΠΏΠΎΠ»ΠΎΠΆΠΈΡΡ Π΅Π΅ Π½Π° ΡΠΆΠ½ΠΎΠΉ ΡΡΠΎΡΠΎΠ½Π΅, ΠΌΠΎΠΆΠ½ΠΎ Π΄ΠΎΠ»Π³ΠΎ Π»ΡΠ±ΠΎΠ²Π°ΡΡΡΡ Π»ΡΡΠ°ΠΌΠΈ Π·Π°Ρ ΠΎΠ΄ΡΡΠ΅Π³ΠΎ ΡΠΎΠ»Π½ΡΠ°. Π’Π΅ΡΡΠ°ΡΠ° ΠΌΠΎΠΆΠ΅Ρ Π±ΡΡΡ ΠΎΡΠΊΡΡΡΠΎΠ³ΠΎ Π»ΠΈΠ±ΠΎ Π·Π°ΠΊΡΡΡΠΎΠ³ΠΎ ΡΠΈΠΏΠ°, Π½ΠΎ Π² Π»ΡΠ±ΠΎΠΌ ΡΠ»ΡΡΠ°Π΅ ΡΡΠ°Π½ΠΎΠ²ΠΈΡΡΡ ΡΡΠ΄Π΅ΡΠ½ΡΠΌ Π΄ΠΎΠΏΠΎΠ»Π½Π΅Π½ΠΈΠ΅ΠΌ, Π³Π΄Π΅ ΠΌΠΎΠΆΠ½ΠΎ ΡΠ°Π·ΠΌΠ΅ΡΡΠΈΡΡ ΠΌΠ΅Π±Π΅Π»Ρ Π΄Π»Ρ ΠΎΡΠ΄ΡΡ Π° ΠΊΠΎΠΌΠΏΠ°Π½ΠΈΠΈ, ΠΎΡΠ³Π°Π½ΠΈΠ·ΠΎΠ²Π°ΡΡ ΡΠ°Π½ΡΠΏΠ»ΠΎΡΠ°Π΄ΠΊΡ ΠΈΠ»ΠΈ ΠΏΠΎΠΏΡΠΎΡΡΡ ΠΏΡΠΎΠ²Π΅ΡΡΠΈ Π²ΡΠ΅ΠΌΡ Ρ ΡΠ°ΡΠ΅ΡΠΊΠΎΠΉ ΡΠ°Ρ, ΡΠΌΠΎΡΡΠΈΠ²ΡΠΈΡΡ Π² ΡΠ΄ΠΎΠ±Π½ΠΎΠΌ ΠΊΡΠ΅ΡΠ»Π΅.

ΠΠΈΠ·Π°ΠΉΠ½ ΠΎΠ΄Π½ΠΎΡΡΠ°ΠΆΠ½ΡΡ Π΄ΠΎΠΌΠΎΠ²: ΠΊΡΠ°ΡΠΈΠ²ΡΠ΅ ΠΈΠ΄Π΅ΠΈ
ΠΡΠΎΠ΄ΡΠΌΡΠ²Π°Ρ, ΠΊΠ°ΠΊΠΎΠΉ ΠΡ Ρ ΠΎΡΠ΅Π»ΠΈ Π±Ρ Π²ΠΈΠ΄Π΅ΡΡ ΡΠ²ΠΎΡ ΠΎΠ΄Π½ΠΎΡΡΠ°ΠΆΠ½ΡΡ ΠΎΠ±ΠΈΡΠ΅Π»Ρ, ΡΡΠΎΠΈΡ ΠΏΠΎΠ·Π°Π±ΠΎΡΠΈΡΡΡΡ Π½Π΅ ΡΠΎΠ»ΡΠΊΠΎ ΠΎ ΠΌΠ°ΡΠ΅ΡΠΈΠ°Π»Π°Ρ ΠΈ Π²Π½ΡΡΡΠ΅Π½Π½Π΅ΠΌ ΡΡΠ½ΠΊΡΠΈΠΎΠ½Π°Π»Π΅, Π½ΠΎ ΠΈ ΠΎ Π²Π½Π΅ΡΠ½Π΅ΠΌ ΠΈΡΠΏΠΎΠ»Π½Π΅Π½ΠΈΠΈ, ΠΊΠΎΡΠΎΡΠΎΠ΅ Π½Π΅ ΠΌΠ΅Π½Π΅Π΅ Π²Π°ΠΆΠ½ΠΎ. Π‘Π΅Π³ΠΎΠ΄Π½Ρ ΠΏΡΠΈΠ½ΡΡΠΎ ΠΎΡΠΎΡΠΌΠ»ΡΡΡ ΠΏΠΎΡΡΡΠΎΠΉΠΊΠΈ, ΠΊΠ°ΠΊ, ΡΠΎΠ±ΡΡΠ²Π΅Π½Π½ΠΎ, ΠΈ ΠΈΠ½ΡΠ΅ΡΡΠ΅ΡΡ, Π² ΠΎΠΏΡΠ΅Π΄Π΅Π»Π΅Π½Π½ΠΎΠΌ ΡΡΠΈΠ»Π΅Π²ΠΎΠΌ Π½Π°ΠΏΡΠ°Π²Π»Π΅Π½ΠΈΠΈ.
ΠΠΎΠΌΠ° Π² ΠΊΠ»Π°ΡΡΠΈΡΠ΅ΡΠΊΠΎΠΌ ΡΡΠΈΠ»Π΅ ΠΏΠΎ ΡΠ΅ΠΉ Π΄Π΅Π½Ρ ΠΎΡΡΠ°ΡΡΡΡ Π² ΡΡΠ΅Π½Π΄Π΅ ΠΈ ΠΏΠΎΠ»ΡΠ·ΡΡΡΡΡ Π½Π΅ΠΌΠ°Π»ΠΎΠΉ ΠΏΠΎΠΏΡΠ»ΡΡΠ½ΠΎΡΡΡΡ. ΠΠ΅ΠΌΠ°Π»ΡΡ ΡΠΎΠ»Ρ Π² ΡΡΠΎΠΌ ΠΈΠ³ΡΠ°Π΅Ρ Π²Π½Π΅ΡΠ½ΡΡ ΡΠΏΠΎΠΊΠΎΠΉΠ½Π°Ρ ΠΎΡΠ΄Π΅Π»ΠΊΠ° Π² ΡΠ²Π΅ΡΠ»ΡΡ ΡΠΎΠ½Π°Ρ Π±Π΅Π· Π»ΠΈΡΠ½ΠΈΡ Β«ΠΊΡΠΈΡΠ°ΡΠΈΡ Β» ΡΠ»Π΅ΠΌΠ΅Π½ΡΠΎΠ², ΠΏΡΠΈ ΡΡΠΎΠΌ ΡΡΠΎΠΈΡ ΠΎΡΠΌΠ΅ΡΠΈΡΡ ΠΏΡΠΈΡΡΡΡΡΠ²ΠΈΠ΅ Π΄Π΅ΡΠ°Π»Π΅ΠΉ ΠΈΠ· Π½Π°ΡΡΡΠ°Π»ΡΠ½ΠΎΠΉ Π΄ΡΠ΅Π²Π΅ΡΠΈΠ½Ρ. Π’Π°ΠΊΠΆΠ΅ ΠΊΡΠ°ΡΠΈΠ²ΠΎ ΡΠΌΠΎΡΡΡΡΡΡ Π΄ΠΎΠΌΠ° ΠΈΠ· Π²ΡΡΠΎΠΊΠΎΠΊΠ°ΡΠ΅ΡΡΠ²Π΅Π½Π½ΠΎΠ³ΠΎ ΠΊΠΈΡΠΏΠΈΡΠ° ΠΈ ΠΎΡΠΈΠ»ΠΈΠ½Π΄ΡΠΎΠ²Π°Π½Π½ΠΎΠ³ΠΎ Π±ΡΠ΅Π²Π½Π°.ΠΠ΄Π½ΠΎΡΡΠ°ΠΆΠ½ΡΠΉ Π΄ΠΎΠΌ Π² ΡΡΠΈΠ»Π΅ ΠΏΡΠΎΠ²Π°Π½Ρ Π΄ΠΎΠ»ΠΆΠ΅Π½ Π±ΡΠΊΠ²Π°Π»ΡΠ½ΠΎ ΠΈΡΡΠΎΡΠ°ΡΡ Π΄ΠΎΡΠΎΠ³ΠΎΠ²ΠΈΠ·Π½Ρ ΠΈ ΡΡΡ, ΡΠΎΠΌΠ°Π½ΡΠΈΠΊΡ ΡΡΠ°Π½ΡΡΠ·ΡΠΊΠΈΡ ΠΏΡΠΎΠ²ΠΈΠ½ΡΠΈΠΉ. Π ΡΠ°ΡΠ°Π΄Π°Ρ ΠΆΠ΅Π»Π°ΡΠ΅Π»ΡΠ½ΠΎ ΠΈΡΠΏΠΎΠ»ΡΠ·ΠΎΠ²Π°ΡΡ Π½Π°ΡΡΡΠ°Π»ΡΠ½ΡΠ΅ ΠΌΠ°ΡΠ΅ΡΠΈΠ°Π»Ρ, ΡΠ°ΠΊΠΈΠ΅ ΠΊΠ°ΠΊ ΡΡΡΠΎΠΈΡΠ΅Π»ΡΠ½ΡΠΉ ΠΈ Π΄ΠΈΠΊΠΈΠΉ ΠΊΠ°ΠΌΠ΅Π½Ρ, Π΄Π΅ΡΠ΅Π²ΡΠ½Π½ΡΠ΅ Π±Π°Π»ΠΊΠΈ ΠΈΠ»ΠΈ ΡΡΡΠΊΠ°ΡΡΡΠ½ΡΠ΅ ΡΠΌΠ΅ΡΠΈ. ΠΠ΄Π΅ΡΡ ΠΊΡΠ°ΡΠΈΠ²ΠΎ ΡΠΌΠΎΡΡΡΡΡΡ ΠΌΠ°Π½ΡΠ°ΡΠ΄Ρ ΠΈ ΡΡΠΊΠ΅ΡΠ½ΡΠ΅ Π·ΠΎΠ½Ρ, ΡΠΎΠ·Π΄Π°ΡΡΠΈΠ΅ Π°ΡΠΌΠΎΡΡΠ΅ΡΡ Π΄ΠΎΡΠΎΠ³ΠΈΡ Π΄Π΅ΡΠ΅Π²Π΅Π½ΡΠΊΠΈΡ ΠΏΠΎΡΡΡΠΎΠ΅ΠΊ.
ΠΠ½ΡΠ΅ΡΠ΅ΡΠ½ΠΎ Π²ΡΠ³Π»ΡΠ΄ΡΡ ΡΠΎΠ²ΡΠ΅ΠΌΠ΅Π½Π½ΡΠ΅ Π΄ΠΎΠΌΠ° Π² ΠΌΠΈΠ½ΠΈΠΌΠ°Π»ΠΈΡΡΠΈΡΠ΅ΡΠΊΠΎΠΌ Π½Π°ΠΏΡΠ°Π²Π»Π΅Π½ΠΈΠΈ, Π³Π΄Π΅ ΠΎΡΠ½ΠΎΠ²Π½ΡΠΌΠΈ ΠΊΡΠΈΡΠ΅ΡΠΈΡΠΌΠΈ Π²ΡΡΡΡΠΏΠ°ΡΡ ΠΏΡΠΎΡΡΠΎΡΠ° ΠΊΠΎΠ½ΡΡΡΡΠΊΡΠΈΠΉ Ρ ΠΏΡΠ°Π²ΠΈΠ»ΡΠ½ΠΎΠΉ Π³Π΅ΠΎΠΌΠ΅ΡΡΠΈΠ΅ΠΉ ΠΏΡΠΎΡΡΡΠ°Π½ΡΡΠ²Π°, Π΅Π΄ΠΈΠ½ΠΎΠ΅ ΡΠ²Π΅ΡΠΎΠ²ΠΎΠ΅ ΡΠ΅ΡΠ΅Π½ΠΈΠ΅, ΠΏΡΠ΅ΠΈΠΌΡΡΠ΅ΡΡΠ²Π΅Π½Π½ΠΎ ΡΠ²Π΅ΡΠ»ΡΠ΅ ΠΎΡΡΠ΅Π½ΠΊΠΈ, Π° ΡΠ°ΠΊΠΆΠ΅ Π»Π°ΠΊΠΎΠ½ΠΈΡΠ½ΠΎΡΡΡ ΠΈΡΠΏΠΎΠ»Π½Π΅Π½ΠΈΡ Ρ ΠΎΡΡΡΡΡΡΠ²ΠΈΠ΅ΠΌ ΠΈΠ·Π»ΠΈΡΠ΅ΡΡΠ² Π΄Π΅ΠΊΠΎΡΠΈΡΠΎΠ²Π°Π½ΠΈΡ. ΠΠ΄Π½ΠΎΡΡΠ°ΠΆΠ½ΡΠ΅ Π΄ΠΎΠΌΠ° Π½Π΅ΡΠ΅Π΄ΠΊΠΎ ΠΈΠΌΠ΅ΡΡ ΠΏΠ»ΠΎΡΠΊΠΈΠ΅ ΠΊΡΡΡΠΈ ΠΈ ΠΎΠ³ΡΠΎΠΌΠ½ΡΠ΅ ΠΏΠ°Π½ΠΎΡΠ°ΠΌΠ½ΡΠ΅ ΠΎΠΊΠ½Π°.
ΠΠΎΠΌΠ° Π² ΡΡΠΈΠ»Π΅ Π»ΠΎΡΡ β ΡΡΠΎ Π½Π΅ΠΊΠΈΠΉ ΡΠΈΠΌΠ±ΠΈΠΎΠ· Π³ΡΡΠ±ΡΡ ΠΏΡΠΎΠΈΠ·Π²ΠΎΠ΄ΡΡΠ²Π΅Π½Π½ΡΡ ΠΌΠ°ΡΠ΅ΡΠΈΠ°Π»ΠΎΠ² (ΠΈΡ ΠΈΠΌΠΈΡΠ°ΡΠΈΠΈ) Ρ ΡΠ»ΡΡΡΠ°ΡΠΎΠ²ΡΠ΅ΠΌΠ΅Π½Π½ΡΠΌΠΈ ΡΠ΅Ρ Π½ΠΎΠ»ΠΎΠ³ΠΈΡΠΌΠΈ, Π° ΡΠ°ΠΊΠΆΠ΅ ΡΡΠ΅ΠΊΠ»ΡΠ½Π½ΡΠΌΠΈ ΠΈ ΠΌΠ΅ΡΠ°Π»Π»ΠΈΡΠ΅ΡΠΊΠΈΠΌΠΈ ΡΠ»Π΅ΠΌΠ΅Π½ΡΠ°ΠΌΠΈ. ΠΠ½ΡΡΡΠ΅Π½Π½Π΅Π΅ Π½Π°ΠΏΠΎΠ»Π½Π΅Π½ΠΈΠ΅ ΠΏΡΠ΅Π΄ΡΡΠ°Π²Π»ΡΠ΅Ρ ΡΠΎΠ±ΠΎΠΉ ΠΎΡΠΊΡΡΡΡΡ ΠΏΠ»Π°Π½ΠΈΡΠΎΠ²ΠΊΡ Ρ Π²ΡΡΠΎΠΊΠΈΠΌΠΈ ΠΏΠΎΡΠΎΠ»ΠΊΠ°ΠΌΠΈ, Π±ΠΎΠ»ΡΡΠΈΠΌΠΈ ΠΎΠΊΠ½Π°ΠΌΠΈ ΠΈ ΠΏΡΠ°ΠΊΡΠΈΡΠ΅ΡΠΊΠΈ ΠΏΠΎΠ»Π½ΡΠΌ ΠΎΡΡΡΡΡΡΠ²ΠΈΠ΅ΠΌ ΠΏΠ΅ΡΠ΅Π³ΠΎΡΠΎΠ΄ΠΎΠΊ. ΠΠ½Π΅ΡΠ½ΡΡ ΠΎΠ±Π»ΠΈΡΠΎΠ²ΠΊΠ° ΠΏΡΠΎΠΈΠ·Π²ΠΎΠ΄ΠΈΡΡΡ ΠΊΠΈΡΠΏΠΈΡΠΎΠΌ, ΠΊΠ°ΠΌΠ½Π΅ΠΌ ΠΈΠ»ΠΈ ΡΡΡΠΊΠ°ΡΡΡΠΊΠΎΠΉ, ΠΈΠΌΠΈΡΠΈΡΡΡΡΠ΅ΠΉ Π±Π΅ΡΠΎΠ½Π½ΡΡ ΠΏΠΎΠ²Π΅ΡΡ Π½ΠΎΡΡΡ. ΠΡΠΈ ΠΆΠ΅ ΠΌΠ°ΡΠ΅ΡΠΈΠ°Π»Ρ Π·Π°ΡΠ°ΡΡΡΡ ΡΠΊΡΠ°ΡΠ°ΡΡ ΠΈ Π²Π½ΡΡΡΠ΅Π½Π½Π΅Π΅ ΡΠ±ΡΠ°Π½ΡΡΠ²ΠΎ.

ΠΠ΄Π½ΠΎΡΡΠ°ΠΆΠ½ΡΠ΅ Π΄ΠΎΠΌΠ° β ΡΠΎΡΠΎ ΠΈ ΠΏΡΠΎΠ΅ΠΊΡΡ
ΠΡΠ»ΠΈ ΠΡ Π²ΡΠ΅ΡΡΠ΅Π· Π·Π°Π΄ΡΠΌΠ°Π»ΠΈΡΡ Π½Π°Π΄ ΡΡΡΠΎΠΈΡΠ΅Π»ΡΡΡΠ²ΠΎΠΌ Π·Π°Π³ΠΎΡΠΎΠ΄Π½ΠΎΠ³ΠΎ Π΄ΠΎΠΌΠ°, ΠΏΡΠ΅Π΄Π»Π°Π³Π°Π΅ΠΌ ΠΏΠΎΡΠ΅ΡΠΈΡΡ Π³Π°Π»Π΅ΡΠ΅Ρ, Π³Π΄Π΅ ΠΌΡ ΠΏΠΎΡΡΠ°ΡΠ°Π»ΠΈΡΡ ΡΠΎΠ±ΡΠ°ΡΡ Π»ΡΡΡΠΈΠ΅ ΠΏΡΠΈΠΌΠ΅ΡΡ ΠΎΠ΄Π½ΠΎΡΡΠ°ΠΆΠ½ΡΡ ΠΏΠΎΡΡΡΠΎΠ΅ΠΊ. ΠΠ°Π΄Π΅Π΅ΠΌΡΡ, ΠΏΠΎΠ΄Π±ΠΎΡΠΊΠ° ΡΠΎΡΠΎΠ³ΡΠ°ΡΠΈΠΉ Π΄Π°ΡΡ Π½Π΅ΠΊΠΎΡΠΎΡΡΠ΅ ΠΏΠΎΠ΄ΡΠΊΠ°Π·ΠΊΠΈ ΠΈ Π½Π°ΡΠΎΠ»ΠΊΠ½Π΅Ρ Π½Π° ΠΈΠ½ΡΠ΅ΡΠ΅ΡΠ½ΡΠ΅ ΠΈΠ΄Π΅ΠΈ. ΠΡΠΈΡΡΠ½ΠΎΠ³ΠΎ ΠΏΡΠΎΡΠΌΠΎΡΡΠ°!
trizio.ru
ΠΡΠ°ΡΠΈΠ²ΡΠ΅ ΠΎΠ΄Π½ΠΎΡΡΠ°ΠΆΠ½ΡΠ΅ Π΄ΠΎΠΌΠ° β 35 ΠΈΠ΄Π΅ΠΉ Π² ΡΠ°Π·Π½ΠΎΠΌ ΡΡΠΈΠ»Π΅
ΠΠΎΡΠ»Π΅Π΄Π½ΠΈΠ΅ Π΄Π²Π° Π΄Π΅ΡΡΡΠΊΠ° Π»Π΅Ρ Π½Π° ΠΏΠΈΠΊΠ΅ ΡΠΎΡΡΠΈΠΉΡΠΊΠΎΠΉ ΡΡΡΠΎΠΈΡΠ΅Π»ΡΠ½ΠΎΠΉ ΠΌΠΎΠ΄Ρ ΡΡΡΠΎΠΉΡΠΈΠ²ΠΎ Π΄Π΅ΡΠΆΠ°Π»ΠΈΡΡ Π·Π°Π³ΠΎΡΠΎΠ΄Π½ΡΠ΅ ΠΊΠΎΡΡΠ΅Π΄ΠΆΠΈ ΠΌΠΈΠ½ΠΈΠΌΡΠΌ Π² Π΄Π²Π° ΡΡΠ°ΠΆΠ°, Ρ ΠΌΠ°Π½ΡΠ°ΡΠ΄Π½ΡΠΌΠΈ ΠΈΠ»ΠΈ ΡΠ΅ΡΠ΄Π°ΡΠ½ΡΠΌΠΈ ΠΊΡΡΡΠ°ΠΌΠΈ. ΠΠ΅ΠΆΠ΄Ρ ΡΠ΅ΠΌ, Π² ΡΡΡΠ°Π½Π°Ρ
, Π³Π΄Π΅ Π½Π΅ Π½Π°Π±Π»ΡΠ΄Π°Π΅ΡΡΡ Π΄Π΅ΡΠΈΡΠΈΡΠ° Π·Π΅ΠΌΠ»ΠΈ, ΡΡΠΈΠ»ΡΠ½ΡΠΉ ΡΡΠ΅Π½Π΄ β ΠΎΠ΄Π½ΠΎΡΡΠ°ΠΆΠ½ΡΠ΅ Π΄ΠΎΠΌΠ°, Π° ΠΈΡ
Π΄ΠΈΠ·Π°ΠΉΠ½ ΡΠ΄ΠΈΠ²Π»ΡΠ΅Ρ ΡΠ°Π·Π½ΠΎΠΎΠ±ΡΠ°Π·ΠΈΠ΅ΠΌ ΠΈ Π½Π΅ΠΎΠ±ΡΡΠ½ΡΠΌΠΈ ΠΈΠ΄Π΅ΡΠΌΠΈ.Β
Π’Π΅Π½Π΄Π΅Π½ΡΠΈΡ ΠΊ ΠΎΠ΄Π½ΠΎΡΡΠ°ΠΆΠ½ΠΎΠΌΡ ΡΡΡΠΎΠΈΡΠ΅Π»ΡΡΡΠ²Ρ ΠΏΡΠΎΡΠ»Π΅ΠΆΠΈΠ²Π°Π΅ΡΡΡ Π² Π‘ΠΊΠ°Π½Π΄ΠΈΠ½Π°Π²ΠΈΠΈ, ΠΠΌΠ΅ΡΠΈΠΊΠ΅, Π―ΠΏΠΎΠ½ΠΈΠΈ, ΠΈ ΠΏΡΠΈΡΠΈΠ½Π° Π½Π΅ ΡΠΎΠ»ΡΠΊΠΎ Π² ΡΠΊΠΎΠ½ΠΎΠΌΠΈΠΈ. ΠΡΠΎ ΡΠ°Π·Π²ΠΈΡΡΠ΅ Π²ΠΎ Π²ΡΠ΅Ρ
ΠΎΡΠ½ΠΎΡΠ΅Π½ΠΈΡΡ
ΡΡΡΠ°Π½Ρ, Π³Π΄Π΅ ΠΆΠΈΠ²ΡΡ Π½Π΅ Π±Π΅Π΄Π½ΡΠ΅ Π»ΡΠ΄ΠΈ. Π‘ΡΡΠ΅ΠΌΠ»Π΅Π½ΠΈΠ΅ ΡΠΎΠ·Π΄Π°ΡΡ Π³Π°ΡΠΌΠΎΠ½ΠΈΡΠ½ΡΡ ΡΡΠ΅Π΄Ρ ΠΎΠ±ΠΈΡΠ°Π½ΠΈΡ, ΠΌΠ°ΠΊΡΠΈΠΌΠ°Π»ΡΠ½ΠΎ ΡΠ»ΠΈΡΡΡ Ρ ΠΎΠΊΡΡΠΆΠ°ΡΡΠ΅ΠΉ ΠΏΡΠΈΡΠΎΠ΄ΠΎΠΉ β ΠΎΡΠ½ΠΎΠ²Π½Π°Ρ Π΄Π²ΠΈΠΆΡΡΠ°Ρ ΡΠΈΠ»Π° ΡΡΠΎΠ³ΠΎ ΡΠ΅ΡΠ΅Π½ΠΈΡ.

1. Π‘ΠΎΠ²ΡΠ΅ΠΌΠ΅Π½Π½ΡΠΉ ΡΠΏΠΎΠ½ΡΠΊΠΈΠΉ Π΄ΠΈΠ·Π°ΠΉΠ½ ΠΎΠ΄Π½ΠΎΡΡΠ°ΠΆΠ½ΠΎΠ³ΠΎ Π΄ΠΎΠΌΠ°
ΠΠΈΠ·Π°ΠΉΠ½ ΠΎΠ΄Π½ΠΎΡΡΠ°ΠΆΠ½ΠΎΠ³ΠΎ Π΄ΠΎΠΌΠ°, ΠΊΠΎΡΠΎΡΡΠΉ ΠΏΡΠ°ΠΊΡΠΈΡΠ΅ΡΠΊΠΈ Π½Π°ΡΠΊΠ²ΠΎΠ·Ρ ΠΏΡΠΎΡΠΌΠ°ΡΡΠΈΠ²Π°Π΅ΡΡΡ ΡΠ½Π°ΡΡΠΆΠΈ ΠΎΡ ΠΎΠ·Π΅ΡΠ°, ΠΈ Π·Π°ΠΊΡΡΡ Ρ ΠΏΡΠΎΡΠΈΠ²ΠΎΠΏΠΎΠ»ΠΎΠΆΠ½ΠΎΠΉ ΡΡΠΎΡΠΎΠ½Ρ.
ΠΡΠΎ ΠΏΡΠΎΠ΅ΠΊΡ ΡΠΏΠΎΠ½ΡΠΊΠΎΠ³ΠΎ Π΄ΠΈΠ·Π°ΠΉΠ½Π΅ΡΠ°, ΠΈ Π² Π½Π΅ΠΌ ΡΠ²Π½ΠΎ ΠΏΡΠΎΡΠΌΠ°ΡΡΠΈΠ²Π°Π΅ΡΡΡ Π½Π°ΡΠΈΠΎΠ½Π°Π»ΡΠ½Π°Ρ ΠΈΠ΄Π΅Ρ. Π ΠΠ²ΡΠΎΠΏΠ΅ ΠΏΡΠΈΠΆΠΈΠ»ΠΎΡΡ ΠΌΠ½ΠΎΠ³ΠΎ Π°ΡΡ ΠΈΡΠ΅ΠΊΡΡΡΠ½ΡΡ Π΄Π΅ΡΠ°Π»Π΅ΠΉ, Π·Π°ΠΈΠΌΡΡΠ²ΠΎΠ²Π°Π½Π½ΡΡ Π² Β«ΡΡΡΠ°Π½Π΅ Π²ΠΎΡΡ ΠΎΠ΄ΡΡΠ΅Π³ΠΎ ΡΠΎΠ»Π½ΡΠ°Β»: ΡΠ°Π·Π΄Π²ΠΈΠΆΠ½ΡΠ΅ ΠΎΠΊΠ½Π° ΠΈ ΠΏΠ΅ΡΠ΅Π³ΠΎΡΠΎΠ΄ΠΊΠΈ, Π½Π°ΡΡΠ΅Π½Π½ΡΠ΅ Π½ΠΈΡΠΈ, Π² ΠΈΠ½ΡΠ΅ΡΡΠ΅ΡΠ΅ β ΠΌΠ½ΠΎΠ³ΠΎΡΡΠ½ΠΊΡΠΈΠΎΠ½Π°Π»ΡΠ½Π°Ρ ΡΠΊΠ»Π°Π΄ΡΠ²Π°ΡΡΠ°ΡΡΡ ΠΌΠ΅Π±Π΅Π»Ρ.

2. ΠΠΎΠΌ Π² ΡΡΠΈΠ»Π΅ Π Π°ΠΉΡΠ°
ΠΠΎΠΌ Π² ΡΡΠΈΠ»Π΅ Π Π°ΠΉΡΠ° (Π°ΠΌΠ΅ΡΠΈΠΊΠ°Π½ΡΠΊΠΈΠΉ Π°ΡΡ ΠΈΡΠ΅ΠΊΡΠΎΡ) β ΡΠΈΠΏΠΈΡΠ½ΡΠΉ ΠΏΡΠΈΠΌΠ΅Ρ ΠΏΠΎΡΡΡΠΎΠΉΠΊΠΈ, ΠΊΠΎΡΠΎΡΠ°Ρ Π²ΡΠ³Π»ΡΠ΄ΠΈΡ ΠΊΠ°ΠΊ ΡΠ°ΡΡΡ ΠΎΠΊΡΡΠΆΠ°ΡΡΠ΅Π³ΠΎ Π»Π°Π½Π΄ΡΠ°ΡΡΠ°. Π£ Π½Π΅Π΅ Ρ Π°ΡΠ°ΠΊΡΠ΅ΡΠ½Π°Ρ ΠΏΠ»ΠΎΡΠΊΠ°Ρ ΠΊΡΡΡΠ°, Π½Π΅Π½Π°Π²ΡΠ·ΡΠΈΠ²ΡΠ΅ ΠΏΡΠΈΡΠΎΠ΄Π½ΡΠ΅ ΠΎΡΡΠ΅Π½ΠΊΠΈ, ΠΎΡΠ΄Π΅Π»ΠΊΠ° ΠΊΠ°ΠΌΠ½Π΅ΠΌ. Π’Π°ΠΊΠΈΠ΅ ΡΡΡΠΎΠ΅Π½ΠΈΡ Π±ΡΠ²Π°ΡΡ ΡΠ°ΠΌΡΠΌΠΈ ΡΠ°Π·Π½ΡΠΌΠΈ ΠΏΠΎ Π²Π½Π΅ΡΠ½Π΅ΠΌΡ Π²ΠΈΠ΄Ρ, Π³Π»Π°Π²Π½ΡΠΉ ΠΏΡΠΈΠ½ΡΠΈΠΏ β ΠΊΠ°ΠΊ ΠΌΠΎΠΆΠ½ΠΎ Π±ΠΎΠ»Π΅Π΅ Π³Π°ΡΠΌΠΎΠ½ΠΈΡΠ½ΠΎΠ΅ ΡΠ»ΠΈΡΠ½ΠΈΠ΅ Ρ ΠΎΠΊΡΡΠΆΠ°ΡΡΠ΅ΠΉ ΠΏΡΠΈΡΠΎΠ΄ΠΎΠΉ.Β
Π§ΠΠ’ΠΠΠ’Π Π’ΠΠΠΠ:Β ΠΠΎΠΌ Π² ΡΡΠΈΠ»Π΅ ΠΌΠΈΠ½ΠΈΠΌΠ°Π»ΠΈΠ·ΠΌ β 35 ΡΠΎΡΠΎ ΡΠ°ΠΌΡΡ ΠΊΡΠ°ΡΠΈΠ²ΡΡ ΠΈ Π½Π΅ΠΎΠ±ΡΡΠ½ΡΡ ΠΊΠΎΡΡΠ΅Π΄ΠΆΠ΅ΠΉ
ΠΠ΄Π½ΠΎΡΡΠ°ΠΆΠ½ΡΠ΅ ΠΊΠΎΡΡΠ΅Π΄ΠΆΠΈ β ΠΏΡΠ°ΠΊΡΠΈΡΠ½ΡΠΉ ΠΈ ΠΌΠΎΠ΄Π½ΡΠΉ ΡΡΠ΅Π½Π΄Β

3. ΠΡΠ°ΠΊΡΠΈΡΠ½ΡΠΉ ΡΠΎΠ²ΡΠ΅ΠΌΠ΅Π½Π½ΡΠΉ Π΄ΠΎΠΌ Π² ΡΠΊΠ°Π½Π΄ΠΈΠ½Π°Π²ΡΠΊΠΎΠΌ ΡΡΠΈΠ»Π΅
Π£Π΄Π°ΡΠ½ΠΎΠ΅ Π°ΡΡ ΠΈΡΠ΅ΠΊΡΡΡΠ½ΠΎΠ΅ ΡΠ΅ΡΠ΅Π½ΠΈΠ΅ Π½Π΅ Π·Π°Π²ΠΈΡΠΈΡ ΠΎΡ ΠΊΠΎΠ»ΠΈΡΠ΅ΡΡΠ²Π° ΡΡΠ°ΠΆΠ΅ΠΉ. ΠΠ²ΡΡΠΈΡ ΠΏΠΎΡΡΠΈ ΠΏΠΎ Π§Π΅Ρ ΠΎΠ²Ρ β Π² Π΄ΠΎΠΌΠ΅ Π²ΡΠ΅ Π΄ΠΎΠ»ΠΆΠ½ΠΎ Π±ΡΡΡ ΠΊΡΠ°ΡΠΈΠ²ΠΎ Π²Π½ΡΡΡΠΈ ΠΈ ΡΠ½Π°ΡΡΠΆΠΈ: ΡΠ°ΡΠ°Π΄, ΠΊΡΡΡΠ°, ΠΈΠ½ΡΠ΅ΡΡΠ΅Ρ. ΠΠ½ΡΠ΅ΡΠ΅ΡΠ½ΠΎ, ΡΡΠΎ ΠΎΠ΄Π½ΠΎΡΡΠΎΠ²Π½Π΅Π²Π°Ρ ΠΏΠΎΡΡΡΠΎΠΉΠΊΠ° ΠΎΡΠ²Π΅ΡΠ°Π΅Ρ ΠΈ Π΄ΡΡΠ³ΠΈΠΌ ΡΠΎΠ²ΡΠ΅ΠΌΠ΅Π½Π½ΡΠΌ Π·Π°ΠΏΡΠΎΡΠ°ΠΌ:
β’ ΠΏΠ°Π½ΠΎΡΠ°ΠΌΠ½ΠΎΠ΅ ΠΎΡΡΠ΅ΠΊΠ»Π΅Π½ΠΈΠ΅, Π²ΠΏΡΡΠΊΠ°ΡΡΠ΅Π΅ Π² ΠΊΠ°ΠΆΠ΄ΡΠΉ ΡΠ³ΠΎΠ»ΠΎΠΊ ΡΠΎΠ»Π½ΡΠ΅ ΠΈ ΠΆΠΈΠ²ΡΡ ΠΏΡΠΈΡΠΎΠ΄Ρ, ΠΏΡΠ΅ΠΊΡΠ°ΡΠ½ΡΡ ΠΈ Π·ΠΈΠΌΠΎΠΉ, ΠΈ Π»Π΅ΡΠΎΠΌ;
β’ ΡΡΡΠΎΠΈΡΠ΅Π»ΡΡΡΠ²ΠΎ ΠΎΡΠΊΡΡΡΡΡ ΠΈ Π·Π°ΡΡΠ΅ΠΊΠ»Π΅Π½Π½ΡΡ ΡΠ΅ΡΡΠ°Ρ, Π²Π΅ΡΠ°Π½Π΄, ΡΠΏΠ°-Π±Π°ΡΡΠ΅ΠΉΠ½ΠΎΠ² β ΠΈΠ· Π½ΠΈΡ ΡΠΎΠ»ΡΠΊΠΎ ΠΏΠΎΡΠ»Π΅Π΄Π½ΠΈΠ΅ ΠΌΠΎΠΆΠ½ΠΎ ΡΡΠΈΡΠ°ΡΡ Π½ΠΎΠ²ΠΈΠ½ΠΊΠΎΠΉ, Π²ΡΠ΅ ΠΎΡΡΠ°Π»ΡΠ½ΠΎΠ΅ ΠΏΡΠΈΠ²ΡΡΠ½ΡΠΉ Π°ΡΡΠΈΠ±ΡΡ Π»ΡΠ±ΠΎΠΉ ΠΏΠΎΠ΄ΠΌΠΎΡΠΊΠΎΠ²Π½ΠΎΠΉ Π΄Π°ΡΠΈ;
β’ ΡΠ½Π΅ΡΠ³ΠΎΡΡΡΠ΅ΠΊΡΠΈΠ²Π½ΠΎΡΡΡ β ΠΊΠ°ΠΆΠ΄ΡΠΉ ΠΌΠ΅ΡΡ ΠΏΠ»ΠΎΡΠ°Π΄ΠΈ ΡΡΠ°ΡΠ°ΡΡΡΡ ΠΈΡΠΏΠΎΠ»ΡΠ·ΠΎΠ²Π°ΡΡ ΡΠ°ΡΠΈΠΎΠ½Π°Π»ΡΠ½ΠΎ, Π½Π΅ ΡΡΡΠΎΡΡ Π»ΠΈΡΠ½ΠΈΡ ΠΏΠΎΠΌΠ΅ΡΠ΅Π½ΠΈΠΉ.

4. Π‘ΠΎΠ²ΡΠ΅ΠΌΠ΅Π½Π½ΡΠΉ ΠΊΠΎΡΡΠ΅Π΄ΠΆ Ρ ΠΏΠ°Π½ΠΎΡΠ°ΠΌΠ½ΡΠΌ ΠΎΡΡΠ΅ΠΊΠ»Π΅Π½ΠΈΠ΅ΠΌ
Π ΠΎΠ΄Π½ΠΎΡΡΠ°ΠΆΠ½ΠΎΠΌ Π΄ΠΎΠΌΠ΅ ΡΠ΄ΠΎΠ±Π½ΠΎ ΠΆΠΈΡΡ, Π° ΡΡΠΎΠ±Ρ ΠΎΠ½ Π²ΡΠ³Π»ΡΠ΄Π΅Π» Ρ ΠΎΡΠΎΡΠΎ, Π²Π°ΠΆΠ½ΠΎ ΡΠΎΠ±Π»ΡΡΡΠΈ Π°ΡΡ ΠΈΡΠ΅ΠΊΡΡΡΠ½ΡΠ΅ ΠΏΡΠΎΠΏΠΎΡΡΠΈΠΈ. Π’Π°ΠΊ, Π½Π°ΠΏΡΠΈΠΌΠ΅Ρ, Π±ΠΎΠ»ΡΡΠΎΠ΅ Π·Π½Π°ΡΠ΅Π½ΠΈΠ΅ ΠΈΠΌΠ΅Π΅Ρ Π²ΡΡΠΎΡΠ° ΠΊΡΡΡΠΈ. ΠΠ½Π° Π΄ΠΎΠ»ΠΆΠ½Π° Π±ΡΡΡ Π΄ΠΎΡΡΠ°ΡΠΎΡΠ½ΠΎΠΉ, ΡΡΠΎΠ±Ρ Π·Π΄Π°Π½ΠΈΠ΅ Π½Π΅ ΠΊΠ°Π·Π°Π»ΠΎΡΡ ΠΏΡΠΈΠ·Π΅ΠΌΠΈΡΡΡΠΌ, ΠΈ Π² Π½Π΅ΠΉ ΠΏΡΠΈ ΠΆΠ΅Π»Π°Π½ΠΈΠΈ ΠΎΠ±ΡΡΡΡΠ°ΠΈΠ²Π°Π΅ΡΡΡ ΠΌΠ°Π½ΡΠ°ΡΠ΄Π°. ΠΠΎΠ»ΡΡΠ°Π΅ΡΡΡ ΡΡΠ΅Π΄Π½Π΅Π΅ ΡΠ΅ΡΠ΅Π½ΠΈΠ΅ β Π΄ΠΎΠΌ Π² ΠΏΠΎΠ»ΡΠΎΡΠ° ΡΡΠ°ΠΆΠ°.

5. ΠΠ΄Π½ΠΎΡΡΠ°ΠΆΠ½ΡΠΉ Π΄ΠΎΠΌ Ρ Π±ΠΎΠ»ΡΡΠΎΠΉ ΠΌΠ°Π½ΡΠ°ΡΠ΄ΠΎΠΉ
Π§ΡΠΎ ΠΊΠ°ΡΠ°Π΅ΡΡΡ Π°ΡΡ ΠΈΡΠ΅ΠΊΡΡΡΠ½ΠΎΠ³ΠΎ ΡΡΠΈΠ»Ρ, ΡΠΎ Π·Π΄Π΅ΡΡ Π²ΠΎΠΎΠ±ΡΠ΅ Π½Π΅ ΡΡΡΠ΅ΡΡΠ²ΡΠ΅Ρ ΠΎΠ³ΡΠ°Π½ΠΈΡΠ΅Π½ΠΈΠΉ, ΠΎΠ΄Π½ΠΎΡΡΠ°ΠΆΠ½ΡΠ΅ Π΄ΠΎΠΌΠ° ΡΡΡΠΎΡΡ Π²Π΅ΠΊΠ°ΠΌΠΈ. ΠΡ Π΄ΠΈΠ·Π°ΠΉΠ½ ΠΌΠΎΠΆΠ΅Ρ ΠΏΡΠ΅Π΄ΡΡΠΌΠ°ΡΡΠΈΠ²Π°ΡΡ ΠΊΠ°ΠΊ ΠΎΡΠΎΡΠΌΠ»Π΅Π½ΠΈΠ΅ ΠΏΠΎΠ΄ ΠΊΠΎΠ½ΠΊΡΠ΅ΡΠ½ΡΡ ΠΈΡΡΠΎΡΠΈΡΠ΅ΡΠΊΡΡ ΡΠΏΠΎΡ Ρ, ΡΠ°ΠΊ ΠΈ Π»ΡΠ±ΠΎΠ΅ ΠΌΠΎΠ΄Π½ΠΎΠ΅ Π½Π°ΠΏΡΠ°Π²Π»Π΅Π½ΠΈΠ΅. ΠΠΈΠΆΠ΅ ΠΌΡ ΠΏΠΎΠΊΠ°ΠΆΠ΅ΠΌ ΡΠ°ΠΌΡΠ΅ ΠΈΠ½ΡΠ΅ΡΠ΅ΡΠ½ΡΠ΅ ΠΏΡΠΈΠΌΠ΅ΡΡ, ΠΈ Π·Π°ΠΌΠ΅ΡΠΈΠΌ, ΡΡΠΎ Π²ΡΠ΅Π³Π΄Π° Π½ΡΠΆΠ½ΠΎ ΠΏΠΎΠΌΠ½ΠΈΡΡ ΠΎΠ± ΠΎΠ΄Π½ΠΎΠΌ ΠΏΡΠΈΠ½ΡΠΈΠΏΠ΅. ΠΠ°ΡΠΌΠΎΠ½ΠΈΡ Π΄ΠΎΡΡΠΈΠΆΠΈΠΌΠ° ΡΠΎΠ»ΡΠΊΠΎ ΠΏΡΠΈ ΡΡΠ»ΠΎΠ²ΠΈΠΈ, ΡΡΠΎ ΡΠΎΠ²ΠΏΠ°Π΄Π°ΡΡ Π²Π½Π΅ΡΠ½ΠΈΠΉ ΠΎΠ±Π»ΠΈΠΊ ΠΏΠΎΡΡΡΠΎΠΉΠΊΠΈ, ΠΈΠ½ΡΠ΅ΡΡΠ΅Ρ ΠΈ ΠΎΠΊΡΡΠΆΠ°ΡΡΠΈΠΉ Π»Π°Π½Π΄ΡΠ°ΡΡΠ½ΡΠΉ Π΄ΠΈΠ·Π°ΠΉΠ½.Β
Π‘ΠΊΠ°Π½Π΄ΠΈΠ½Π°Π²ΡΠΊΠΈΠΉ ΡΡΠΈΠ»Ρ: Π² Π΅Π΄ΠΈΠ½Π΅Π½ΠΈΠΈ Ρ ΠΏΡΠΈΡΠΎΠ΄ΠΎΠΉ

6. Π‘ΠΎΠ²ΡΠ΅ΠΌΠ΅Π½Π½ΡΠΉ ΡΠΊΠ°Π½Π΄ΠΈΠ½Π°Π²ΡΠΊΠΈΠΉ ΠΊΠΎΡΡΠ΅Π΄ΠΆ
ΠΠΈΡΠ΅Π»ΠΈ ΡΠ΅Π²Π΅ΡΠ½ΠΎΠ³ΠΎ ΠΏΠΎΠ»ΡΠΎΡΡΡΠΎΠ²Π° Π²ΡΠ΅Π³Π΄Π° ΠΏΡΠ΅Π΄ΠΏΠΎΡΠΈΡΠ°Π»ΠΈ ΠΌΠ°Π»ΠΎΡΡΠ°ΠΆΠ½ΡΡ Π·Π°ΡΡΡΠΎΠΉΠΊΡ, ΠΈ Π½Π°ΡΡΡΠ°Π»ΡΠ½ΡΡ Π΄ΡΠ΅Π²Π΅ΡΠΈΠ½Ρ. Π₯ΠΎΡΡ Π² ΠΏΠΎΡΠ»Π΅Π΄Π½Π΅Π΅ Π²ΡΠ΅ΠΌΡ ΡΠ°ΠΌ ΠΏΠΎΡΠ²Π»ΡΡΡΡΡ ΠΈΠ½ΡΠ΅ΡΠ΅ΡΠ½ΡΠ΅ Π·Π΄Π°Π½ΠΈΡ ΡΠΎΠ²ΡΠ΅ΠΌΠ΅Π½Π½ΠΎΠ³ΠΎ ΡΠΈΠΏΠ° ΠΈΠ· Π±Π΅ΡΠΎΠ½Π°. Π‘Π½Π°ΡΡΠΆΠΈ ΠΎΠ½ΠΈ Π²ΡΠ΅Π³Π΄Π° Π²ΡΠ³Π»ΡΠ΄ΡΡ Π΄ΠΎΠ²ΠΎΠ»ΡΠ½ΠΎ ΠΏΡΠΎΡΡΠΎ, ΠΏΡΠ°ΠΊΡΠΈΡΠ΅ΡΠΊΠΈ Π½Π΅ ΠΈΡΠΏΠΎΠ»ΡΠ·ΡΠ΅ΡΡΡ ΠΌΠ΅Π»ΠΊΠΈΠΉ Π΄Π΅ΠΊΠΎΡ. ΠΡΡΠ°Π·ΠΈΡΠ΅Π»ΡΠ½ΠΎΡΡΡ Π΄ΠΎΡΡΠΈΠ³Π°Π΅ΡΡΡ ΡΡΠ½ΡΠΌΠΈ ΡΠΈΡΡΡΠΌΠΈ Π»ΠΈΠ½ΠΈΡΠΌΠΈ ΠΈ ΡΠ²Π΅ΡΠΎΠΌ.

7. ΠΠΎΠ»ΡΡΠΎΡΠ°ΡΡΠ°ΠΆΠ½ΡΠΉ ΠΊΠΎΡΡΠ΅Π΄ΠΆ Ρ ΠΌΠ°Π½ΡΠ°ΡΠ΄ΠΎΠΉ, Π±ΠΎΠ»ΡΡΠΎΠΉ ΠΎΡΠΊΡΡΡΠΎΠΉ Π²Π΅ΡΠ°Π½Π΄ΠΎΠΉ ΠΈ ΠΏΡΠΈΡΡΡΠΎΠ΅Π½Π½ΠΎΠΉ ΡΠ°ΡΠ½ΠΎΠΉ

8. ΠΠ½ΡΡΡΠΈ ΠΈΠ½ΡΠ΅ΡΡΠ΅Ρ ΠΏΠΎΡΡΡΠΎΠ΅Π½ Π½Π° ΠΊΠ»Π°ΡΡΠΈΡΠ΅ΡΠΊΠΈΡ Π±Π΅Π»ΡΡ ΠΈ ΡΠ΅ΡΠ½ΡΡ ΡΠ²Π΅ΡΠ°Ρ

9. ΠΠ½ΡΠ΅ΡΠ΅ΡΠ½Π°Ρ ΡΠ»ΡΡΡΠ°ΡΠΎΠ²ΡΠ΅ΠΌΠ΅Π½Π½Π°Ρ ΡΠ΅Π½Π΄Π΅Π½ΡΠΈΡ β ΡΠ°ΡΠ°Π΄ ΡΠ΅ΡΠ½ΠΎΠ³ΠΎ ΡΠ²Π΅ΡΠ°. ΠΠ½ΠΎΠ³ΠΈΠ΅ Π΄ΠΈΠ·Π°ΠΉΠ½Π΅ΡΡ ΡΡΠΈΡΠ°ΡΡ, ΡΡΠΎ ΠΎΠ½ ΠΊΠΎΠ½ΡΠ΅Π½ΡΡΠΈΡΡΠ΅Ρ Π°ΡΡ ΠΈΡΠ΅ΠΊΡΡΡΠ½ΡΠΉ ΠΎΠ±Π»ΠΈΠΊ, ΠΏΡΠΈΠ΄Π°Π΅Ρ Π΅ΠΌΡ ΡΠ΅ΡΠΊΠΎΡΡΡ ΠΈ Π³ΡΠ°ΡΠΈΡΠ½ΠΎΡΡΡ.

10. ΠΠ½ΡΡΡΠΈ ΠΏΠΎΠΌΠ΅ΡΠ΅Π½ΠΈΠΉ ΠΏΡΠ΅ΠΎΠ±Π»Π°Π΄Π°Π΅Ρ Π»ΡΠ±ΠΈΠΌΡΠΉ Π±Π΅Π»ΡΠΉ ΡΠ²Π΅Ρ, ΠΊΠ°ΠΊ ΠΎΠ±ΡΡΠ½ΠΎ Ρ Π½Π΅Π±ΠΎΠ»ΡΡΠΈΠΌΠΈ Π°ΠΊΡΠ΅Π½ΡΠ°ΠΌΠΈ ΡΠ΅ΡΠ½ΡΡ ΠΈ Π΄ΡΠ΅Π²Π΅ΡΠ½ΡΡ ΠΎΡΡΠ΅Π½ΠΊΠΎΠ²

11. Π’ΠΈΠΏΠΈΡΠ½ΡΠΉ ΠΈΠ½ΡΠ΅ΡΡΠ΅Ρ ΡΠ²Π΅Π΄ΡΠΊΠΎΠΉ ΠΊΠ²Π°ΡΡΠΈΡΡ: Π΅ΡΡΠ΅ΡΡΠ²Π΅Π½Π½ΡΠΉ ΡΠΎΠ½ Π΄ΡΠ΅Π²Π΅ΡΠΈΠ½Ρ, Π΄ΠΎΡΠ°ΡΡΠΉ ΠΏΠΎΠ» ΠΈ ΡΠ²Π΅ΡΠ½ΡΠ΅ ΠΊΠΎΠ²ΡΠΈΠΊΠΈ

12. ΠΠ° ΡΠΎΡΠΎ β Π½ΠΎΡΠ²Π΅ΠΆΡΠΊΠΈΠΉ Π΄ΠΎΠΌ, ΠΈ Π² ΠΎΡΠ»ΠΈΡΠΈΠ΅ ΠΎΡ ΡΠ²Π΅Π΄ΡΠΊΠΈΡ ΠΈ ΡΠΈΠ½ΡΠΊΠΈΡ , ΡΠ½Π°ΡΡΠΆΠΈ ΠΎΠ½ Π²ΡΠ³Π»ΡΠ΄ΠΈΡ ΠΌΠ΅Π½Π΅Π΅ ΡΡΡΠΎΠ³ΠΎ, Π²Ρ ΠΎΠ΄Π½Π°Ρ Π·ΠΎΠ½Π° ΡΠΊΡΠ°ΡΠ΅Π½Π° Π΄Π΅ΡΠ΅Π²ΡΠ½Π½ΠΎΠΉ ΡΠ΅Π·ΡΠ±ΠΎΠΉ.

13. ΠΠ΅Π·Π°ΠΌΡΡΠ»ΠΎΠ²Π°ΡΡΠΉ Π½ΠΎΡΠ²Π΅ΠΆΡΠΊΠΈΠΉ ΠΈΠ½ΡΠ΅ΡΡΠ΅Ρ. ΠΠ½ΡΡΡΠΈ ΠΏΡΠΎΡΡΠ°Ρ ΠΌΠ΅Π±Π΅Π»Ρ ΠΈΠ· Π΄Π΅ΡΠ΅Π²Π°, Π½ΠΎ ΠΊΠ°ΠΆΠ΄Π°Ρ Π΅Π΅ Π΄Π΅ΡΠ°Π»Ρ ΠΎΡΠ΄Π΅Π»Π°Π½Π° Ρ Π±Π΅Π·ΡΠΏΡΠ΅ΡΠ½ΠΎΠΉ ΡΡΠ°ΡΠ΅Π»ΡΠ½ΠΎΡΡΡΡ

14. ΠΠ΅Π±ΠΎΠ»ΡΡΠ°Ρ Π΄Π΅ΡΡΠΊΠ°Ρ ΡΠΏΠ°Π»ΡΠ½Ρ Π²ΡΠ³Π»ΡΠ΄ΠΈΡ Π½Π΅ΠΏΡΠΈΡΡΠ·Π°ΡΠ΅Π»ΡΠ½ΠΎ ΠΈ ΡΡΡΠ½ΠΎ
Π‘ΡΠΈΠ»ΡΠ½ΡΠΉ Β«Π²ΠΈΠ³Π²Π°ΠΌΒ», ΠΈΠ»ΠΈ Π² Π΄ΡΡ
Π΅ Π°ΠΌΠ΅ΡΠΈΠΊΠ°Π½ΡΠΊΠΈΡ
ΠΏΡΠ΅ΡΠΈΠΉ
ΠΡΠΎ Π½Π°ΠΏΡΠ°Π²Π»Π΅Π½ΠΈΠ΅ Π΄ΠΈΠ·Π°ΠΉΠ½Π° ΠΎΠ±ΡΠ·Π°Π½ΠΎ ΡΠ²ΠΎΠΈΠΌ ΡΠΎΠΆΠ΄Π΅Π½ΠΈΠ΅ΠΌ Π°ΠΌΠ΅ΡΠΈΠΊΠ°Π½ΡΠΊΠΎΠΌΡ Π°ΡΡ ΠΈΡΠ΅ΠΊΡΠΎΡΡ ΠΊΠΎΠ½ΡΠ° XIX Π²Π΅ΠΊΠ° Π€ΡΡΠ½ΠΊΡ ΠΠ»ΠΎΠΉΠ΄Ρ Π Π°ΠΉΡΡ. Π₯Π°ΡΠ°ΠΊΡΠ΅ΡΠ½ΡΠ΅ ΠΎΡΠΎΠ±Π΅Π½Π½ΠΎΡΡΠΈ Π°ΡΡ ΠΈΡΠ΅ΠΊΡΡΡΡ: Π²ΡΡΡΠ½ΡΡΡΠ΅ Π² Π³ΠΎΡΠΈΠ·ΠΎΠ½ΡΠ°Π»ΡΠ½ΠΎΠΌ Π½Π°ΠΏΡΠ°Π²Π»Π΅Π½ΠΈΠΈ ΡΠΎΡΠΌΡ, Π½Π΅Π²ΡΡΠΎΠΊΠΈΠ΅ ΠΊΡΡΡΠΈ, ΠΎΠΏΠΎΡΡΡΠ²Π°ΡΡΠΈΠ΅ ΠΎΡΠΊΡΡΡΡΠ΅ Π³Π°Π»Π΅ΡΠ΅ΠΈ, ΡΠ»ΠΈΠ²Π°ΡΡΠΈΠ΅ΡΡ Ρ Π±ΠΎΠ»ΡΡΠΈΠΌΠΈ ΠΎΠΊΠ½Π°ΠΌΠΈ. Π¦Π²Π΅Ρ ΡΠ°ΡΠ°Π΄ΠΎΠ² ΡΠΎΠΎΡΠ²Π΅ΡΡΡΠ²ΡΠ΅Ρ ΠΎΠΊΡΡΠΆΠ°ΡΡΠ΅ΠΉ ΠΏΡΠΈΡΠΎΠ΄Π΅: ΠΊΠ°ΠΌΠ½Ρ, Π»Π΅ΡΡ, ΡΡΠ΅ΠΏΠ½ΡΠΌ ΡΡΠ°Π²Π°ΠΌ.Β

15. ΠΠ± ΠΈΠ½Π΄Π΅ΠΉΡΠΊΠΎΠΌ Β«Π²ΠΈΠ³Π²Π°ΠΌΠ΅Β» Π·Π΄Π΅ΡΡ Π½Π°ΠΏΠΎΠΌΠΈΠ½Π°Π΅Ρ ΡΠ°Π·Π²Π΅ ΡΡΠΎ ΠΊΠΎΠΌΠΏΠ°ΠΊΡΠ½ΠΎΡΡΡ ΠΈ ΠΊΡΡΡΠ°. ΠΡΡΠ°ΡΠΈ ΠΎΠ½Π° ΡΠ΅ΠΌ-ΡΠΎ ΠΏΠΎΡ ΠΎΠΆΠ° ΠΏΠΎ ΡΠΎΡΠΌΠ΅ Π½Π° ΠΊΠΈΡΠ°ΠΉΡΠΊΠΈΠ΅ ΡΠ°ΡΡΠΎΠ²ΡΠ΅ ΠΌΠ½ΠΎΠ³ΠΎΡΡΡΠΏΠ΅Π½ΡΠ°ΡΡΠ΅ ΠΊΡΠΎΠ²Π»ΠΈ, ΡΠΎΠ»ΡΠΊΠΎ Ρ ΠΏΡΡΠΌΡΠΌΠΈ ΠΊΡΠ°ΡΠΌΠΈΒ

16. Π€Π°Π½ΡΠ°ΡΡΠΈΡΠ΅ΡΠΊΠΈΠΉ, ΠΈ ΠΎΠ΄Π½ΠΎΠ²ΡΠ΅ΠΌΠ΅Π½Π½ΠΎ ΠΎΡΠ΅Π½Ρ ΠΏΡΠΎΡΡΠΎΠΉ, Π·Π΅ΠΌΠ½ΠΎΠΉ ΠΎΠ±Π»ΠΈΠΊ ΡΡΠΎΠ³ΠΎ Π·Π΄Π°Π½ΠΈΡ ΠΏΠΎΠ΄ΠΊΡΠΏΠ°Π΅Ρ Π΅ΡΡΠ΅ΡΡΠ²Π΅Π½Π½ΠΎΡΡΡΡ ΠΈ ΠΎΡΡΡΡΡΡΠ²ΠΈΠ΅ΠΌ Π½Π°ΡΠΎΡΠΈΡΡΡ ΡΠ»Π΅ΠΌΠ΅Π½ΡΠΎΠ² Β«ΡΠΊΡΠ°ΡΠ°ΡΠ΅Π»ΡΡΡΠ²Π°Β»
Π§ΠΠ’ΠΠΠ’Π Π’ΠΠΠΠ:Β ΠΠΈΠ·Π°ΠΉΠ½ Π΄Π²ΡΡ ΡΡΠ°ΠΆΠ½ΠΎΠ³ΠΎ Π΄ΠΎΠΌΠ° β 35 ΠΈΠ½ΡΠ΅ΡΠ΅ΡΠ½ΡΡ ΠΈΠ΄Π΅ΠΉ ΡΠΎ Π²ΡΠ΅Π³ΠΎ ΠΌΠΈΡΠ°

17. ΠΠ΅Π±ΠΎΠ»ΡΡΠΎΠ΅ ΡΡΡΠ½ΠΎΠ΅ ΡΡΡΠΎΠ΅Π½ΠΈΠ΅ Ρ ΠΊΠ°ΠΌΠ΅Π½Π½ΠΎΠΉ ΠΎΡΠ΄Π΅Π»ΠΊΠΎΠΉ Π²ΡΠ³Π»ΡΠ΄ΠΈΡ ΡΠ°ΠΊ, ΠΊΠ°ΠΊ Π±ΡΠ΄ΡΠΎ Π΅Π³ΠΎ ΠΏΠΎΡΡΡΠΎΠΈΠ»ΠΈ ΠΈΠ· ΡΠΎΠ±ΡΠ°Π½Π½ΠΎΠ³ΠΎ Π² ΠΎΠΊΡΡΠ³Π΅ ΠΏΡΠΈΡΠΎΠ΄Π½ΠΎΠ³ΠΎ ΠΌΠ°ΡΠ΅ΡΠΈΠ°Π»Π°

18. ΠΠΎΡΡΠ°ΡΠΎΡΠ½ΠΎ ΡΠΎΠ»ΠΈΠ΄Π½ΠΎΠ΅ ΠΏΠΎ ΠΏΠ»ΠΎΡΠ°Π΄ΠΈ Π·Π΄Π°Π½ΠΈΠ΅ ΡΠΆΠ΅ ΠΌΠ°Π»ΠΎ ΠΏΠΎΡ ΠΎΠΆΠ΅ Π½Π° Β«ΠΏΡΠΎΡΡΡΡ ΠΈΠ½Π΄Π΅ΠΉΡΠΊΡΡ ΠΈΠ·Π±ΡΒ», ΡΡΠΎ ΠΏΠΎΠ΄ΡΠ΅ΡΠΊΠΈΠ²Π°ΡΡ Π΄ΠΎΡΠΎΠ³ΠΈΠ΅ ΠΎΡΠ΄Π΅Π»ΠΎΡΠ½ΡΠ΅ ΠΌΠ°ΡΠ΅ΡΠΈΠ°Π»Ρ. Π’Π΅ΠΌ Π½Π΅ ΠΌΠ΅Π½Π΅Π΅, ΡΡΠΎ ΡΠΈΠΏΠΈΡΠ½ΡΠΉ ΠΏΡΠ΅Π΄ΡΡΠ°Π²ΠΈΡΠ΅Π»Ρ ΡΡΠΈΠ»Ρ Prairie

19. ΠΠ° ΡΠΎΡΠΎ ΠΏΠΎΠΊΠ°Π·Π°Π½ Π΄ΠΈΠ·Π°ΠΉΠ½ ΠΎΠ±ΡΡΠ½ΠΎΠΉ Π°ΠΌΠ΅ΡΠΈΠΊΠ°Π½ΡΠΊΠΎΠΉ Π³ΠΎΡΡΠΈΠ½ΠΎΠΉ
ΠΠ½Π³Π»ΠΈΠΉΡΠΊΠΈΠ΅ ΡΡΠ°Π΄ΠΈΡΠΈΠΈ ΠΎΠ΄Π½ΠΎΡΡΠ°ΠΆΠ½ΠΎΠ³ΠΎ ΡΡΡΠΎΠΈΡΠ΅Π»ΡΡΡΠ²Π°
ΠΠΎ ΠΊΠΎΠ½ΡΠ° XIV Π²Π΅ΠΊΠ° Π½Π° ΠΎΡΡΡΠΎΠ²Π΅ ΠΏΡΠ΅ΠΎΠ±Π»Π°Π΄Π°Π»ΠΈ ΠΎΠ΄Π½ΠΎΡΡΠ°ΠΆΠ½ΡΠ΅ ΠΏΠΎΡΡΡΠΎΠΉΠΊΠΈ, ΠΈ ΡΡΠΎΡ ΠΏΠ΅ΡΠΈΠΎΠ΄ Π°ΡΡ ΠΈΡΠ΅ΠΊΡΡΡΡ Π½Π°Π·ΡΠ²Π°ΡΡ ΡΡΠ΄ΠΎΡΠΎΠ²ΡΠΊΠΈΠΌ. ΠΠ° Π½Π΅ΠΌ Π΅ΡΠ΅ Π½Π΅ ΠΎΡΡΠ°ΠΆΠ°Π΅ΡΡΡ Π±ΠΎΠ»Π΅Π΅ ΠΏΠΎΠ·Π΄Π½Π΅Π΅ ΠΏΡΠΎΠ½ΠΈΠΊΠ½ΠΎΠ²Π΅Π½ΠΈΠ΅ ΠΈΠ΄Π΅ΠΉ ΠΈΡΠ°Π»ΡΡΠ½ΡΠΊΠΎΠ³ΠΎ ΠΈ ΡΡΠ°Π½ΡΡΠ·ΡΠΊΠΎΠ³ΠΎ Π·ΠΎΠ΄ΡΠ΅ΡΡΠ²Π°. ΠΠΌΠ΅Π½Π½ΠΎ ΡΡΠΈ, ΡΠΊΠ°Π·ΠΎΡΠ½ΠΎΠ³ΠΎ Π²ΠΈΠ΄Π° ΡΡΡΠΎΠ΅Π½ΠΈΡ, ΡΠ°ΡΠ΅ Π²ΡΠ΅Π³ΠΎ ΠΈΠΌΠ΅ΡΡ Π² Π²ΠΈΠ΄Ρ, ΠΊΠΎΠ³Π΄Π° Ρ ΠΎΡΡΡ ΠΏΠΎΡΡΡΠΎΠΈΡΡ Β«ΡΡΠΎ-Π½ΠΈΠ±ΡΠ΄Ρ Π°Π½Π³Π»ΠΈΠΉΡΠΊΠΎΠ΅Β».Β

20. ΠΠ°Π³ΠΎΡΠΎΠ΄Π½ΡΠΉ ΠΊΠΎΡΡΠ΅Π΄ΠΆ Π² Β«ΡΡΠ΄ΠΎΡΠΎΠ²ΡΠΊΠΎΠΌΒ» Π°Π½Π³Π»ΠΈΠΉΡΠΊΠΎΠΌ ΡΡΠΈΠ»Π΅ ΡΠ½Π°ΡΡΠΆΠΈ ΠΈ Π²Π½ΡΡΡΠΈ

21. ΠΠ½ΡΠ΅ΡΡΠ΅Ρ Π² Π°Π½Π³Π»ΠΈΠΉΡΠΊΠΎΠΌ ΡΡΠΈΠ»Π΅

22. ΠΡΠΎΠ²ΡΠ΅ΠΌΠ΅Π½Π½ΡΠΉ Π²Π°ΡΠΈΠ°Π½Ρ Π°Π½Π³Π»ΠΈΠΉΡΠΊΠΎΠ³ΠΎ ΡΠΈΠΏΠ° Ρ ΡΠ²Π½ΡΠΌ Π·Π°ΠΈΠΌΡΡΠ²ΠΎΠ²Π°Π½ΠΈΠ΅ΠΌ ΡΠΊΠ°Π½Π΄ΠΈΠ½Π°Π²ΡΠΊΠΈΡ ΠΈΠ΄Π΅ΠΉ

23. ΠΠ½ΡΠ΅ΡΡΠ΅Ρ Π·Π°Π³ΠΎΡΠΎΠ΄Π½ΠΎΠ³ΠΎ Π΄ΠΎΠΌΠ° Π² Π΄Π°Π½Π½ΠΎΠΌ ΡΠ»ΡΡΠ°Π΅ ΡΠΎΠΎΡΠ²Π΅ΡΡΡΠ²ΡΠ΅Ρ Π²Π½Π΅ΡΠ½Π΅ΠΉ ΠΏΡΠΎΡΡΠΎΡΠ΅ Π·Π΄Π°Π½ΠΈΡ, ΠΈ Π½Π΅ Π»ΠΈΡΠ΅Π½ ΠΌΠΈΠ»ΠΎΠ³ΠΎ Β«Π΄Π΅ΡΠ΅Π²Π΅Π½ΡΠΊΠΎΠ³ΠΎΒ» ΡΡΡΠ°

24. ΠΠΎΠ²Π°Ρ Π°Π½Π³Π»ΠΈΠΉΡΠΊΠ°Ρ ΡΡΠ°Π΄ΡΠ±Π°, Π±Π΅ΡΠ΅ΠΆΠ½ΠΎ ΡΠΎΡ ΡΠ°Π½ΠΈΠ²ΡΠ°Ρ Π² Π΄ΠΈΠ·Π°ΠΉΠ½Π΅ ΠΈΠ½ΡΠ΅ΡΡΠ΅ΡΠ° ΠΏΡΠΈΠ²Π΅ΡΠΆΠ΅Π½Π½ΠΎΡΡΡ ΠΊΠ»Π°ΡΡΠΈΡΠ΅ΡΠΊΠΈΠΌ ΡΡΠ°Π΄ΠΈΡΠΈΡΠΌ

25. Π’ΡΠ°Π΄ΠΈΡΠΈΠΎΠ½Π½ΡΠΉ ΠΈΠ½ΡΠ΅ΡΡΠ΅Ρ
Π ΡΡΡΠΊΠ°Ρ ΠΈΠ·Π±Π° ΠΈ ΡΡΡΡΠΊΠ°Ρ ΡΡΠ°Π΄ΡΠ±Π°
Π’ΡΠ°Π΄ΠΈΡΠΈΠΎΠ½Π½ΡΠ΅ ΡΡΡΡΠΊΠΈΠ΅ ΠΈΠ·Π±Ρ ΠΎΡΠ΅Π½Ρ ΡΡ ΠΎΠΆΠΈ ΡΠΎ ΡΠΊΠ°Π½Π΄ΠΈΠ½Π°Π²ΡΠΊΠΈΠΌΠΈ ΠΏΠΎΡΡΡΠΎΠΉΠΊΠ°ΠΌΠΈ, ΡΡΠΎ Π»Π΅Π³ΠΊΠΎ ΠΎΠ±ΡΡΡΠ½ΡΠ΅ΡΡΡ ΡΡ ΠΎΠ΄Π½ΡΠΌ ΠΊΠ»ΠΈΠΌΠ°ΡΠΎΠΌ, ΠΎΠ±ΠΈΠ»ΠΈΠ΅ΠΌ Π»Π΅ΡΠ° ΠΊΠ°ΠΊ ΡΡΡΠΎΠΈΡΠ΅Π»ΡΠ½ΠΎΠ³ΠΎ ΠΌΠ°ΡΠ΅ΡΠΈΠ°Π»Π°, Π΄Π° ΠΈ Π½Π΅ΠΊΠΎΡΠΎΡΡΠΌΠΈ ΠΎΠ±ΡΠΈΠΌΠΈ ΠΏΡΠΈΠ²ΡΡΠΊΠ°ΠΌΠΈ ΡΠ΅Π²Π΅ΡΠ½ΡΡ Π½Π°ΡΠΎΠ΄ΠΎΠ². ΠΠ²ΠΎΡΡΠ½ΡΠΊΠΈΠ΅ ΠΈ ΠΊΡΠΏΠ΅ΡΠ΅ΡΠΊΠΈΠ΅ ΡΡΠ°Π΄ΡΠ±Ρ ΡΡΡΠΎΠΈΠ»ΠΈ ΠΈΠ· ΠΊΠ°ΠΌΠ½Ρ, Π° ΠΎΡΠ³ΠΎΠ»ΠΎΡΠΊΠΈ ΠΈΡΠ°Π»ΡΡΠ½ΡΠΊΠΎΠΉ Π°ΡΡ ΠΈΡΠ΅ΠΊΡΡΡΡ (ΠΏΠΎΡΡΠ°Π»Ρ, ΠΊΠΎΠ»ΠΎΠ½Π½Ρ, Π±Π°Π»ΠΊΠΎΠ½Ρ) ΠΌΠΎΠΆΠ½ΠΎ ΠΈ ΡΠ΅ΠΉΡΠ°Ρ ΡΠ²ΠΈΠ΄Π΅ΡΡ Π² Π·Π΄Π°Π½ΠΈΠΈ ΠΈΠ½ΠΎΠ³ΠΎ ΡΠ΅Π»ΡΡΠΊΠΎΠ³ΠΎ Π΄Π²ΠΎΡΡΠ° ΠΊΡΠ»ΡΡΡΡΡ.Β

26. ΠΠ΅Π»ΠΎΡΠ½Π΅ΠΆΠ½Π°Ρ ΡΡΡΡΠΊΠ°Ρ ΡΡΠ°Π΄ΡΠ±Π° Ρ Π΄Π΅ΠΊΠΎΡΠ°ΡΠΈΠ²Π½ΡΠΌΠΈ ΡΠ»Π΅ΠΌΠ΅Π½ΡΠ°ΠΌΠΈ ΠΈΡΠ°Π»ΡΡΠ½ΡΠΊΠΎΠ³ΠΎ ΡΡΠΈΠ»Ρ

27. ΠΠ°Π³ΠΎΡΠΎΠ΄Π½ΡΠΉ ΠΊΠΎΡΡΠ΅Π΄ΠΆ Ρ Π±ΠΎΠ»ΡΡΠΈΠΌΠΈ ΠΎΠΊΠ½Π°ΠΌΠΈ ΠΈ Π½Π΅ΡΠΈΠΏΠΈΡΠ½ΠΎΠΉ ΠΊΡΡΡΠ΅ΠΉ Ρ Π²Π΅ΡΡΠΈΠΊΠ°Π»ΡΠ½ΡΠΌΠΈ ΠΌΠ°Π½ΡΠ°ΡΠ΄Π½ΡΠΌΠΈ ΠΎΠΊΠ½Π°ΠΌΠΈ Π²ΡΠ³Π»ΡΠ΄ΠΈΡ Π½Π΅Π±ΡΠΎΡΠΊΠΎ, Π½ΠΎ Π°ΠΊΠΊΡΡΠ°ΡΠ½ΠΎ ΠΈ ΡΡΠΈΠ»ΡΠ½ΠΎ

28. ΠΠΈΠ·Π°ΠΉΠ½ Π² Π΄ΡΡ Π΅ ΠΆΠΈΠ²ΠΎΠΏΠΈΡΠ½ΠΎΠΉ ΡΡΡΡΠΊΠΎΠΉ ΠΈΠ·Π±Ρ Ρ ΠΏΠΎΠ΄Π²ΠΎΡΡΠ΅ΠΌ ΠΈ ΠΎΡΠΊΡΡΡΠΎΠΉ Π±Π΅ΡΠ΅Π΄ΠΊΠΎΠΉ
Π§ΠΠ’ΠΠΠ’Π Π’ΠΠΠΠ:Β ΠΠ΄ΠΎΡ Π½ΠΎΠ²Π»ΡΡΡΠΈΠΉ ΡΠΊΠ°Π½Π΄ΠΈΠ½Π°Π²ΡΠΊΠΈΠΉ ΡΡΠΈΠ»Ρ Π² ΠΈΠ½ΡΠ΅ΡΡΠ΅ΡΠ΅
Π‘ΠΎΠ²ΡΠ΅ΠΌΠ΅Π½Π½ΡΠ΅ ΠΊΠΎΡΡΠ΅Π΄ΠΆΠΈ Π² ΠΎΠ΄ΠΈΠ½ ΡΡΠ°ΠΆ
Π Π°ΡΡ ΠΈΡΠ΅ΠΊΡΡΡΠ΅ ΡΠ΅Π³ΠΎΠ΄Π½ΡΡΠ½Π΅Π³ΠΎ Π΄Π½Ρ Π³ΠΎΡΠΏΠΎΠ΄ΡΡΠ²ΡΡΡ ΠΌΠΈΠ½ΠΈΠΌΠ°Π»ΠΈΠ·ΠΌ, ΡΡΠ½ΠΊΡΠΈΠΎΠ½Π°Π»ΡΠ½ΠΎΡΡΡ ΠΈ ΠΏΡΠ°ΠΊΡΠΈΡΠ½ΠΎΡΡΡ. ΠΠΎΠ»ΠΎΠ΄ΡΠ΅ Π°ΡΡ ΠΈΡΠ΅ΠΊΡΠΎΡΡ ΡΠΎΠ·Π΄Π°ΡΡ ΠΌΠ½ΠΎΠ³ΠΎ ΠΈΠ½ΡΠ΅ΡΠ΅ΡΠ½ΡΡ ΠΏΡΠΎΠ΅ΠΊΡΠΎΠ², ΠΊΠ°ΠΊ Π°Π±ΡΠΎΠ»ΡΡΠ½ΠΎ Π½Π΅ΠΏΠΎΡ ΠΎΠΆΠΈΡ Π½Π° ΡΡΠ°Π΄ΠΈΡΠΈΠΎΠ½Π½ΡΠ΅ ΡΠΎΡΠΌΡ, ΡΠ°ΠΊ ΠΈ ΡΠΌΠ΅Π»ΠΎ ΡΠΎΡΠ΅ΡΠ°Ρ Π² Π½ΠΈΡ ΡΠ»Π΅ΠΌΠ΅Π½ΡΡ ΠΊΠ»Π°ΡΡΠΈΠΊΠΈ Ρ ΠΏΠΎΠ½ΡΡΠΈΡΠΌΠΈ ΠΎ ΠΊΡΠ°ΡΠΎΡΠ΅ ΠΈ ΡΠ΄ΠΎΠ±ΡΡΠ²Π΅ ΠΈΠ½ΡΠΎΡΠΌΠ°ΡΠΈΠΎΠ½Π½ΠΎΠ³ΠΎ Π²Π΅ΠΊΠ°.

29. ΠΠ΅Π»ΠΎΡΠ½Π΅ΠΆΠ½ΡΠΉ ΡΠ°ΡΠ°Π΄ Π² Π·Π°Π³ΠΎΡΠΎΠ΄Π½ΠΎΠΌ ΠΎΠ΄Π½ΠΎΡΡΠ°ΠΆΠ½ΠΎΠΌ ΠΊΠΎΡΡΠ΅Π΄ΠΆΠ΅ ΡΠΎΠ²ΡΠ΅ΠΌΠ΅Π½Π½ΠΎΠ³ΠΎ Π΄ΠΈΠ·Π°ΠΉΠ½Π°

30. Π ΠΎΠ±Π»ΠΈΠΊΠ΅ ΡΡΠΎΠ³ΠΎ ΠΊΠΎΡΡΠ΅Π΄ΠΆΠ° ΠΏΡΠΈΠ²Π»Π΅ΠΊΠ°Π΅Ρ ΠΎΠ±Π°ΡΠ½ΠΈΠ΅ ΠΏΡΡΠΌΡΡ Π»ΠΈΠ½ΠΈΠΉ ΠΈ Π³Π°ΡΠΌΠΎΠ½ΠΈΡΠ½Π°Ρ ΡΠ²Π΅ΡΠΎΠ²Π°Ρ ΠΏΠ°Π»ΠΈΡΡΠ°

31. Π£ΠΌΠ΅ΡΠ΅Π½Π½Π°Ρ ΠΊΠ»Π°ΡΡΠΈΠΊΠ° ΠΈ ΠΏΠ°ΡΡΠ΅Π»ΡΠ½ΡΠ΅ ΡΠ²Π΅ΡΠ° ΡΠΎΠ·Π΄Π°ΡΡ ΠΎΡΡΡΠ΅Π½ΠΈΠ΅, ΡΡΠΎ Ρ ΠΎΠ·ΡΠ΅Π²Π° ΡΠ΅Π½ΡΡ ΡΡΠ°Π΄ΠΈΡΠΈΠΈ, Π½ΠΎ Π²Π΅Π΄ΡΡ ΡΠΎΠ²ΡΠ΅ΠΌΠ΅Π½Π½ΡΠΉ ΠΎΠ±ΡΠ°Π· ΠΆΠΈΠ·Π½ΠΈ

32. ΠΡΠ΅Π²Π΅Π½ΡΠ°ΡΡΠΉ ΡΠΎΠ²ΡΠ΅ΠΌΠ΅Π½Π½ΡΠΉ ΠΊΠΎΡΡΠ΅Π΄ΠΆ Π² ΡΡΡΡΠΊΠΎΠΌ ΡΡΠΈΠ»Π΅

33. ΠΠ»Π°ΡΡΠΈΡΠ΅ΡΠΊΠΈΠ΅ ΡΠΎΡΠΌΡ Π² ΡΠΎΠ²ΡΠ΅ΠΌΠ΅Π½Π½ΠΎΠΌ ΠΈΡΠΏΠΎΠ»Π½Π΅Π½ΠΈΠΈ

34. ΠΡΠ°ΠΊΡΠΈΡΠ½ΡΠΉ Π΄ΠΎΠΌ Π² ΡΡΠΈΠ»Π΅ ΠΌΠΈΠ½ΠΈΠΌΠ°Π»ΠΈΠ·ΠΌ ΠΈΠ· Π±Π΅ΡΠΎΠ½Π½ΡΡ Π±Π»ΠΎΠΊΠΎΠ²

35. Π‘ΠΊΠ°Π·ΠΎΡΠ½ΡΠΉ Π΄ΠΎΠΌ Ρ ΡΠ΅Π·Π½ΡΠΌ ΡΠ°ΡΠ°Π΄ΠΎΠΌ
design-ud.net
ΠΡΠΎΠ΅ΠΊΡΡ ΡΠΎΠ²ΡΠ΅ΠΌΠ΅Π½Π½ΡΡ ΠΎΠ΄Π½ΠΎΡΡΠ°ΠΆΠ½ΡΡ Π΄ΠΎΠΌΠΎΠ² ΠΈ ΠΊΠΎΡΡΠ΅Π΄ΠΆΠ΅ΠΉ ΡΠΎΡΠΎ ΠΈ ΡΠ΅Π½Ρ
ΠΠ°Π½Ρ
ΠΠ°ΡΠ°ΠΆ (1 ΠΌΠ΅ΡΡΠΎ)
ΠΠ°ΡΠ°ΠΆ (2 ΠΌΠ΅ΡΡΠ°)
ΠΠ°Π²Π΅Ρ
Π’Π΅ΡΡΠ°ΡΠ° Π½Π° 1-ΠΌ ΡΡΠ°ΠΆΠ΅
Π’Π΅ΡΡΠ°ΡΠ° Π½Π° 2-ΠΌ ΡΡΠ°ΠΆΠ΅
Π’Π΅ΡΡΠ°ΡΠ° Π½Π° ΠΊΡΡΡΠ΅
ΠΠ΅ΡΠ°Π½Π΄Π°
ΠΠΈΠΌΠ½ΠΈΠΉ ΡΠ°Π΄
ΠΡΠΎΡΠΎΠΉ ΡΠ²Π΅Ρ
ΠΠ°ΡΡΠ΅ΠΉΠ½
Π‘Π°ΡΠ½Π°
Π’ΡΠ΅Π½Π°ΠΆΠ΅ΡΠ½ΡΠΉ Π·Π°Π»
ΠΡΠΊΠ΅Ρ
ΠΠ°Π±ΠΈΠ½Π΅Ρ
ΠΠ°Π»ΠΊΠΎΠ½
ΠΠΎΠ»ΡΡΠΈΠ΅ ΠΎΠΊΠ½Π°
ΠΠ»ΠΈΡΠ½ΡΠΉ
Π£Π³Π»ΠΎΠ²ΠΎΠΉ
ΠΠ»Ρ ΡΠ·ΠΊΠΎΠ³ΠΎ ΡΡΠ°ΡΡΠΊΠ°
ΠΠ²Π°Π΄ΡΠ°ΡΠ½ΡΠΉ
ΠΠΎΠ³ΡΠ΅Π±
deutek.ru
65 ΡΠΎΡΠΎ Π»ΡΡΡΠΈΡ Π΄ΠΈΠ·Π°ΠΉΠ½Π΅ΡΡΠΊΠΈΡ ΠΈΠ΄Π΅ΠΉ ΠΎΡΠΎΡΠΌΠ»Π΅Π½ΠΈΡ
Π‘Π΅Π³ΠΎΠ΄Π½Ρ ΠΏΡΠΎΠ΅ΠΊΡΡ ΠΎΠ΄Π½ΠΎΡΡΠ°ΠΆΠ½ΡΡ Π΄ΠΎΠΌΠΎΠ² ΠΈ ΡΠ°Π·Π»ΠΈΡΠ½ΡΡ ΠΊΠΎΡΡΠ΅Π΄ΠΆΠ΅ΠΉ Ρ ΡΠΎΠ²ΡΠ΅ΠΌΠ΅Π½Π½ΠΎΠΉ ΠΌΠΎΠ»ΠΎΠ΄Π΅ΠΆΠΈ ΠΏΠΎΠ»ΡΠ·ΡΡΡΡΡ Π½Π΅Π²Π΅ΡΠΎΡΡΠ½ΠΎΠΉ ΠΏΠΎΠΏΡΠ»ΡΡΠ½ΠΎΡΡΡΡ, ΡΡΠΎ Π²ΠΏΠΎΠ»Π½Π΅ Π»Π΅Π³ΠΊΠΎ ΠΎΠ±ΡΡΡΠ½ΡΠ΅ΡΡΡ. ΠΠ΅Π·ΡΡΠ»ΠΎΠ²Π½ΠΎ, ΡΠ°ΠΊΠΎΠ³ΠΎ ΡΠΈΠΏΠ° Π΄ΠΎΠΌΠ° ΡΡΡΠΎΠΈΡΡ Π½Π°ΠΌΠ½ΠΎΠ³ΠΎ ΠΏΡΠΎΡΠ΅, ΠΏΠΎ ΡΡΠΎΠΊΠ°ΠΌ ΠΏΠΎΠ»ΡΡΠ°Π΅ΡΡΡ Π±ΡΡΡΡΠ΅Π΅ ΠΈ Π·Π½Π°ΡΠΈΡΠ΅Π»ΡΠ½ΠΎ Π΄Π΅ΡΠ΅Π²Π»Π΅ Π±Π»Π°Π³ΠΎΠ΄Π°ΡΡ ΠΈΡΠΏΠΎΠ»ΡΠ·ΠΎΠ²Π°Π½ΠΈΡ ΠΏΡΠΎΡΡΡΡ ΡΠ΅ΡΠ΅Π½ΠΈΠΉ Π² ΡΠ΅ΡΡΠ΅ΠΆΠ°Ρ Π² ΡΠ°ΡΡΠΈ ΠΊΠΎΠ½ΡΡΡΡΠΊΡΠΈΠΈ.

ΠΡΠΈ Π²ΡΠ±ΠΎΡΠ΅ Π΄Π»Ρ ΡΡΡΠΎΠΈΡΠ΅Π»ΡΡΡΠ²Π° ΠΏΡΠΎΠ΅ΠΊΡΠ° Π±ΡΠ΄ΡΡΠ΅Π³ΠΎ ΠΎΠ΄Π½ΠΎΡΡΠ°ΠΆΠ½ΠΎΠ³ΠΎ Π΄ΠΎΠΌΠ° Π²Π°ΠΆΠ½ΠΎ ΠΈΠΌΠ΅ΡΡ ΠΏΠΎΠ½ΠΈΠΌΠ°ΡΡ, ΡΡΠΎ Π² ΡΠ°ΠΊΠΎΠΌ ΡΠ»ΡΡΠ°Π΅ Π²ΡΠ΅ ΠΊΠΎΠΌΠ½Π°ΡΡ Π±ΡΠ΄ΡΡ Π½Π°Ρ ΠΎΠ΄ΠΈΡΡΡΡ Π² Π»ΡΠ±ΠΎΠΌ ΡΠ»ΡΡΠ°Π΅ Π½Π° ΠΎΠ΄Π½ΠΎΠΌ ΡΡΠΎΠ²Π½Π΅ ΠΈ, ΠΊΠ°ΠΊ ΡΠ»Π΅Π΄ΡΡΠ²ΠΈΠ΅, ΡΠ°ΠΌΡΠ΅ Π²Π°ΠΆΠ½ΡΠ΅ Π²Π΅ΡΠΈ Π±ΡΠ΄ΡΡ Π²ΡΠ΅Π³Π΄Π° ΡΡΠ΄ΠΎΠΌ.

ΠΠΎΡΡΠΈ Π²ΡΠ΅ ΡΠΎΠ²ΡΠ΅ΠΌΠ΅Π½Π½ΡΠ΅ ΠΎΠ΄Π½ΠΎΡΡΠ°ΠΆΠ½ΡΠ΅ Π΄ΠΎΠΌΠ° ΠΎΡΠ»ΠΈΡΠ½ΠΎ ΠΏΠΎΠ΄ΠΎΠΉΠ΄ΡΡ Π΄Π»Ρ Π»ΡΠ΄Π΅ΠΉ, ΠΊΠΎΡΠΎΡΡΠ΅ ΡΠΆΠ΅ Π½Π΅ ΡΠ°Π±ΠΎΡΠ°ΡΡ ΠΈ Π½Π°Ρ ΠΎΠ΄ΡΡΡΡ Π½Π° ΠΏΠ΅Π½ΡΠΈΠΈ Π² ΡΠΈΠ»Ρ Π²ΠΎΠ·ΡΠ°ΡΡΠ°.

ΠΡΠ»ΠΈ ΠΏΡΠΈ ΠΏΠ΅ΡΠ΅Π΅Π·Π΄Π΅ ΠΎΡΠ½ΠΎΠ²Π½Π°Ρ ΡΠ΅Π»Ρ ΡΡΠΊΠΎΠ½ΠΎΠΌΠΈΡΡ Π΄Π΅Π½Π΅ΠΆΠ½ΡΠ΅ ΡΡΠ΅Π΄ΡΡΠ²Π°, ΡΠΎ ΡΡΠΎ ΡΠ°ΠΌΡΠΉ Π»ΡΡΡΠΈΠΉ Π²Π°ΡΠΈΠ°Π½Ρ, ΠΏΠΎΡΠΊΠΎΠ»ΡΠΊΡ ΠΎΠ΄Π½ΠΎΡΡΠ°ΠΆΠ½ΡΠ΅ Π΄ΠΎΠΌΠ° Ρ ΠΌΠ°Π»Π΅Π½ΡΠΊΠΎΠΉ ΠΏΠ»ΠΎΡΠ°Π΄ΡΡ ΠΏΡΠΈΠΌΠ΅ΡΠ½ΠΎ Π² 100 ΠΊΠ².ΠΌ. ΠΎΡΠ»ΠΈΡΠ½ΠΎ ΡΠΎΡ ΡΠ°Π½ΡΡΡ ΡΠ΅ΠΏΠ»ΠΎ ΠΈ ΠΏΡΠΈ ΡΡΠΎΠΌ Π½Π΅ ΡΡΠ΅Π±ΡΡΡ ΡΠ΅ΡΡΠ΅Π·Π½ΡΡ Π·Π°ΡΡΠ°Ρ Π½Π° ΡΠ°ΠΊΡΡ Π²Π°ΠΆΠ½ΡΡ ΡΡΠ°ΡΡΡ ΡΠ°ΡΡ ΠΎΠ΄ΠΎΠ², ΠΊΠ°ΠΊ ΠΎΡΠΎΠΏΠ»Π΅Π½ΠΈΠ΅.

ΠΠ»ΡΡΡ ΠΈ ΠΌΠΈΠ½ΡΡΡ ΠΏΡΠΎΠ΅ΠΊΡΠΎΠ² Ρ ΠΎΠ΄Π½ΠΎΡΡΠ°ΠΆΠ½ΡΠΌΠΈ Π΄ΠΎΠΌΠ°ΠΌΠΈ
ΠΡΠ»ΠΈ Ρ Π²Π°Ρ ΡΠ΅ΠΉΡΠ°Ρ Π³ΠΎΡΠΎΠ²ΠΎ ΠΌΠ΅ΡΡΠΎ ΠΎΡ 70 Π΄ΠΎ 125-130 ΠΊΠ².ΠΌ., ΡΠΎ ΠΎΠ΄Π½ΠΎΡΡΠ°ΠΆΠ½ΡΠΉ Π΄ΠΎΠΌ 10 Π½Π° 10 ΠΌΠΎΠΆΠ΅Ρ ΡΡΠ°ΡΡ ΠΎΡΠ»ΠΈΡΠ½ΡΠΌ Π²ΡΠ±ΠΎΡΠΎΠΌ. Π£ Π½ΠΈΡ ΠΏΠ΅ΡΠ΅Π΄ Π΄Π²ΡΡ ΡΡΠ°ΠΆΠ½ΡΠΌΠΈ Π΅ΡΡΡ Π΄ΠΎΡΡΠ°ΡΠΎΡΠ½ΠΎ ΠΌΠ½ΠΎΠ³ΠΎ ΡΠ°Π·Π»ΠΈΡΠ½ΡΡ ΠΏΡΠ΅ΠΈΠΌΡΡΠ΅ΡΡΠ² ΠΈ Π²ΠΎΡ Π½Π΅ΠΊΠΎΡΠΎΡΡΠ΅ ΠΈΠ· Π½ΠΈΡ .

ΠΠΎ-ΠΏΠ΅ΡΠ²ΡΡ , Π»Π΅Π³ΠΊΠΎΡΡΡ Π²ΡΠΏΠΎΠ»Π½ΡΠ΅ΠΌΠΎΠΉ ΠΊΠΎΠ½ΡΡΡΡΠΊΡΠΈΠΈ. ΠΠ° Π²ΠΎΠ·Π²Π΅Π΄Π΅Π½ΠΈΠ΅ Π΄ΠΎΠΌΠ° ΠΏΡΠΈ ΠΎΠ΄ΠΈΠ½Π°ΠΊΠΎΠ²ΠΎΠΌ ΠΆΠΈΠ»ΠΎΠΌ ΠΎΠ±ΡΠ΅ΠΌΠ΅ ΠΏΠΎΠ½Π°Π΄ΠΎΠ±ΠΈΡΡΡ Π·Π°ΡΡΠ°ΡΠΈΡΡ Π½Π°ΠΌΠ½ΠΎΠ³ΠΎ ΠΌΠ΅Π½ΡΡΠ΅ Π²ΡΠ΅ΠΌΠ΅Π½ΠΈ. Π ΡΠΈΠ»Ρ Π½Π°Π»ΠΈΡΠΈΡ Π»ΠΈΡΡ ΠΎΠ΄Π½ΠΎΠ³ΠΎ ΡΡΠ°ΠΆΠ° Π² Π»ΡΠ±ΠΎΠΌ ΡΠ»ΡΡΠ°Π΅ ΡΡΠ½Π΄Π°ΠΌΠ΅Π½Ρ Π΄ΠΎΠΌΠ° ΠΌΠ΅Π½ΡΡΠ΅, Π΅Π³ΠΎ Π±ΡΠ΄ΡΡΠ°Ρ ΠΊΠΎΠ½ΡΡΡΡΠΊΡΠΈΡ ΡΠ»ΠΎΠΆΠ½Π΅Π΅ Π½Π΅ ΡΡΠ°Π½ΠΎΠ²ΠΈΡΡΡ, ΠΏΠΎΡΠΊΠΎΠ»ΡΠΊΡ ΠΏΡΠΈ Π½Π°ΡΠ°Π»ΡΠ½ΠΎΠΌ Π·Π°ΠΊΠ»Π°Π΄ΡΠ²Π°Π½ΠΈΠΈ ΡΡΠ½Π΄Π°ΠΌΠ΅Π½ΡΠ°, Π½Π΅ΠΎΠ±Ρ ΠΎΠ΄ΠΈΠΌΠΎΠ³ΠΎ Π΄Π»Ρ Π΄ΠΎΠΌΠ° Ρ Π΄Π²ΡΠΌΡ ΡΡΠ°ΠΆΠ°ΠΌΠΈ ΠΈ Π±ΠΎΠ»Π΅Π΅, ΠΎΠ±ΡΠ·Π°ΡΠ΅Π»ΡΠ½ΠΎ ΡΡΠΈΡΡΠ²Π°Π΅ΡΡΡ Π±ΠΎΠ»ΡΡΠ΅Π΅ Π΄Π°Π²Π»Π΅Π½ΠΈΠ΅ ΡΡΠ΅Π½ Π½Π΅ΠΏΠΎΡΡΠ΅Π΄ΡΡΠ²Π΅Π½Π½ΠΎ Π½Π° Π½Π΅Π³ΠΎ.
ΠΠΎ-Π²ΡΠΎΡΡΡ , ΡΡΠΎ ΠΌΠ΅Π½ΡΡΠ°Ρ ΡΡΠΎΠΈΠΌΠΎΡΡΡ ΡΡΡΠΎΠ΅Π½ΠΈΡ.

Π-ΡΡΠ΅ΡΡΠΈΡ , Π½Π΅Ρ Π½Π΅ΠΎΠ±Ρ ΠΎΠ΄ΠΈΠΌΠΎΡΡΠΈ Π² Π»Π΅ΡΡΠ½ΠΈΡΠ΅, ΠΊΠΎΡΠΎΡΠ°Ρ Π½Π° ΠΏΡΠ°ΠΊΡΠΈΠΊΠ΅ Π·Π°Π±ΠΈΡΠ°Π΅Ρ Π΄ΠΎΡΡΠ°ΡΠΎΡΠ½ΠΎ Π±ΠΎΠ»ΡΡΠΎΠ΅ ΠΊΠΎΠ»ΠΈΡΠ΅ΡΡΠ²ΠΎ Π½Π΅ΠΎΠ±Ρ ΠΎΠ΄ΠΈΠΌΠΎΠ³ΠΎ ΠΏΠΎΠ»Π΅Π·Π½ΠΎΠ³ΠΎ ΠΎΠ±ΡΠ΅ΠΌΠ° ΠΏΡΠΈ ΡΡΡΠΎΠΈΡΠ΅Π»ΡΡΡΠ²Π΅. ΠΡΠΎΠΌΠ΅ ΡΠΎΠ³ΠΎ, ΠΈΠΌΠ΅Π½Π½ΠΎ ΠΎΡΡΡΡΡΡΠ²ΠΈΠ΅ Π»Π΅ΡΡΠ½ΠΈΡΡ ΡΠ²ΠΎΠ΄ΠΈΡ ΠΊ ΠΌΠΈΠ½ΠΈΠΌΡΠΌΡ Π²ΠΎΠ·ΠΌΠΎΠΆΠ½ΡΠΉ ΡΡΠ°Π²ΠΌΠ°ΡΠΈΠ·ΠΌ. ΠΡΠΎ ΡΡΠΎΠΈΡ ΠΎΡΠΎΠ±Π΅Π½Π½ΠΎ ΡΡΠΈΡΡΠ²Π°ΡΡ Π² ΡΠΎΠΌ ΡΠ»ΡΡΠ°Π΅, Π΅ΡΠ»ΠΈ Π² Π΄ΠΎΠΌΠ΅ Π±ΡΠ΄Π΅Ρ ΠΆΠΈΡΡ ΠΌΠ°Π»Π΅Π½ΡΠΊΠΈΠΉ ΡΠ΅Π±Π΅Π½ΠΎΠΊ.

ΠΠ΄Π½Π°ΠΊΠΎ, ΠΊΠ°ΠΊ ΠΈ Ρ Π»ΡΠ±ΠΎΠ³ΠΎ ΠΏΡΠΎΠ΅ΠΊΡΠ°, ΠΏΠ»Π°Π½ΠΈΡΠΎΠ²ΠΊΠ° ΠΎΠ΄Π½ΠΎΡΡΠ°ΠΆΠ½ΠΎΠ³ΠΎ Π΄ΠΎΠΌΠ° ΠΌΠΎΠΆΠ΅Ρ ΠΈΠΌΠ΅ΡΡ ΠΈ ΡΠ²ΠΎΠΉ Π½Π΅Π΄ΠΎΡΡΠ°ΡΠΎΠΊ. ΠΠ΄Π΅ΡΡ ΡΡΠΎΠΈΡ ΠΎΡΠΌΠ΅ΡΠΈΡΡ, Π΄ΠΎΡΡΠ°ΡΠΎΡΠ½ΠΎ Π±ΠΎΠ»ΡΡΠΈΠ΅ Π·Π°ΡΡΠ°ΡΡ ΠΏΠ»ΠΎΡΠ°Π΄ΠΈ Π½Π° Π·Π΅ΠΌΠ»Ρ ΠΏΠΎΠ΄ Π±ΡΠ΄ΡΡΡΡ Π·Π°ΡΡΡΠΎΠΉΠΊΡ.

ΠΡΠ»ΠΈ ΠΏΠ»Π°Π½ΠΈΡΡΠ΅ΡΡΡ ΡΡΡΠΎΠΈΡΠ΅Π»ΡΡΡΠ²ΠΎ Π² ΡΠ΅ΡΡΠ΅ Π³ΠΎΡΠΎΠ΄Π°, ΡΠΎ Π½Π΅Π»ΡΠ·Ρ Π½Π΅ ΠΎΠ±ΡΠ°ΡΠΈΡΡ Π²Π½ΠΈΠΌΠ°Π½ΠΈΠ΅ Π½Π° ΡΠΎ, ΡΡΠΎ Π΄Π²ΡΡ ΡΡΠ°ΠΆΠ½ΡΠΉ Π΄ΠΎΠΌ ΠΏΠΎΡΡΡΠΎΠΈΡΡ ΠΌΠΎΠΆΠ½ΠΎ Π½Π° ΠΌΠ΅Π½ΡΡΠ΅ΠΉ ΠΏΠ»ΠΎΡΠ°Π΄ΠΈ.

ΠΡΠΎΡΠ΅ΡΡ ΠΏΠ»Π°Π½ΠΈΡΠΎΠ²Π°Π½ΠΈΡ Π΄ΠΎΠΌΠ° ΠΈ Π΅Π³ΠΎ ΠΊΠΎΠΌΠ½Π°Ρ
ΠΡΠ»ΠΈ Π²Ρ ΡΠ΅ΡΠΈΠ»ΠΈ ΠΏΠΎΡΡΡΠΎΠΈΡΡ Π΄ΠΎΠΌ 12 Π½Π° 12, ΡΠΎ Π΅ΡΡΡ ΡΡΠ΄ ΠΌΠΎΠΌΠ΅Π½ΡΠΎΠ², ΠΊΠΎΡΠΎΡΡΠ΅ ΠΎΠ±ΡΠ·Π°ΡΠ΅Π»ΡΠ½ΠΎ Π½Π΅ΠΎΠ±Ρ ΠΎΠ΄ΠΈΠΌΠΎ ΡΡΠ΅ΡΡΡ Π²ΠΎ Π²ΡΠ΅ΠΌΡ ΠΏΠ»Π°Π½ΠΈΡΠΎΠ²Π°Π½ΠΈΡ Π·Π΄Π°Π½ΠΈΡ.

ΠΡΠΈ ΡΠ°ΠΌΠΎΡΡΠΎΡΡΠ΅Π»ΡΠ½ΠΎΠΌ ΡΠΎΡΡΠ°Π²Π»Π΅Π½ΠΈΠΈ Π΄Π΅ΡΠ°Π»ΡΠ½ΠΎΠΉ ΠΏΠ»Π°Π½ΠΈΡΠΎΠ²ΠΊΠΈ Π²Π°ΠΆΠ½ΠΎ ΠΏΠΎΠΌΠ½ΠΈΡΡ ΠΎ Π½ΠΈΠΆΠ΅ ΠΏΠ΅ΡΠ΅ΡΠΈΡΠ»Π΅Π½Π½ΡΡ Π΄Π΅ΡΠ°Π»ΡΡ :
- Π Π°ΡΠΏΠΎΠ»ΠΎΠΆΠ΅Π½ΠΈΠ΅ ΠΏΠΎΡΡΡΠΎΠΉΠΊΠΈ ΠΎΡΠ½ΠΎΡΠΈΡΠ΅Π»ΡΠ½ΠΎ ΡΠΎΠ·Ρ Π²Π΅ΡΡΠΎΠ², Π° ΡΠ°ΠΊΠΆΠ΅ ΡΡΠΎΡΠΎΠ½ ΡΠ²Π΅ΡΠ°.
- ΠΡΠΎΠ±Π΅Π½Π½ΠΎΡΡΠΈ Π»Π°Π½Π΄ΡΠ°ΡΡΠ½ΠΎΠ³ΠΎ Π΄ΠΈΠ·Π°ΠΉΠ½Π° Π²ΠΎΠΊΡΡΠ³ ΠΏΠΎΡΡΡΠΎΠΉΠΊΠΈ.
- ΠΠ°ΠΏΡΠ°Π²Π»Π΅Π½ΠΈΠ΅, Π² ΠΊΠΎΡΠΎΡΠΎΠΌ ΠΎΡΡΡΠ΅ΡΡΠ²Π»ΡΠ΅ΡΡΡ ΡΠ΅ΡΠ΅Π½ΠΈΠ΅ Π³ΡΡΠ½ΡΠΎΠ²ΡΡ Π²ΠΎΠ΄.
- ΠΠΎΡΡΡΠΎΠΉΠΊΠΈ, ΠΏΠΎΡΠ²ΠΈΠ²ΡΠΈΠ΅ΡΡ Π·Π°Π΄ΠΎΠ»Π³ΠΎ Π΄ΠΎ Π½Π°ΡΠ°Π»Π° ΡΡΡΠΎΠΈΡΠ΅Π»ΡΡΡΠ²Π° Π½ΠΎΠ²ΠΎΠ³ΠΎ Π΄ΠΎΠΌΠ° Π½Π° ΡΠ΅ΡΡΠΈΡΠΎΡΠΈΠΈ, ΠΈΡ Ρ Π°ΡΠ°ΠΊΡΠ΅ΡΠ½ΡΠ΅ ΠΎΡΠΎΠ±Π΅Π½Π½ΠΎΡΡΠΈ, Π° ΡΠ°ΠΊΠΆΠ΅ Π½Π΅ΠΏΠΎΡΡΠ΅Π΄ΡΡΠ²Π΅Π½Π½Π°Ρ ΡΠ΄Π°Π»Π΅Π½Π½ΠΎΡΡΡ ΠΎΡ ΡΡΠ°ΡΡΠΊΠ°, ΠΊΠΎΡΠΎΡΡΠΉ Π±ΡΠ» Π²ΡΠ΄Π΅Π»Π΅Π½ Π΄Π»Ρ Π±ΡΠ΄ΡΡΠ΅Π³ΠΎ ΡΡΡΠΎΠΈΡΠ΅Π»ΡΡΡΠ²Π°.
- ΠΡΠΈΠ²ΡΠ·ΠΊΠ° ΠΊ ΠΈΠΌΠ΅ΡΡΠΈΠΌΡΡ ΡΠΈΡΡΠ΅ΠΌΠ°ΠΌ ΠΊΠΎΠΌΠΌΡΠ½ΠΈΠΊΠ°ΡΠΈΠΈ.
- Π€ΠΎΡΠΌΠ° Π΄ΠΎΠΌΠ°.
- Π§ΠΈΡΠ»ΠΎ ΠΊΠΎΠΌΠ½Π°Ρ Π²Π½ΡΡΡΠΈ Π΄ΠΎΠΌΠ°, Π½Π°Π·Π½Π°ΡΠ΅Π½ΠΈΠ΅ ΠΊΠ°ΠΆΠ΄ΠΎΠ³ΠΎ.
- ΠΠΎΠ·ΠΌΠΎΠΆΠ½ΠΎΡΡΡ Π²ΡΠ΄Π΅Π»ΠΈΡΡ ΡΠΊΡΡΡΡΠ΅ ΠΏΠ»ΠΎΡΠ°Π΄ΠΈ, ΠΊΠΎΡΠΎΡΡΠ΅ ΠΌΠΎΠΆΠ½ΠΎ Π±ΡΠ΄Π΅Ρ ΠΈΡΠΏΠΎΠ»ΡΠ·ΠΎΠ²Π°ΡΡ, ΠΊΠ°ΠΊ ΠΏΠΎΠ»Π΅Π·Π½ΠΎΠ΅ ΠΏΡΠΎΡΡΡΠ°Π½ΡΡΠ²ΠΎ Π² ΡΠ»ΡΡΠ°Π΅ Π²Π½Π΅ΡΠ΅Π½ΠΈΡ ΠΌΠ°Π»Π΅Π½ΡΠΊΠΈΡ ΠΏΠΎΠΏΡΠ°Π²ΠΎΠΊ Π² ΡΠΈΠΏΠΎΠ²ΠΎΠΉ ΠΏΡΠΎΠ΅ΠΊΡ.
ΠΠ°ΠΆΠ½ΡΠΉ ΠΌΠΎΠΌΠ΅Π½Ρ. ΠΡΡΡΠ΅ Π²ΡΠ΅Π³ΠΎ Π΅ΡΠ»ΠΈ Π²ΡΠ΅ ΡΠ°ΡΡΠΈ ΠΊΠΎΠΌΠΌΡΠ½ΠΈΠΊΠ°ΡΠΈΠΎΠ½Π½ΠΎΠΉ ΡΠΈΡΡΠ΅ΠΌΡ Π±ΡΠ΄ΡΡ ΡΠ²Π΅Π΄Π΅Π½Ρ Π² ΡΠ·Π»Ρ, ΡΠ°ΠΊ ΠΊΠ°ΠΊ ΡΡΠΎ Π΄Π°ΡΡ Π²ΠΎΠ·ΠΌΠΎΠΆΠ½ΠΎΡΡΡ Π·Π°ΠΌΠ΅ΡΠ½ΠΎ ΡΠ½ΠΈΠ·ΠΈΡΡ ΡΠ°ΡΡ ΠΎΠ΄Ρ ΠΈ ΠΈΠ·Π±Π°Π²ΠΈΡΡΡΡ ΠΎΡ ΡΡΡΠ°Π½ΠΎΠ²ΠΊΠΈ Π΄Π΅ΡΠ°Π»Π΅ΠΉ, ΠΊΠΎΡΠΎΡΡΠ΅ Π½Π΅ Π½ΡΠΆΠ½Ρ. ΠΠ°ΠΏΡΠΈΠΌΠ΅Ρ, Π²Π°Π½Π½Π°Ρ ΠΊΠΎΠΌΠ½Π°ΡΠ° Ρ ΠΊΡΡ Π½Π΅ΠΉ Π΄ΠΎΠ»ΠΆΠ½Ρ ΠΈΠΌΠ΅ΡΡ ΡΠΌΠ΅ΠΆΠ½ΠΎΠ΅ ΡΠΎΠ²ΠΌΠ΅ΡΠ΅Π½ΠΈΠ΅, ΠΊΠΎΡΠΎΡΠΎΠ΅ ΠΏΠΎΠ·Π²ΠΎΠ»ΠΈΡ Π½Π΅ ΠΏΡΠΎΠΊΠ»Π°Π΄ΡΠ²Π°ΡΡ Π΄ΠΎΠΏΠΎΠ»Π½ΠΈΡΠ΅Π»ΡΠ½ΡΠΉ ΡΡΡΠ±ΠΎΠΏΡΠΎΠ²ΠΎΠ΄.

ΠΡΠ°Π½ΡΡ ΡΡΠ°ΠΏΠ° ΠΏΡΠΎΠ΅ΠΊΡΠΈΡΠΎΠ²Π°Π½ΠΈΡ
ΠΡΠ»ΠΈ Π²Ρ ΡΠ΅ΡΠΈΠ»ΠΈ Π²ΡΠ±ΡΠ°ΡΡ Π΄ΠΎΠΌ Ρ ΡΠ΅ΡΡΠ°ΡΠΎΠΉ, ΡΠΎ Π² ΡΠ°ΠΊΠΎΠΌ ΡΠ»ΡΡΠ°Π΅ ΠΎΡΠ΅Π½Ρ Π²Π°ΠΆΠ½ΠΎΠ΅ ΡΠ΄Π΅Π»ΠΈΡΡ Π΄ΠΎΠ»ΠΆΠ½ΠΎΠ΅ Π²Π½ΠΈΠΌΠ°Π½ΠΈΠ΅ ΠΊΠΎΠΌΠΌΡΠ½ΠΈΠΊΠ°ΡΠΈΠΎΠ½Π½ΡΠΌ ΡΠΈΡΡΠ΅ΠΌΠ°ΠΌ. ΠΠΎΡΠΊΠΎΠ»ΡΠΊΡ ΠΌΠΎΠ½ΡΠ°ΠΆ Π΄Π»ΠΈΠ½Π½ΡΡ ΡΡΡΠ± ΠΎΠ±ΡΠ·Π°ΡΠ΅Π»ΡΠ½ΠΎ ΠΏΡΠ΅Π΄ΠΏΠΎΠ»Π°Π³Π°Π΅Ρ Π½Π°Π»ΠΈΡΠΈΠ΅ ΠΎΠ³ΡΠΎΠΌΠ½ΠΎΠ³ΠΎ ΠΊΠΎΠ»ΠΈΡΠ΅ΡΡΠ²Π° ΡΠ°Π·Π»ΠΈΡΠ½ΡΡ ΡΠΎΠ΅Π΄ΠΈΠ½Π΅Π½ΠΈΠΉ, Π»ΡΡΡΠ΅ Π²ΡΠ΅Π³ΠΎ, Π΅ΡΠ»ΠΈ Π²Π°ΠΌ ΡΠ΄Π°ΡΡΡΡ ΡΠ²Π΅ΡΡΠΈ ΠΊ ΠΌΠΈΠ½ΠΈΠΌΡΠΌΡ Π½Π° ΠΏΠ΅ΡΠ²ΠΎΠ½Π°ΡΠ°Π»ΡΠ½ΠΎΠΌ ΡΡΠ°ΠΏΠ΅ Π΄Π»ΠΈΠ½Ρ Π²Π°ΡΠ΅Π³ΠΎ ΡΡΡΠ±ΠΎΠΏΡΠΎΠ²ΠΎΠ΄Π°. Π’Π°ΠΊΠΈΠΌ ΠΎΠ±ΡΠ°Π·ΠΎΠΌ ΡΠ΄Π°ΡΡΡΡ ΠΌΠΈΠ½ΠΈΠΌΠΈΠ·ΠΈΡΠΎΠ²Π°ΡΡ ΡΠΈΡΠΊΠΈ ΠΎΠ±ΡΠ°Π·ΠΎΠ²Π°Π½ΠΈΡ ΠΏΡΠΎΡΠ΅ΡΠ΅ΠΊ.

Π£ ΠΊΠ°Π½Π°Π»ΠΈΠ·Π°ΡΠΈΠΎΠ½Π½ΠΎΠΉ ΡΠΈΡΡΠ΅ΠΌΡ ΠΎΠ±ΡΠ·Π°ΡΠ΅Π»ΡΠ½ΠΎ Π΄ΠΎΠ»ΠΆΠ΅Π½ Π±ΡΡΡ Ρ ΠΎΡΠΎΡΠ΅ΠΉ ΠΎΡΡΠΎΠΊ Π²ΠΎΠ΄Ρ. Π Π°ΡΡΡΠΈΡΡΠ²Π°Π΅ΡΡΡ ΡΠ°ΠΊΠΈΠΌ ΠΎΠ±ΡΠ°Π·ΠΎΠΌ, ΡΡΠΎΠ±Ρ ΠΌΠΎΠ³Π»Π° ΠΏΡΠΈΠ½ΠΈΠΌΠ°ΡΡ Π΅ΠΆΠ΅Π΄Π½Π΅Π²Π½ΠΎ ΠΎΠ±ΡΠ΅ΠΌ ΠΆΠΈΠ΄ΠΊΠΎΡΡΠΈ, Π΅ΡΠ»ΠΈ Π² Π·Π΄Π°Π½ΠΈΠΈ Π² ΠΎΠ΄Π½ΠΎ Π²ΡΠ΅ΠΌΡ ΡΠ°Π±ΠΎΡΠ°Π΅Ρ ΠΌΠΎΡΠ½Π°Ρ ΡΡΠΈΡΠ°Π»ΡΠ½Π°Ρ ΠΌΠ°ΡΠΈΠ½Π°, Π±ΡΡΠΎΠ²Π°Ρ ΡΠ΅Ρ Π½ΠΈΠΊΠ° Π²ΡΠΎΠ΄Π΅ ΠΏΠΎΡΡΠ΄ΠΎΠΌΠΎΠ΅ΡΠ½ΠΎΠΉ ΠΌΠ°ΡΠΈΠ½Ρ ΠΈ ΠΈΡΠΏΠΎΠ»ΡΠ·ΡΠ΅ΡΡΡ Π²Π°Π½Π½Π°Ρ ΠΊΠΎΠΌΠ½Π°ΡΠ°. ΠΠ°Π½Π½ΡΠΉ ΠΌΠΎΠΌΠ΅Π½Ρ Π±ΡΠ΄Π΅Ρ ΠΏΡΠ΅ΠΈΠΌΡΡΠ΅ΡΡΠ²Π΅Π½Π½ΠΎ Π·Π°Π²ΠΈΡΠ΅ΡΡ ΠΎΡ ΡΠΈΡΠ»Π° ΠΆΠΈΠ»ΡΡΠΎΠ² Π² Π²Π°ΡΠ΅ΠΌ Π΄ΠΎΠΌΠ΅ ΠΈ ΡΠΎΠΎΡΠ²Π΅ΡΡΡΠ²Π΅Π½Π½ΠΎ ΠΈΡ ΠΏΠΎΡΡΠ΅Π±Π½ΠΎΡΡΠ΅ΠΉ Π² Π²ΠΎΠ΄Π΅.

Π Π°ΡΡΠΌΠ°ΡΡΠΈΠ²Π°Ρ ΠΊΠ°ΡΠΊΠ°ΡΠ½ΡΠ΅ Π΄ΠΎΠΌΠ° Π²Ρ Π΄ΠΎΠ»ΠΆΠ½Ρ ΠΏΠΎΠ½ΠΈΠΌΠ°ΡΡ, ΡΡΠΎ ΠΏΡΠΈ ΠΏΡΠΈΠ²ΡΠ·ΠΊΠ΅ Π»ΡΠ±ΠΎΠ³ΠΎ ΠΆΠΈΠ»ΠΎΠ³ΠΎ ΠΏΠΎΠΌΠ΅ΡΠ΅Π½ΠΈΡ ΠΊ ΠΊΠΎΠΌΠΌΡΠ½ΠΈΠΊΠ°ΡΠΈΠΎΠ½Π½ΡΠΌ ΡΠΈΡΡΠ΅ΠΌΠ°ΠΌ Π²Π°ΠΆΠ½ΠΎ ΡΡΠΈΡΡΠ²Π°ΡΡ Π²ΡΠ΅ Π½ΠΎΡΠΌΡ ΡΠ°Π½ΠΈΡΠ°ΡΠ½ΠΎ-Π³ΠΈΠ³ΠΈΠ΅Π½ΠΈΡΠ΅ΡΠΊΠΎΠ³ΠΎ Ρ Π°ΡΠ°ΠΊΡΠ΅ΡΠ°.

Π ΠΎΡΠ½ΠΎΠ²Π½ΠΎΠΌ, Π½Π° ΠΏΠ΅ΡΠ΅ΡΠ°Π±ΠΎΡΠΊΡ Π²ΡΠ΅ ΡΡΠΎΠΊΠΈ ΠΎΡΡ ΠΎΠ΄ΡΡ ΡΠ΅Π³ΠΎΠ΄Π½Ρ Π² Π΅ΡΡΠ΅ΡΡΠ²Π΅Π½Π½ΠΎΠΌ ΡΠ΅ΠΆΠΈΠΌΠ΅. ΠΡ ΠΎΡΠ²ΠΎΠ΄ Π΄ΠΎΠ»ΠΆΠ΅Π½ ΠΏΡΠΎΠΈΠ·Π²ΠΎΠ΄ΠΈΡΡΡΡ ΡΠΎΠ»ΡΠΊΠΎ Π² ΡΠΏΠ΅ΡΠΈΠ°Π»ΡΠ½ΠΎ ΠΏΡΠ΅Π΄Π½Π°Π·Π½Π°ΡΠ΅Π½Π½ΠΎΠ΅ ΠΌΠ΅ΡΡΠΎ ΠΊΠ°ΠΊ ΡΠ°Π· Π΄Π»Ρ ΡΡΠΈΡ ΡΠ΅Π»Π΅ΠΉ. ΠΡ ΡΠ°Π½ΠΈΡΠ°ΡΠ½ΠΎΠΉ ΡΠ»ΡΠΆΠ±Ρ ΠΏΡΠΈΠ΄Π΅ΡΡΡ ΠΏΠΎΠ»ΡΡΠΈΡΡ ΠΎΡΠΈΡΠΈΠ°Π»ΡΠ½ΠΎ ΡΠΏΠ΅ΡΠΈΠ°Π»ΡΠ½ΠΎΠ΅ ΡΠ°Π·ΡΠ΅ΡΠ΅Π½ΠΈΠ΅, ΠΏΠΎΡΠ»Π΅ ΡΠ΅Π³ΠΎ ΡΠ°ΠΌΠΎΡΡΠΎΡΡΠ΅Π»ΡΠ½ΠΎ Π·Π°Π½ΡΡΡΡΡ ΠΎΡΠ³Π°Π½ΠΈΠ·Π°ΡΠΈΠ΅ΠΉ ΡΠΌΡ Π΄Π»Ρ Π±ΡΠ΄ΡΡΠΈΡ ΡΡΠΎΠΊΠΎΠ².

ΠΠ°ΠΏΡΠ΅ΡΠ°Π΅ΡΡΡ ΠΏΡΠΈΠΌΠ΅Π½ΡΡΡ Π²ΠΎΠ΄ΠΎΠ΅ΠΌΡ ΠΈΠ»ΠΈ Π΄Π°ΠΆΠ΅ Π»ΠΈΠ²Π½Π΅Π²ΠΊΡ Π΄Π»Ρ ΡΠ²ΠΎΠ΅Π³ΠΎ ΠΎΡΠ²ΠΎΠ΄Π° ΡΡΠΎΠΊΠΎΠ². ΠΠ° Π΄Π°Π½Π½ΡΠ΅ Π΄Π΅ΠΉΡΡΠ²ΠΈΡ ΡΠ°Π½ΠΈΡΠ°ΡΠ½Π°Ρ ΡΠ»ΡΠΆΠ±Π° ΠΌΠΎΠΆΠ΅Ρ Π²ΡΠ½Π΅ΡΡΠΈ Π½Π°ΠΊΠ°Π·Π°Π½ΠΈΠ΅ Π² Π²ΠΈΠ΄Π΅ ΡΡΡΠ°ΡΠ°, ΠΏΠΎΡΠΊΠΎΠ»ΡΠΊΡ ΡΡΠΎ Π²Π»Π΅ΡΠ΅Ρ Π·Π°Π³ΡΡΠ·Π½Π΅Π½ΠΈΠ΅ ΠΎΠΊΡΡΠΆΠ°ΡΡΠΈΡ Π³ΡΡΠ½ΡΠΎΠ²ΡΡ Π²ΠΎΠ΄, Π° ΡΠ°ΠΊΠΆΠ΅ Π² ΡΠ΅Π»ΠΎΠΌ ΠΏΡΠΈΡΠΎΠ΄Ρ.

ΠΠΎΡΡΠΎΠΌΡ ΠΏΡΠΈ ΠΎΡΠ³Π°Π½ΠΈΠ·Π°ΡΠΈΠΈ Π²Π°ΡΠ΅ΠΉ ΠΊΠ°Π½Π°Π»ΠΈΠ·Π°ΡΠΈΠΎΠ½Π½ΠΎΠΉ ΡΠΈΡΡΠ΅ΠΌΡ Π½Π΅ΠΎΠ±Ρ ΠΎΠ΄ΠΈΠΌΠΎ Π²Π½ΠΈΠΌΠ°ΡΠ΅Π»ΡΠ½ΠΎ ΠΈΠ·ΡΡΠΈΡΡ Π²ΡΠ΅ ΠΏΡΠ°Π²ΠΈΠ»Π°, ΠΊΠΎΡΠΎΡΡΠ΅ ΠΎΡΠ½ΠΎΡΡΡΡΡ ΠΊ Π΄Π°Π½Π½ΠΎΠΌΡ ΠΏΡΠΎΡΠ΅ΡΡΡ.

ΠΠ½ΡΠ΅ΡΠ΅ΡΠ½ΡΠ΅ ΠΈΠ΄Π΅ΠΈ
Π Π°ΡΡΠΌΠ°ΡΡΠΈΠ²Π°Ρ ΡΠΎΡΠΎ ΠΎΠ΄Π½ΠΎΡΡΠ°ΠΆΠ½ΡΡ Π΄ΠΎΠΌΠΎΠ² Π±ΡΠ²Π°Π΅Ρ ΠΎΡΠ΅Π½Ρ ΡΠ»ΠΎΠΆΠ½ΠΎ ΠΎΠΏΡΠ΅Π΄Π΅Π»ΠΈΡΡΡΡ, ΠΊΠ°ΠΊΠΎΠΉ ΠΈΠ· ΠΏΡΠΎΠ΅ΠΊΡΠΎΠ² Π΄Π΅ΠΉΡΡΠ²ΠΈΡΠ΅Π»ΡΠ½ΠΎ ΡΠ΄Π°ΡΠ½Π΅Π΅ ΠΎΡΡΠ°Π»ΡΠ½ΡΡ .

ΠΠΏΡΠΈΠΌΠ°Π»ΡΠ½ΠΎΠ΅ ΡΠ°ΡΠΏΠΎΠ»ΠΎΠΆΠ΅Π½ΠΈΠ΅ Π·Π°ΠΊΠ»ΡΡΠ°Π΅ΡΡΡ Π½Π° ΡΠ΅Π³ΠΎΠ΄Π½ΡΡΠ½ΠΈΠΉ Π΄Π΅Π½Ρ Π² ΡΠΎΠΌ, ΡΡΠΎ Π²Π΅ΡΡΠ° Π½Π° Π²Π°ΡΠ΅ΠΌ Π·Π°Π³ΠΎΡΠΎΠ΄Π½ΠΎΠΌ ΡΡΠ°ΡΡΠΊΠ΅ ΠΏΡΠ΅ΠΈΠΌΡΡΠ΅ΡΡΠ²Π΅Π½Π½ΠΎ Π΄ΠΎΠ»ΠΆΠ½Ρ Π±ΡΡΡ Π½Π°ΠΏΡΠ°Π²Π»Π΅Π½Ρ ΠΏΡΡΠΌΠΎ Π² ΡΠΊΠ°ΡΡ ΠΊΡΡΡΠΈ. Π’Π°ΠΊΠΈΠΌ ΠΎΠ±ΡΠ°Π·ΠΎΠΌ ΠΌΠΎΠΆΠ½ΠΎ ΡΠΌΠ΅Π½ΡΡΠΈΡΡ ΡΠΎΠΏΡΠΎΡΠΈΠ²Π»Π΅Π½ΠΈΠ΅, Π²Π°ΠΆΠ½ΡΡ Π²Π΅ΡΡΠΎΠ²ΡΡ Π½Π°Π³ΡΡΠ·ΠΊΡ Π²ΠΎ Π²ΡΠ΅ΠΌΡ Π½Π΅ΠΏΠΎΠ³ΠΎΠ΄Ρ ΠΈ ΡΠ°Π·Π»ΠΈΡΠ½ΡΡ ΡΠΈΠ»ΡΠ½ΡΡ ΠΏΠΎΡΡΠ²ΠΎΠ². ΠΡΠΎΠΌΠ΅ ΡΠΎΠ³ΠΎ, ΠΎΡΠ°Π΄ΠΊΠΈ Π² ΡΠ°ΠΊΠΎΠΌ ΡΠ»ΡΡΠ°Π΅ Π½Π΅ Π±ΡΠ΄ΡΡ Π½ΠΈΠΊΠΎΠ³Π΄Π° ΠΏΠΎΠΏΠ°Π΄Π°ΡΡ Π²ΠΎ ΡΡΠΎΠ½ΡΠΎΠ½Ρ.

Π Π΅ΡΠΈΠ² ΠΏΠΎΡΡΡΠΎΠΈΡΡ ΠΎΠ΄Π½ΠΎΡΡΠ°ΠΆΠ½ΡΠΉ Π΄ΠΎΠΌ Ρ Π³Π°ΡΠ°ΠΆΠΎΠΌ Π² ΠΌΠ΅ΡΡΠ΅, Π΄Π»Ρ ΠΊΠΎΡΠΎΡΠΎΠ³ΠΎ Ρ Π°ΡΠ°ΠΊΡΠ΅ΡΠ½Ρ ΡΠ°ΡΡΡΠ΅ ΠΈΠ·ΠΌΠ΅Π½Π΅Π½ΠΈΡ Π² Π½Π°ΠΏΡΠ°Π²Π»Π΅Π½ΠΈΠΈ Π²Π΅ΡΡΠΎΠ², ΡΠΎ Π»ΡΡΡΠ΅ Π²ΡΠ΅Π³ΠΎ ΠΈΡΠΏΠΎΠ»ΡΠ·ΠΎΠ²Π°ΡΡ ΠΊΡΡΡΡ ΠΎΠ΄Π½ΠΎΠ³ΠΎ ΠΈΠ· Π΄Π²ΡΡ ΡΠΈΠΏΠΎΠ²: Π²Π°Π»ΡΠΌΠΎΠ²ΠΎΠ³ΠΎ, ΠΏΠΎΠ»ΡΠ²Π°Π»ΡΠΌΠΎΠ²ΠΎΠ³ΠΎ, ΠΏΠΎΡΠΊΠΎΠ»ΡΠΊΡ ΠΏΡΠΈ Π΄Π°Π½Π½ΡΡ ΠΊΠΎΠ½ΡΡΡΡΠΊΡΠΈΡΡ Π΅ΡΡΡ ΠΎΡΠ»ΠΈΡΠ½Π°Ρ Π²ΠΎΠ·ΠΌΠΎΠΆΠ½ΠΎΡΡΡ ΡΠ°ΠΌΠΎΡΡΠΎΡΡΠ΅Π»ΡΠ½ΠΎ ΡΡΠΎΡΠΌΠΈΡΠΎΠ²Π°ΡΡ Π΅ΡΠ΅ Π΄ΠΎΠΏΠΎΠ»Π½ΠΈΡΠ΅Π»ΡΠ½ΡΠ΅ ΠΏΠ»ΠΎΡΠΊΠΎΡΡΠΈ ΠΈΠ»ΠΈ Π½Π°Π²Π΅ΡΡ, ΠΊΠΎΡΠΎΡΡΠ΅ Π±ΡΠ΄ΡΡ Π·Π°ΡΠΈΡΠ°ΡΡ ΡΡΠ΅Π½Ρ ΠΎΡ Π½Π΅ΠΏΡΠΈΡΡΠ½ΠΎΠ³ΠΎ Π²ΠΎΠ·Π΄Π΅ΠΉΡΡΠ²ΠΈΡ ΡΠ°ΡΡΡΡ ΠΎΡΠ°Π΄ΠΊΠΎΠ².
ΠΠΎΠΌΠ½ΠΈΡΠ΅, ΡΡΠΎ Π΅ΡΡΡ ΠΌΠ½ΠΎΠΆΠ΅ΡΡΠ²ΠΎ Π½ΡΠ°Π½ΡΠΎΠ² Π»Π°Π½Π΄ΡΠ°ΡΡΠ° Π²ΡΠ±ΡΠ°Π½Π½ΠΎΠΉ ΠΌΠ΅ΡΡΠ½ΠΎΡΡΠΈ. Π Π½ΠΈ Π·Π° ΡΡΠΎ Π½Π΅ ΡΠ°ΡΠΏΠΎΠ»Π°Π³Π°ΠΉΡΠ΅ Π΄ΠΎΠΌ Π² ΡΠ°ΠΌΠΎΠΉ Π½ΠΈΠ·ΠΊΠΎΠΉ ΠΈΠ»ΠΈ ΠΌΠ°ΠΊΡΠΈΠΌΠ°Π»ΡΠ½ΠΎ Π²ΡΡΠΎΠΊΠΎΠΉ Π·ΠΎΠ½Π΅ ΠΎΡΠ²Π΅Π΄Π΅Π½Π½ΠΎΠ³ΠΎ ΡΡΠ°ΡΡΠΊΠ°.

Π‘ΡΡΠ΅ΡΡΠ²ΡΠ΅Ρ ΠΎΠ³ΡΠΎΠΌΠ½ΠΎΠ΅ ΠΊΠΎΠ»ΠΈΡΠ΅ΡΡΠ²ΠΎ ΡΠ°ΠΌΡΡ ΡΠ°Π·Π»ΠΈΡΠ½ΡΡ Π²Π°ΡΠΈΠ°Π½ΡΠΎΠ² Π΄Π»Ρ Π±ΡΡΡΡΠΎΠ³ΠΎ ΡΠΎΠ·Π΄Π°Π½ΠΈΡ ΠΊΠΎΠΌΡΠΎΡΡΠ½ΠΎΠ³ΠΎ, Π½ΠΎ ΠΏΡΠΈ ΡΡΠΎΠΌ ΠΈ ΡΠ΄ΠΎΠ±Π½ΠΎΠ³ΠΎ ΠΏΠ»Π°Π½Π° ΠΏΠΎΠΌΠ΅ΡΠ΅Π½ΠΈΠΉ Π΄Π»Ρ Π±ΡΠ΄ΡΡΠ΅ΠΉ Π·Π°ΡΡΡΠΎΠΉΠΊΠΈ ΠΏΠΎΠ½ΡΠ°Π²ΠΈΠ²ΡΠ΅Π³ΠΎΡΡ Π·Π°Π³ΠΎΡΠΎΠ΄Π½ΠΎΠ³ΠΎ ΡΡΠ°ΡΡΠΊΠ°. ΠΡΠ±ΠΎΡ ΠΎΠ³ΡΠ°Π½ΠΈΡΠ΅Π½ Π»ΠΈΡΡ Π²Π°ΡΠΈΠΌΠΈ ΡΠΈΠ½Π°Π½ΡΠΎΠ²ΡΠΌΠΈ Π²ΠΎΠ·ΠΌΠΎΠΆΠ½ΠΎΡΡΡΠΌΠΈ ΠΈ ΡΠ°Π½ΡΠ°Π·ΠΈΠ΅ΠΉ.

Π€ΠΎΡΠΎ ΠΎΠ΄Π½ΠΎΡΡΠ°ΠΆΠ½ΡΡ Π΄ΠΎΠΌΠΎΠ²




























ΠΠ°ΠΌ ΠΏΠΎΠ½ΡΠ°Π²ΠΈΠ»Π°ΡΡ ΡΡΠ°ΡΡΡ? ΠΠΎΠ΄Π΅Π»ΠΈΡΠ΅ΡΡ π Β
indizajn.ru
Π³ΠΎΡΠΎΠ²ΡΠ΅ ΠΈ ΡΠΈΠΏΠΎΠ²ΡΠ΅. ΠΠ°ΡΠ°Π»ΠΎΠ³ ΡΠΎΠ΄Π΅ΡΠΆΠΈΡ ΠΏΠ»Π°Π½ΠΈΡΠΎΠ²ΠΊΠΈ, ΠΏΠ»Π°Π½Ρ ΠΈ ΡΠ΅ΡΡΠ΅ΠΆΠΈ
ΠΡΠ°ΡΠΈΠ²ΡΠ΅ ΠΏΡΠΎΠ΅ΠΊΡΡ ΠΎΠ΄Π½ΠΎΡΡΠ°ΠΆΠ½ΡΡ Π΄ΠΎΠΌΠΎΠ²: ΠΊΠ°ΡΠ°Π»ΠΎΠ³, ΡΠΎΡΠΎΠΡΡ ΠΈΡΠ΅ΠΊΡΡΡΠ½ΡΠ΅ ΠΏΡΠΎΠ΅ΠΊΡΡ ΠΎΠ΄Π½ΠΎΡΡΠ°ΠΆΠ½ΡΡ Π΄ΠΎΠΌΠΎΠ² β ΡΠ°ΠΌΡΠ΅ ΠΏΠΎΠΏΡΠ»ΡΡΠ½ΡΠ΅ Π½Π° Π½Π°ΡΠ΅ΠΌ ΡΠ°ΠΉΡΠ΅ Π² 2018 Π³ΠΎΠ΄Ρ. ΠΠ»Π°Π½ΠΈΡΠΎΠ²ΠΊΠΈ ΠΏΡΠΎΠ΅ΠΊΡΠΎΠ² ΠΎΠ΄Π½ΠΎΡΡΠ°ΠΆΠ½ΡΡ Π΄ΠΎΠΌΠΎΠ² ΠΏΡΠΎΠ΄ΡΠΌΠ°Π½Ρ Π΄ΠΎ ΠΌΠ΅Π»ΠΎΡΠ΅ΠΉ, ΠΏΠ»Π°Π½Ρ ΠΎΠ΄Π½ΠΎΡΡΠ°ΠΆΠ½ΡΡ Π΄ΠΎΠΌΠΎΠ² Π²ΠΊΠ»ΡΡΠ°ΡΡ ΡΠ΅ΡΠ΅Π½ΠΈΡ, ΠΊΠΎΡΠΎΡΡΠ΅ ΠΏΠΎΠ·Π²ΠΎΠ»ΡΡΡ Π³ΡΠ°ΠΌΠΎΡΠ½ΠΎ ΡΠΊΠΎΠ½ΠΎΠΌΠΈΡΡ ΠΈ Π²ΠΎ Π²ΡΠ΅ΠΌΡ ΡΡΡΠΎΠΈΡΠ΅Π»ΡΡΡΠ²Π°, ΠΈ Π² ΠΏΡΠΎΡΠ΅ΡΡΠ΅ ΡΠΊΡΠΏΠ»ΡΠ°ΡΠ°ΡΠΈΠΈ.
ΠΠΈΠ·Π½Π΅Π½Π½ΡΠΉ ΠΎΠΏΡΡ Π³ΠΎΠ²ΠΎΡΠΈΡ ΠΎ ΡΠΎΠΌ, ΡΡΠΎ ΠΈΠΌΠ΅Π½Π½ΠΎ ΠΎΠ΄Π½ΠΎΡΡΠ°ΠΆΠ½ΡΠ΅ ΠΆΠΈΠ»ΡΠ΅ Π΄ΠΎΠΌΠ° Π‘ΠΠΠ«Π ΠΠΠΠ€ΠΠ Π’ΠΠ«Π! Π§Π°ΡΡΠΎΠ΅ ΠΈΡΠΏΠΎΠ»ΡΠ·ΠΎΠ²Π°Π½ΠΈΠ΅ Π»Π΅ΡΡΠ½ΠΈΡΡ Ρ ΡΡΠ°ΠΆΠ° Π½Π° ΡΡΠ°ΠΆ ΡΡΠΎΠΌΠΈΡΠ΅Π»ΡΠ½ΠΎ ΠΈ Π½Π΅ ΠΏΡΠ°ΠΊΡΠΈΡΠ½ΠΎ.Β ΠΠΎΠ»Π΅Π΅ ΡΠΎΠ³ΠΎ Π΄Π»Ρ ΡΠ΅ΠΌΠ΅ΠΉ Ρ ΠΌΠ°Π»Π΅Π½ΡΠΊΠΈΠΌΠΈ Π΄Π΅ΡΡΠΌΠΈ ΠΈ ΠΏΠΎΠΆΠΈΠ»ΡΡ
Π»ΡΠ΄Π΅ΠΉ ΡΡΠΎ Π»ΡΡΡΠΈΠΉ Π²Π°ΡΠΈΠ°Π½Ρ, ΠΏΠΎΡΠΊΠΎΠ»ΡΠΊΡ Π»Π΅ΡΡΠ½ΠΈΡΠ° ΠΌΠΎΠΆΠ΅Ρ Π±ΡΡΡ ΠΈ ΠΎΠΏΠ°ΡΠ½Π°.Β ΠΠ»Π°Π½Ρ ΠΏΡΠΎΠ΅ΠΊΡΠΎΠ² ΠΎΠ΄Π½ΠΎΡΡΠ°ΠΆΠ½ΡΡ
Π΄ΠΎΠΌΠΎΠΌ ΠΏΡΠ΅Π΄ΠΏΠΎΠ»Π°Π³Π°ΡΡ ΡΠ΄ΠΎΠ±Π½ΠΎΠ΅ ΠΏΠΎΠ»ΡΠ·ΠΎΠ²Π°Π½ΠΈΠ΅ ΠΏΠΎΠΌΠ΅ΡΠ΅Π½ΠΈΠ΅ΠΌ. ΠΡΠΎΠΌΠ΅ ΡΠΎΠ³ΠΎ, Π² ΠΎΠ΄Π½ΠΎΡΡΠ°ΠΆΠ½ΠΎΠΌ Π΄ΠΎΠΌΠ΅ Π²ΡΠ΅ ΠΏΠΎΠ΄ ΡΡΠΊΠΎΠΉ, ΠΈ Π²ΡΠ΅ ΠΏΠΎΠΌΠ΅ΡΠ΅Π½ΠΈΡ, ΠΈ Π²ΡΡ
ΠΎΠ΄ Π½Π° ΡΠ΅ΡΡΠ°ΡΡ ΡΡΠ΄ΠΎΠΌ.
Π₯ΠΎΡΡ ΠΎΠ΄Π½ΠΎΡΡΠ°ΠΆΠ½ΡΠ΅ Π΄ΠΎΠΌΠ° ΠΎΠ±Π»Π°Π΄Π°ΡΡ ΡΡΠ΄ΠΎΠΌ ΠΏΡΠ΅ΠΈΠΌΡΡΠ΅ΡΡΠ², Π½Π΅ ΡΡΠΎΠΈΡ Π·Π°Π±ΡΠ²Π°ΡΡ ΠΎ ΡΠΎΠΌ, ΡΡΠΎ ΠΏΠ»Π°Π½ΠΈΡΠΎΠ²ΠΊΠ° ΠΏΡΠΎΠ΅ΠΊΡΠΎΠ² ΠΎΠ΄Π½ΠΎΡΡΠ°ΠΆΠ½ΡΡ
Π΄ΠΎΠΌΠΎΠ² ΠΈΠΌΠ΅Π΅Ρ ΡΡΠ΄ ΠΎΡΠΎΠ±Π΅Π½Π½ΠΎΡΡΠ΅ΠΉ:
- Π‘ΡΡΠΎΠΈΡΠ΅Π»ΡΡΡΠ²ΠΎ ΠΌΠ°Π½ΡΠ°ΡΠ΄Π½ΠΎΠ³ΠΎ Π΄ΠΎΠΌΠ° ΠΈ Π΄Π²ΡΡ ΡΡΠ°ΠΆΠ½ΠΎΠ³ΠΎ Π΄ΠΎΠΌΠ° ΠΏΡΠΈ ΠΎΠ΄ΠΈΠ½Π°ΠΊΠΎΠ²ΠΎΠΉ ΠΎΠ±ΡΠ΅ΠΉ ΠΏΠ»ΠΎΡΠ°Π΄ΠΈ ΠΎΠ±Ρ ΠΎΠ΄ΠΈΡΡΡ Π΄Π΅ΡΠ΅Π²Π»Π΅ Π²ΠΎΠ·Π²Π΅Π΄Π΅Π½ΠΈΡ ΠΎΠ΄Π½ΠΎΡΡΠ°ΠΆΠ½ΠΎΠ³ΠΎ ΡΡΡΠΎΠ΅Π½ΠΈΡ. ΠΡΠΎ ΠΎΠ±ΡΡΡΠ½ΡΠ΅ΡΡΡ Π±ΠΎΠ»ΡΡΠΈΠΌΠΈ ΠΏΠ»ΠΎΡΠ°Π΄ΡΠΌΠΈΒ ΠΊΡΠΎΠ²Π»ΠΈ ΠΈ ΡΡΠ½Π΄Π°ΠΌΠ΅Π½ΡΠ° ΠΎΠ΄Π½ΠΎΡΡΠ°ΠΆΠ½ΠΎΠ³ΠΎ Π΄ΠΎΠΌΠ°, ΡΠΎΠΎΡΡΠΆΠ΅Π½ΠΈΠ΅ ΠΊΠΎΡΠΎΡΡΡ ΡΡΠ΅Π±ΡΠ΅Ρ Π±ΠΎΠ»ΡΡΠΈΡ Π·Π°ΡΡΠ°Ρ.
- Π ΠΎΠ΄Π½ΠΎΡΡΠ°ΠΆΠ½ΠΎΠΌ Π΄ΠΎΠΌΠ΅, ΠΏΠ»ΠΎΡΠ°Π΄Ρ ΠΊΠΎΡΠΎΡΠΎΠ³ΠΎ Π±ΠΎΠ»Π΅Π΅ 200 ΠΌ2, ΠΏΠ»Π°Π½ΠΈΡΠΎΠ²ΠΊΠ° Π±ΡΠ΄Π΅Ρ ΠΌΠ΅Π½Π΅Π΅ ΠΊΠΎΠΌΡΠΎΡΡΠ½ΠΎΠΉ, ΠΏΠΎΡΠΊΠΎΠ»ΡΠΊΡ ΡΠΎΠ·Π΄Π°Π½ΠΈΠ΅ Π½Π΅ΡΠΊΠΎΠ»ΡΠΊΠΈΡ ΠΊΠΎΡΠΈΠ΄ΠΎΡΠΎΠ² ΠΏΡΠΈΠ²ΠΎΠ΄ΠΈΡ ΠΊ ΠΏΠΎΡΠ΅ΡΠ΅ ΠΎΠ±ΡΠ΅ΠΉ ΠΈΠ΄Π΅ΠΈ Π΄ΠΎΠΌΠ° ΠΈ ΡΠ²ΡΠ·ΠΈ ΠΌΠ΅ΠΆΠ΄Ρ ΠΏΠΎΠΌΠ΅ΡΠ΅Π½ΠΈΡΠΌΠΈ.
- Π‘ΡΡΠΎΠΈΡΠ΅Π»ΡΡΡΠ²ΠΎ ΡΠ°ΠΊΠΎΠ³ΠΎ Π΄ΠΎΠΌΠ° ΠΏΠΎΠ΄ΡΠ°Π·ΡΠΌΠ΅Π²Π°Π΅Ρ ΠΏΡΠΈΠΎΠ±ΡΠ΅ΡΠ΅Π½ΠΈΠ΅ Π±ΠΎΠ»ΡΡΠΎΠ³ΠΎ ΡΡΠ°ΡΡΠΊΠ°, ΡΡΠΎ ΡΡΠ΅Π±ΡΠ΅Ρ Π΄ΠΎΠΏΠΎΠ»Π½ΠΈΡΠ΅Π»ΡΠ½ΡΡ Π·Π°ΡΡΠ°Ρ. ΠΡΠΎΠ±Π΅Π½Π½ΠΎ ΡΡΠΎ ΠΊΠ°ΡΠ°Π΅ΡΡΡ ΠΎΠ΄Π½ΠΎΡΡΠ°ΠΆΠ½ΡΡ Π΄ΠΎΠΌΠΎΠ², Π² ΠΏΡΠΎΠ΅ΠΊΡ ΠΊΠΎΡΠΎΡΠΎΠ³ΠΎ Π²ΠΊΠ»ΡΡΠ΅Π½ Π³Π°ΡΠ°ΠΆ.
- ΠΠΎΡΠΎΠΆΠ΅ ΠΎΠ±Ρ ΠΎΠ΄ΠΈΡΡΡ ΠΈ ΠΎΡΠΎΠΏΠ»Π΅Π½ΠΈΠ΅ ΠΎΠ΄Π½ΠΎΡΡΠ°ΠΆΠ½ΠΎΠ³ΠΎ Π΄ΠΎΠΌΠ°, ΠΏΠΎΡΠΊΠΎΠ»ΡΠΊΡ Π²ΠΏΡΡΡΡΡ ΠΎΡΠ°ΠΏΠ»ΠΈΠ²Π°Π΅ΡΡΡ ΡΠ΅ΡΠ΄Π°ΡΠ½ΠΎΠ΅ ΠΏΠΎΠΌΠ΅ΡΠ΅Π½ΠΈΠ΅. Π ΡΠ»ΡΡΠ°Π΅ Ρ ΠΌΠ°Π½ΡΠ°ΡΠ΄Π½ΡΠΌ ΠΈΠ»ΠΈ Π΄Π²ΡΡ ΡΡΠ°ΠΆΠ½ΡΠΌ Π΄ΠΎΠΌΠΎΠΌ ΠΏΠΎΠ» ΠΏΡΠΎΠ³ΡΠ΅ΡΡΠΉ Π²ΠΎΠ·Π΄ΡΡ ΠΎΠΌ ΠΏΠ΅ΡΠ²ΠΎΠ³ΠΎ ΡΡΠ°ΠΆΠ° ΡΠΌΠ΅Π½ΡΡΠ°Π΅Ρ ΡΡΠ°ΡΡ Π½Π° ΠΎΡΠΎΠΏΠ»Π΅Π½ΠΈΠ΅ Π²Π΅ΡΡ Π½ΠΈΡ ΠΏΠΎΠΌΠ΅ΡΠ΅Π½ΠΈΠΉ.
ΠΡ Π½Π΅ ΡΠΎΠ²Π΅ΡΡΠ΅ΠΌ ΡΠ²ΠΎΠΈΠΌ ΠΊΠ»ΠΈΠ΅Π½ΡΠ°ΠΌ, ΠΊΠΎΡΠΎΡΡΠ΅ Π²ΡΠ±ΡΠ°Π»ΠΈ Π·Π°ΡΡΠ±Π΅ΠΆΠ½ΡΠ΅ ΠΏΡΠΎΠ΅ΠΊΡΡ ΠΎΠ΄Π½ΠΎΡΡΠ°ΠΆΠ½ΡΡ Π΄ΠΎΠΌΠΎΠ², ΠΎΡΠΊΠ°Π·ΡΠ²Π°ΡΡΡΡ ΠΎΡ ΡΠ²ΠΎΠ΅ΠΉ ΠΌΠ΅ΡΡΡ, ΡΠΎΠ»ΡΠΊΠΎ ΠΏΠΎ ΠΏΡΠΈΡΠΈΠ½Π΅ ΡΠΊΠΎΠ½ΠΎΠΌΠΈΠΈ. ΠΡΡΡΠ΅ ΠΎΠ΄ΠΈΠ½ ΡΠ°Π· Π·Π°ΠΏΠ»Π°ΡΠΈΡΡ ΠΈ ΠΆΠΈΡΡ Π² ΠΊΠΎΠΌΡΠΎΡΡΠ½ΠΎΠΌ Π΄ΠΎΠΌΠ΅. ΠΠ½ΠΎΠ³ΠΈΠ΅ ΠΎΠ±Π»Π°Π΄Π°ΡΠ΅Π»ΠΈ Π΄Π²ΡΡ ΡΡΠ°ΠΆΠ½ΡΡ ΠΈ Π΄ΠΎΠΌΠΎΠ² Ρ ΠΌΠ°Π½ΡΠ°ΡΠ΄ΠΎΠΉ Π² ΡΠ²ΠΎΠΈΡ ΠΊΡΠ°ΡΠ½ΠΎΡΠ΅ΡΠΈΠ²ΡΡ ΠΎΡΠ·ΡΠ²Π°Ρ Π³ΠΎΠ²ΠΎΡΡΡ ΠΎ ΡΠΎΠΌ, ΡΡΠΎ Π²ΡΠ΅-ΡΠ°ΠΊΠΈ Ρ ΠΎΡΠ΅Π»ΠΈ Π±Ρ ΠΏΠΎΡΡΡΠΎΠΈΡΡ ΡΠ²ΠΎΠΉ ΡΠ»Π΅Π΄ΡΡΡΠΈΠΉ Π΄ΠΎΠΌ ΠΎΠ΄Π½ΠΎΡΡΠ°ΠΆΠ½ΡΠΌ, ΠΏΠΎΡΠΊΠΎΠ»ΡΠΊΡ ΠΎΠ½ Π½Π°ΠΌΠ½ΠΎΠ³ΠΎ ΠΊΠΎΠΌΡΠΎΡΡΠ½Π΅Π΅ ΠΈ ΡΠ΄ΠΎΠ±Π½Π΅Π΅.
Π ΡΡΠΎΠΌ ΡΠ°Π·Π΄Π΅Π»Π΅ Π²Π°ΡΠ΅ΠΌΡ Π²Π½ΠΈΠΌΠ°Π½ΠΈΡ ΠΏΡΠ΅Π΄Π»Π°Π³Π°Π΅ΡΡΡ ΡΠΈΡΠΎΠΊΠΈΠΉ Π²ΡΠ±ΠΎΡ ΠΏΡΠΎΠ΅ΠΊΡΠΎΠ² ΠΎΠ΄Π½ΠΎΡΡΠ°ΠΆΠ½ΡΡ Π΄ΠΎΠΌΠΎΠ² ΡΠ°ΠΌΠΎΠΉ ΡΠ°Π·Π½ΠΎΠΉ ΠΏΠ»ΠΎΡΠ°Π΄ΠΈ, ΡΠ°ΠΌΡΡ ΡΠ°Π·Π»ΠΈΡΠ½ΡΡ ΡΡΠΈΠ»Π΅ΠΉ, Π΄ΠΈΠ·Π°ΠΉΠ½ΠΎΠ² ΠΈ ΠΏΠ»Π°Π½ΠΈΡΠΎΠ²ΠΎΠΊ. ΠΠΎΠ»Π΅Π΅ ΡΠΎΠ³ΠΎ, ΠΊΠ°ΡΠ°Π»ΠΎΠ³ Z500 ΠΏΠΎΡΡΠΎΡΠ½Π½ΠΎ ΠΏΠΎΠΏΠΎΠ»Π½ΡΠ΅ΡΡΡ Π³ΠΎΡΠΎΠ²ΡΠΌΠΈ ΠΏΡΠΎΠ΅ΠΊΡΠ°ΠΌΠΈ ΠΎΠ΄Π½ΠΎΡΡΠ°ΠΆΠ½ΡΡ Π΄ΠΎΠΌΠΎΠ². ΠΠ°ΡΠ»Π°ΠΆΠ΄Π°ΠΉΡΠ΅ΡΡ ΠΏΡΠΎΡΠΌΠΎΡΡΠΎΠΌ ΠΈ Π²ΡΠ±ΠΈΡΠ°ΠΉΡΠ΅ ΡΠ²ΠΎΠΉ ΠΏΡΠΎΠ΅ΠΊΡ Π·Π°Π³ΠΎΡΠΎΠ΄Π½ΠΎΠ³ΠΎ Π΄ΠΎΠΌΠ°!
ΠΠΎΠΏΠΎΠ»Π½ΠΈΡΠ΅Π»ΡΠ½ΡΠ΅ Π²ΠΎΠ·ΠΌΠΎΠΆΠ½ΠΎΡΡΠΈΠΠ΅ΡΠ΅Π΄ ΡΠ΅ΠΌ ΠΊΠ°ΠΊ ΠΊΡΠΏΠΈΡΡ ΠΏΡΠΎΠ΅ΠΊΡ, ΡΠ΅ΠΊΠΎΠΌΠ΅Π½Π΄ΡΠ΅ΠΌ ΠΎΠ·Π½Π°ΠΊΠΎΠΌΠΈΡΡΡΡ ΠΈ Ρ Π΄ΠΎΠΏΠΎΠ»Π½ΠΈΡΠ΅Π»ΡΠ½ΡΠΌΠΈ Π²ΠΎΠ·ΠΌΠΎΠΆΠ½ΠΎΡΡΡΠΌΠΈ, ΠΊΠΎΡΠΎΡΡΠ΅ ΠΌΡ ΠΌΠΎΠΆΠ΅ΠΌ Π²Π°ΠΌ ΠΏΡΠ΅Π΄ΠΎΡΡΠ°Π²ΠΈΡΡ, Π² ΡΠ°Π·Π΄Π΅Π»Π΅ Β«ΠΠΎΠΏΠΎΠ»Π½Π΅Π½ΠΈΡΒ». ΠΡΠΈ Π΄ΠΎΠΏΠΎΠ»Π½Π΅Π½ΠΈΡ ΠΏΠΎΠ·Π²ΠΎΠ»ΡΡ Π±ΡΡΡΡΠ΅Π΅ ΠΈ ΠΏΡΠΎΡΠ΅ ΠΏΠΎΡΡΡΠΎΠΈΡΡ ΠΎΠ΄Π½ΠΎΡΡΠ°ΠΆΠ½ΡΠ΅ Π΄ΠΎΠΌΠ° ΠΏΠΎΠ΄ ΠΊΠ»ΡΡ. Π¦Π΅Π½Ρ Π½Π° Π²ΡΠ΅ ΡΡΠ»ΡΠ³ΠΈ ΡΠΊΠ°Π·Π°Π½Ρ. ΠΠΎΡ ΡΠ°ΠΌΡΠ΅ ΠΎΡΠ½ΠΎΠ²Π½ΡΠ΅ ΡΡΠ»ΡΠ³ΠΈ:
1. ΠΠΎΠΏΠΎΠ»Π½Π΅Π½ΠΈΠ΅ Β«ΠΠ½Π΅ΡΠ΅Π½ΠΈΠ΅ ΠΈΠ·ΠΌΠ΅Π½Π΅Π½ΠΈΠΉΒ». ΠΡΠ»ΠΈ Π²ΡΠ±ΡΠ°Π½Π½ΡΠΉ ΠΏΡΠΎΠ΅ΠΊΡ ΠΊΠΎΡΡΠ΅Π΄ΠΆΠ° Π½Π΅ ΠΏΠΎΠ»Π½ΠΎΡΡΡΡ ΡΠ΄ΠΎΠ²Π»Π΅ΡΠ²ΠΎΡΡΠ΅Ρ Π²Π°ΡΠΈ ΠΏΠΎΠΆΠ΅Π»Π°Π½ΠΈΡ, ΠΌΡ ΡΠΌΠΎΠΆΠ΅ΠΌ Π²Π½Π΅ΡΡΠΈ Π² Π½Π΅Π³ΠΎ ΠΈΠ·ΠΌΠ΅Π½Π΅Π½ΠΈΡ, ΡΡΠΎΠ±Ρ Π΄ΠΎΠΌ ΡΡΠ°Π» ΠΌΠ°ΠΊΡΠΈΠΌΠ°Π»ΡΠ½ΠΎ ΠΊΠΎΠΌΡΠΎΡΡΠ½ΡΠΌ! ΠΠΎΠΆΠ΅Ρ Π±ΡΡΡ ΠΈΠ·ΠΌΠ΅Π½Π΅Π½Π° ΠΏΠ»Π°Π½ΠΈΡΠΎΠ²ΠΊΠ° ΠΎΠ΄Π½ΠΎΡΡΠ°ΠΆΠ½ΡΡ
Π΄ΠΎΠΌΠΎΠ², ΠΏΠΈΡΠΎΠ³ ΡΡΠ΅Π½Ρ, Π³Π°Π±Π°ΡΠΈΡΡ Π΄ΠΎΠΌΠ° ΠΈ Π²Π½Π΅ΡΠ΅Π½Ρ ΠΌΠ½ΠΎΠ³ΠΈΠ΅ Π΄ΡΡΠ³ΠΈΠ΅ ΠΊΠΎΡΡΠ΅ΠΊΡΠΈΠ²Ρ, ΠΊΠΎΡΠΎΡΡΠ΅ Π½Π΅ Π²Π»ΠΈΡΡΡ Π½Π° Π½Π°Π΄Π΅ΠΆΠ½ΠΎΡΡΡ ΠΈ ΠΊΠ°ΡΠ΅ΡΡΠ²ΠΎ Π΄ΠΎΠΌΠ°. ΠΠ·ΠΌΠ΅Π½Π΅Π½ΠΈΡ ΠΌΠΎΠ³ΡΡ Π±ΡΡΡ Π²Π½Π΅ΡΠ΅Π½ΡΒ ΠΈ Π² Π΄ΠΈΠ·Π°ΠΉΠ½ ΠΎΠ΄Π½ΠΎΡΡΠ°ΠΆΠ½ΡΡ
Π΄ΠΎΠΌΠΎΠ².
2.Β ΠΠΎΠΏΠΎΠ»Π½Π΅Π½ΠΈΠ΅ Β«ΠΠ΄Π°ΠΏΡΠ°ΡΠΈΡ ΡΡΠ½Π΄Π°ΠΌΠ΅Π½ΡΠ°Β» ΠΏΡΠ΅Π΄Π»Π°Π³Π°Π΅Ρ Π°Π΄Π°ΠΏΡΠΈΡΠΎΠ²Π°ΡΡ ΡΠΈΠΏΠΎΠ²ΠΎΠΉ Π»Π΅Π½ΡΠΎΡΠ½ΡΠΉ ΡΡΠ½Π΄Π°ΠΌΠ΅Π½Ρ ΠΏΡΠ΅Π΄ΡΡΠΌΠΎΡΡΠ΅Π½Π½ΡΠΉ ΠΏΡΠΎΠ΅ΠΊΡΠΎΠΌ ΠΏΠΎΠ΄ ΠΎΡΠΎΠ±Π΅Π½Π½ΠΎΡΡΠΈ Π³ΡΡΠ½ΡΠ° Π½Π° Π²Π°ΡΠ΅ΠΌ ΡΡΠ°ΡΡΠΊΠ΅. Π’ΠΎΠ»ΡΠΊΠΎ Π°Π΄Π°ΠΏΡΠΈΡΠΎΠ²Π°Π½Π½ΡΠΉ ΡΡΠ½Π΄Π°ΠΌΠ΅Π½Ρ ΡΠΌΠΎΠΆΠ΅Ρ Π³Π°ΡΠ°Π½ΡΠΈΡΠΎΠ²Π°ΡΡ Π½Π°Π΄Π΅ΠΆΠ½ΠΎΡΡΡ ΠΈ Π΄ΠΎΠ»Π³ΠΎΠ²Π΅ΡΠ½ΠΎΡΡΡ ΠΏΠΎΡΡΡΠΎΠ΅Π½Π½ΠΎΠ³ΠΎ Π΄ΠΎΠΌΠ°. Π’Π°ΠΊΠ°Ρ Π°Π΄Π°ΠΏΡΠ°ΡΠΈΡ ΠΏΡΠΎΠ²ΠΎΠ΄ΠΈΡΡΡ Π½Π° ΠΎΡΠ½ΠΎΠ²Π΅ Π³Π΅ΠΎΠ»ΠΎΠ³ΠΈΡΠ΅ΡΠΊΠΈΡ
ΠΈ Π³Π΅ΠΎΠ΄Π΅Π·ΠΈΡΠ΅ΡΠΊΠΈΡ
ΠΈΠ·ΡΡΠΊΠ°Π½ΠΈΠΉ.
3.Β ΠΠΎΠΏΠΎΠ»Π½Π΅Π½ΠΈΠ΅ Β«Π’Π΅Π½Π΄Π΅ΡΠ½ΠΎΠ΅ ΠΏΡΠ΅Π΄Π»ΠΎΠΆΠ΅Π½ΠΈΠ΅Β» βΒ ΡΠ΄ΠΎΠ±Π½ΡΠΉ ΠΈΠ½ΡΡΡΡΠΌΠ΅Π½Ρ Π΄Π»Ρ ΠΏΡΠ°Π²ΠΈΠ»ΡΠ½ΠΎΠ³ΠΎ Π²ΡΠ±ΠΎΡΠ° ΡΡΡΠΎΠΈΡΠ΅Π»ΡΠ½ΠΎΠΉ ΠΎΡΠ³Π°Π½ΠΈΠ·Π°ΡΠΈΠΈ, Π΄Π»Ρ ΠΊΠΎΠ½ΡΡΠΎΠ»Ρ ΡΠ°Π±ΠΎΡ Π½Π° ΡΡΡΠΎΠΈΡΠ΅Π»ΡΠ½ΠΎΠΉ ΠΏΠ»ΠΎΡΠ°Π΄ΠΊΠ΅. ΠΡΠΎ ΠΏΠΎΠ»Π½ΡΠΉ ΠΏΠ΅ΡΠ΅ΡΠ΅Π½Ρ Π²ΡΠ΅Ρ
Π½Π΅ΠΎΠ±Ρ
ΠΎΠ΄ΠΈΠΌΡΡ
ΠΌΠ°ΡΠ΅ΡΠΈΠ°Π»ΠΎΠ² Π΄Π»Ρ ΡΡΡΠΎΠΈΡΠ΅Π»ΡΡΡΠ²Π° Π΄ΠΎΠΌΠ°, Ρ ΡΠΊΠ°Π·Π°Π½ΠΈΠ΅ΠΌ ΠΈΡ
ΠΊΠΎΠ»ΠΈΡΠ΅ΡΡΠ²Π° ΠΈ ΠΎΠ±ΡΠ΅ΠΌΠ° Π½Π΅ΠΎΠ±Ρ
ΠΎΠ΄ΠΈΠΌΡΡ
ΡΠ°Π±ΠΎΡ. ΠΠΎΠΏΠΎΠ»Π½ΠΈΠ² ΡΡΡ ΠΈΠ½ΡΠΎΡΠΌΠ°ΡΠΈΡ, ΡΠ΅Π½Π°ΠΌΠΈ Π°ΠΊΡΡΠ°Π»ΡΠ½ΡΠΌΠΈ Π΄Π»Ρ Π²Π°ΡΠ΅Π³ΠΎ ΡΠ΅Π³ΠΈΠΎΠ½Π°, Π²Ρ ΠΏΠΎΠ»ΡΡΠΈΡΠ΅ Π³ΠΎΡΠΎΠ²ΡΡ ΡΠΌΠ΅ΡΡ ΠΏΠΎ Π΄Π°Π½Π½ΠΎΠΌΡ ΠΏΡΠΎΠ΅ΠΊΡΡ. Β
ΠΡΡΠ³ΠΈΠ΅ Π΄ΠΎΠΏΠΎΠ»Π½Π΅Π½ΠΈΡ: Β«ΠΡΡ
ΠΈΡΠ΅ΠΊΡΡΡΠ½ΡΠΉ ΠΏΠ°ΡΠΏΠΎΡΡΒ», Β«ΠΠΎΠΏΠΎΠ»Π½ΠΈΡΠ΅Π»ΡΠ½Π°Ρ ΠΊΠΎΠΏΠΈΡ ΠΏΡΠΎΠ΅ΠΊΡΠ°Β», Β«ΠΠ΄Π°ΠΏΡΠ°ΡΠΈΡ Π΄Π»Ρ ΡΠ΅ΠΉΡΠΌΠΎΠ·ΠΎΠ½ΡΒ», Β«ΠΠΎΠΌΡΠΎΡΡΠ½ΡΠΉ Π΄ΠΎΠΌΒ», Β«Π’Π΅ΠΏΠ»ΡΠΉ ΠΏΠΎΠ»Β», Β«ΠΠΎΠ»Π½ΠΈΠ΅Π·Π°ΡΠΈΡΠ°Β», Β«ΠΠΈΠ·Π°ΠΉΠ½ ΠΈΠ½ΡΠ΅ΡΡΠ΅ΡΠ°Β» ΠΏΠΎΠ·Π²ΠΎΠ»ΡΡΡ ΡΠ΄Π΅Π»Π°ΡΡ Π²Π°Ρ Π΄ΠΎΠΌ Π΅ΡΠ΅ ΠΊΠΎΠΌΡΠΎΡΡΠ½Π΅Π΅ ΠΈ ΠΏΠΎΠΌΠΎΠ³ΡΡ Π±ΡΡΡΡΠ΅Π΅ Π΅Π³ΠΎ ΠΏΠΎΡΡΡΠΎΠΈΡΡ.
Π ΠΏΠΎΡΡΡΠΎΠΈΡΡ ΠΎΠ΄Π½ΠΎΡΡΠ°ΠΆΠ½ΡΠ΅ Π΄ΠΎΠΌΠ° ΠΏΠΎΠ΄ ΠΊΠ»ΡΡ Π½Π΅Π΄ΠΎΡΠΎΠ³ΠΎ ΠΏΠΎΠΌΠΎΠ³ΡΡ Π½Π°ΡΠΈ ΠΏΠ°ΡΡΠ½Π΅ΡΡ.
ΠΡΠΎΠ΅ΠΊΡΡ ΠΎΠ΄Π½ΠΎΡΡΠ°ΠΆΠ½ΡΡ
Π΄ΠΎΠΌΠΎΠ² ΠΈΠ· ΠΊΠΈΡΠΏΠΈΡΠ°, ΠΏΡΠ΅Π΄ΡΡΠ°Π²Π»Π΅Π½Π½ΡΠ΅ Π² Π΄Π°Π½Π½ΠΎΠΌ ΡΠ°Π·Π΄Π΅Π»Π΅, ΡΠ°ΡΡΡΠΈΡΠ°Π½Ρ ΡΠ°ΠΊΠΆΠ΅ Π½Π° Π³Π°Π·ΠΎΠ±Π΅ΡΠΎΠ½, ΠΊΠ΅ΡΠ°ΠΌΠΎΠ±Π»ΠΎΠΊΠΈ ΠΈ Π΄ΡΡΠ³ΠΈΠ΅ ΠΊΠ°ΠΌΠ΅Π½Π½ΡΠ΅ ΠΌΠ°ΡΠ΅ΡΠΈΠ°Π»Ρ.
ΠΡΠΈΠΎΠ±ΡΠ΅ΡΠ°Ρ Π² Π½Π°ΡΠ΅ΠΉ ΠΊΠΎΠΌΠΏΠ°Π½ΠΈΠΈ ΠΏΡΠΎΠ΅ΠΊΡΡ ΠΎΠ΄Π½ΠΎΡΡΠ°ΠΆΠ½ΡΡ Π΄ΠΎΠΌΠΎΠ², ΡΠΎΡΠΎ, ΡΠ΅ΡΡΠ΅ΠΆΠΈ ΠΈ Π²ΠΈΠ΄Π΅ΠΎ ΠΊΠΎΡΠΎΡΡΡ ΠΌΠΎΠΆΠ½ΠΎ ΡΠΌΠΎΡΡΠ΅ΡΡ Π² ΡΡΠΎΠΌ ΡΠ°Π·Π΄Π΅Π»Π΅, ΠΊΠ»ΠΈΠ΅Π½Ρ ΠΏΠΎΠ»ΡΡΠ°Π΅Ρ ΠΏΠΎΠ΄ΡΠΎΠ±Π½ΡΡ ΠΏΡΠΎΠ΅ΠΊΡΠ½ΡΡ Π΄ΠΎΠΊΡΠΌΠ΅Π½ΡΠ°ΡΠΈΡ, ΠΊΠΎΡΠΎΡΠ°Ρ ΡΠΎΡΡΠΎΠΈΡ ΠΈΠ· 5 ΡΠ°Π·Π΄Π΅Π»ΠΎΠ²: Π°ΡΡ ΠΈΡΠ΅ΠΊΡΡΡΠ½ΡΠΉ, ΠΊΠΎΠ½ΡΡΡΡΠΊΡΠΈΠ²Π½ΡΠΉ ΠΈ 3 ΡΠ°ΡΡΠΈ ΠΈΠ½ΠΆΠ΅Π½Π΅ΡΠ½ΠΎΠ³ΠΎ β ΡΡ Π΅ΠΌΡ ΡΠ°Π·Π²ΠΎΠ΄ΠΎΠΊ ΠΎΡΠΎΠΏΠ»Π΅Π½ΠΈΡ ΠΈ Π²Π΅Π½ΡΠΈΠ»ΡΡΠΈΠΈ, Π²ΠΎΠ΄ΠΎΡΠ½Π°Π±ΠΆΠ΅Π½ΠΈΡ, ΡΠ»Π΅ΠΊΡΡΠΎΡΠ½Π°Π±ΠΆΠ΅Π½ΠΈΡ. Π‘ΡΠΎΠΈΠΌΠΎΡΡΡ ΠΈΠ½ΠΆΠ΅Π½Π΅ΡΠ½ΡΡ ΡΠ°Π·Π΄Π΅Π»ΠΎΠ² Π΄ΠΎΠΊΡΠΌΠ΅Π½ΡΠ°ΡΠΈΠΈ ΡΠΎΡΡΠ°Π²Π»ΡΠ΅Ρ 20% ΠΎΡ ΡΠ΅Π½Ρ ΠΏΡΠΎΠ΅ΠΊΡΠ°, ΡΠΊΠ°Π·Π°Π½Π½ΠΎΠΉ Π½Π° ΡΠ°ΠΉΡΠ΅.Β ΠΠΈΠΆΠ΅ Π²Ρ ΠΌΠΎΠΆΠ΅ΡΠ΅ ΠΎΠ·Π½Π°ΠΊΠΎΠΌΠΈΡΡΡΡ Ρ ΠΏΡΠΈΠΌΠ΅ΡΠΎΠΌ ΠΏΡΠΎΠ΅ΠΊΡΠ° ΠΎΠ΄Π½ΠΎΡΡΠ°ΠΆΠ½ΠΎΠ³ΠΎ Π΄ΠΎΠΌΠ°.
ΠΠΈΠΆΠ΅ ΡΠΌΠΎΡΡΠΈΡΠ΅ ΠΏΠΎΠ΄Π±ΠΎΡΠΊΡ Π½Π°ΡΠΈΡ ΠΏΠΎΠΏΡΠ»ΡΡΠ½ΡΡ ΠΎΠ΄Π½ΠΎΡΡΠ°ΠΆΠ½ΡΡ Π΄ΠΎΠΌΠΎΠ²:ΠΡΠ΅ ΠΏΡΠΎΠ΅ΠΊΡΡ Π½Π°ΡΠ΅ΠΉ ΠΊΠΎΠΌΠΏΠ°Π½ΠΈΠΈ Π·Π°ΡΠΈΡΠ΅Π½Ρ Π°Π²ΡΠΎΡΡΠΊΠΈΠΌ ΠΏΡΠ°Π²ΠΎΠΌ ΠΈ Π³Π°ΡΠ°Π½ΡΠΈΡΡΠ΅Ρ Π·Π°ΡΡΡΠΎΠΉΡΠΈΠΊΠ°ΠΌ ΠΏΡΠ°Π²ΠΎΠ²ΡΡ Π±Π΅Π·ΠΎΠΏΠ°ΡΠ½ΠΎΡΡΡ ΠΏΡΠΈ ΡΡΡΠΎΠΈΡΠ΅Π»ΡΡΡΠ²Π΅ Π΄ΠΎΠΌΠΎΠ² ΠΏΠΎ ΠΏΡΠΎΠ΅ΠΊΡΠ°ΠΌ Z500. ΠΠΈΠΆΠ΅ ΠΌΡ ΠΏΠΎΠΌΠ΅ΡΡΠΈΠ»ΠΈ ΡΠ΅ΡΡΠΈΡΠΈΠΊΠ°Ρ, ΠΊΠΎΡΠΎΡΡΠΉ ΠΏΠΎΠ΄ΡΠ²Π΅ΡΠΆΠ΄Π°Π΅Ρ, ΡΡΠΎ Π½Π°ΡΠ° ΠΊΠΎΠΌΠΏΠ°Π½ΠΈΡ ΡΠ²Π»ΡΠ΅ΡΡΡ ΠΎΡΠΈΡΠΈΠ°Π»ΡΠ½ΡΠΌ ΠΏΡΠ΅Π΄ΡΡΠ°Π²ΠΈΡΠ΅Π»Π΅ΠΌ ΠΌΠ΅ΠΆΠ΄ΡΠ½Π°ΡΠΎΠ΄Π½ΠΎΠ³ΠΎ Π°ΡΡ ΠΈΡΠ΅ΠΊΡΡΡΠ½ΠΎΠ³ΠΎ Π±ΡΡΠΎ Z500 Ltd.
z500proekty.ru